LOCALE COMMERCIALE IN VENDITA VENDITA

Via Casilina 1076 - Roma (Roma)
€ 139.000
  • 1 locale
  • 122 mq
  • 2 bagni

Negozio in Vendita a Roma

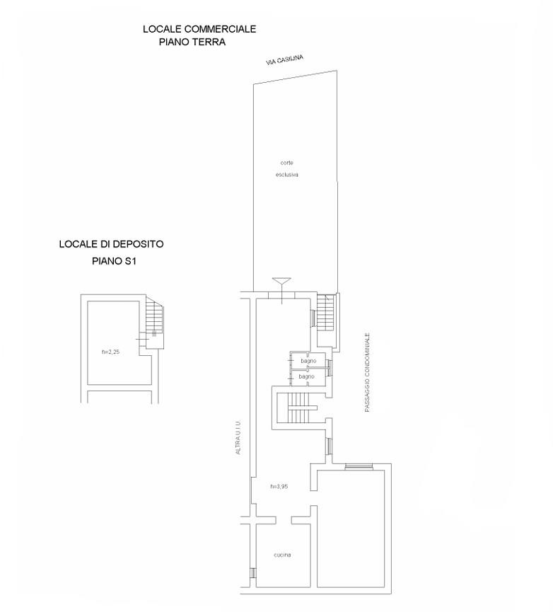
**Locale in Vendita - Via Casilina**

Scopri un'opportunità imperdibile!

Questo locale commerciale in vendita si trova in una posizione strategica, a pochi passi dal Policlinico Casilino e dalla fermata Metro C di Torre Maura.

Con una superficie di circa 83 mq calpestabili, il negozio offre un'ottima visibilità grazie alla sua vetrina fronte strada.

La composizione interna include un ampio spazio per il negozio, un retro negozio funzionale, una cucina e due bagni, rendendolo ideale per diverse attività commerciali. Inoltre, la corte esclusiva antistante offre uno spazio aggiuntivo perfetto per accogliere i clienti o per eventi all'aperto.

Il locale è dotato di serranda manuale e un soppalco, che aumenta la versatilità dello spazio.

In aggiunta, è inclusa una cantina al piano seminterrato, perfetta per lo stoccaggio.

Non perdere l'occasione di investire in un locale che combina posizione, spazio e potenzialità. Contattaci per maggiori informazioni e per organizzare una visita!

Le presenti informazioni e planimetrie sono meramente informative e non costituiscono elementi contrattuali.

PM IMMOBILIARE
Via dei Colombi n. 34 Roma
331.1972514
06.69270129

LEGGI TUTTO

CONDIVIDI SUI SOCIAL

DATI PRINCIPALI

Riferimento
629920
Contratto
Vendita
Tipologia
Immobile - Negozio
Superficie
122 mq
Locali
1
Bagni
2
Piano
Piano terra
Totale piani
5

CARATTERISTICHE

Ascensore

COSTI

Prezzo
€ 139.000,00
Spese condominiali
€ 50,00 / mese

EFFICIENZA ENERGETICA

Stato
Abitabile

MAPPA

ANNUNCI SIMILI