VILLA RISTRUTTURATA CON GIARDINO | OLGIATA VENDITA

Strada A - Roma, Zona Olgiata
€ 589.000
  • Più di 5 locali
  • 200 mq
  • 3 bagni

Villetta a schiera in Vendita a Roma

VILLA CON SPAZI POLIFUNZIONALI SU 3 LIVELLI | OLGIATA SUD

Rivolta Immobiliare vende 200 mq completamente ristrutturati, pensati per adattarsi a molteplici esigenze abitative e professionali. Una proprietà che non è solo una casa, ma uno spazio modulabile nel tempo.

Questa villa si distingue per luminosità, efficienza energetica e soprattutto per la straordinaria flessibilità degli ambienti, ideali per famiglie, professionisti o per chi cerca un immobile capace di generare valore nel tempo.

La posizione strategica, a pochi passi dalla stazione FS e dall’ingresso sud dell’Olgiata, la rende perfetta anche per chi desidera indipendenza negli spostamenti senza rinunciare a sicurezza e tranquillità.

La vicinanza alle principali scuole internazionali (St. George’s, Acorn House, St. Dominique) rappresenta un ulteriore punto di forza per famiglie italiane e straniere.

Dotata di impianto fotovoltaico da 6 kW, infissi a taglio termico e aria condizionata, garantisce elevati standard abitativi e contenimento dei costi energetici: un investimento sostenibile oltre che abitativo.

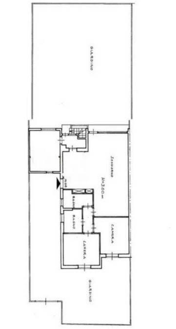
Distribuzione degli spazi attuali

Piano terra
Salone doppio con camino in pietra, cucina a vista completamente attrezzata, camera matrimoniale con bagno en suite, seconda camera e bagno ospiti.
Accesso diretto al giardino privato, ideale per vivere l’esterno in totale privacy.

Piano mansardato – ambiente trasformabile
Ampio open space con bagno: perfetto come suite padronale, studio professionale, area relax o spazio dedicato ai figli.

Piano seminterrato (fuori terra e luminoso)
Elemento distintivo della proprietà: un livello completamente autonomo, versatile e indipendente.
Comprende grande sala hobby con camino e barbecue, predisposizione per cucina, camera, bagno con vasca idromassaggio e lavanderia.

Grazie all’ingresso indipendente, questo spazio può essere utilizzato come:

unità abitativa separata (ideale per ospiti o familiari)
studio professionale con accesso dedicato
area per smart working
zona wellness o palestra privata
investimento a reddito (locazione indipendente)
locali per personale di servizio indipendente

La proprietà è inserita in un comprensorio con accesso controllato e dispone di due posti auto assegnati.

Acquistare questa villa significa scegliere una soluzione capace di adattarsi nel tempo: abitazione principale, spazio lavoro o opportunità di reddito. Il tutto in uno dei contesti più esclusivi di Roma, dove sicurezza, verde e servizi di alto livello (golf, sport, equitazione) garantiscono qualità della vita e tenuta del valore immobiliare. Che aseptti contattati al 3387069403 per prenotare una visista o chiama in agenzia per ulteriori informazioni.

LEGGI TUTTO

CONDIVIDI SUI SOCIAL

DATI PRINCIPALI

Riferimento
642768
Contratto
Vendita
Tipologia
Villetta a schiera
Superficie
200 mq
Locali
5
Camere da letto
3
Cucina
A vista
Bagni
3
Piano
1 °
Totale piani
2
Box/Posto auto
Doppio

CARATTERISTICHE

Ascensore

COSTI

Prezzo
€ 589.000,00
Spese condominiali
€ 180,00 / mese

EFFICIENZA ENERGETICA

Stato
Ristrutturato
Anno costruzione
1980
Riscaldamento
Autonomo
Climatizzazione
Si
Classe energetica
B
IPE
175,00 kWh/m²a

A+

A

175,00 kWh/m²a | Classe energetica B

B

C

D

E

F

G

MAPPA

ANNUNCI SIMILI

VENDITA 20
€ 530.000
Villetta a schiera in Vendita a Roma, Zona Olgiata
  • Più di 5 locali
  • 250 mq
  • 3 bagni
VENDITA 20
€ 530.000
Villetta a schiera in Vendita a Roma, Zona Olgiata
  • Più di 5 locali
  • 250 mq
  • 3 bagni
VENDITA 20
€ 220.000
Villetta a schiera in Vendita a Roma, Zona Olgiata
  • Più di 5 locali
  • 200 mq
  • 4 bagni
VENDITA 20
€ 289.000
Villetta a schiera in Vendita a Roma, Frazione La Storta
  • Più di 5 locali
  • 145 mq
  • 3 bagni
VENDITA 20
€ 585.000
Villetta a schiera in Vendita a Roma, Zona Olgiata
  • Più di 5 locali
  • 235 mq
  • 3 bagni
VENDITA 20
€ 750.000
Villetta a schiera in Vendita a Roma, Zona Olgiata
  • Più di 5 locali
  • 224 mq
  • 3 bagni
VENDITA 20
€ 585.000
Villetta a schiera in Vendita a Roma, Zona Olgiata
  • Più di 5 locali
  • 220 mq
  • 3 bagni
VENDITA 20
€ 310.000
Villetta a schiera in Vendita a Roma, Frazione La Storta
  • Più di 5 locali
  • 150 mq
  • 4 bagni