OCCASIONE OLGIATA - VILLA CON GIARDINO IN VENDITA VENDITA

Largo dell'Olgiata - Roma, Zona Olgiata
€ 585.000
  • Più di 5 locali
  • 235 mq
  • 3 bagni

Villetta a schiera in Vendita a Roma

Nella zona residenziale dell’Olgiata, comprensorio che vanta la presenza di servizi, scuole, centro commerciale, strutture sportive,
proponiamo in vendita un vilino di 220 mq in perfetto stato e completamente ristrutturato.
L’immobile, che vanta un accesso pedonale e carrabile con posto auto coperto ed un bel giardino con area pranzo e barbecue,
si sviluppa su due livelli con una distribuzione degli spazi molto ben studiata.

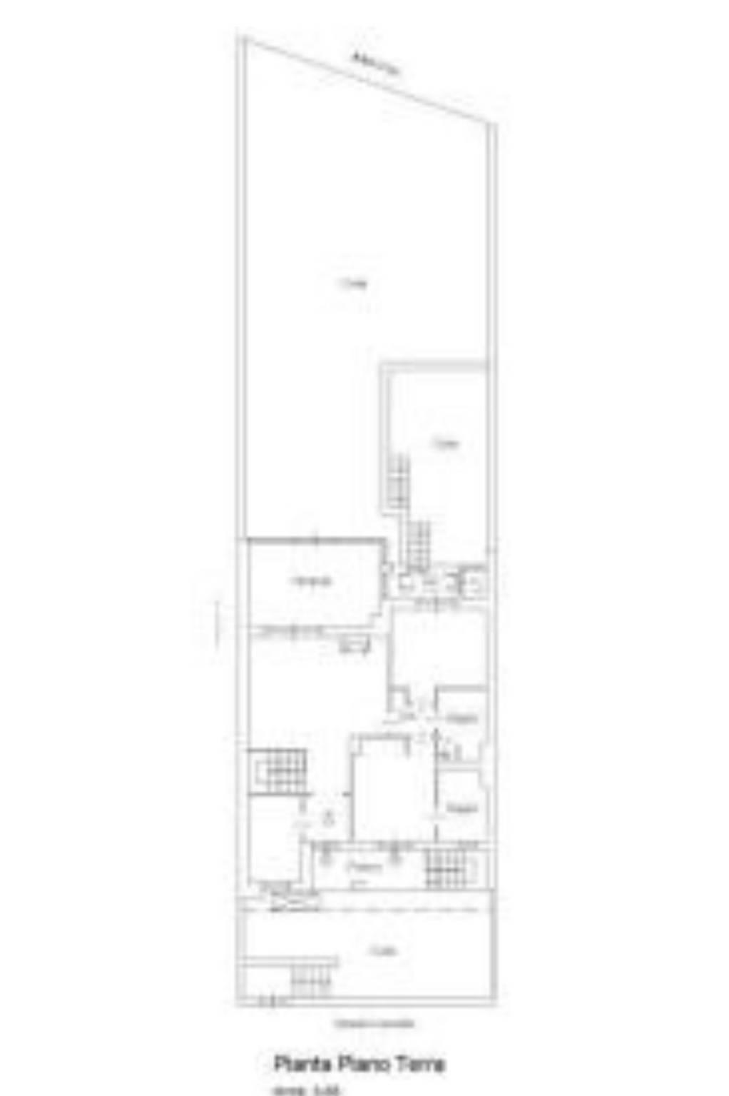
Internamente è così composto: al piano terra troviamo un salone con camino con soffitto a doppia altezza, uno studio
(che potrebbe essere ripristinato ad uso cucina laddove necessario), una luminosissima sala da pranzo con affaccio sul giardino,
una camera padronale con bagno ensuite, una camera da letto con soppalco e un bagno;
al piano sottostante, dal quale si accede sia da una comoda scala interna che da una scala esterna posta nel patio
(utile laddove si volesse creare un ingresso indipendente) troviamo un grande salone con camino, una cucina arredata con uscita in giardino,
una camera, un bagno, una zona lavanderia/stireria.

Di pertinenza due posti auto esterni coperti.
Sorveglianza h24.

Prezzo richiesto € 585.000.

LEGGI TUTTO

CONDIVIDI SUI SOCIAL

DATI PRINCIPALI

Riferimento
643649
Contratto
Vendita
Tipologia
Villetta a schiera
Superficie
235 mq
Locali
Più di 5
Camere da letto
4
Cucina
Abitabile
Bagni
3
Piano
Piano terra
Totale piani
2
Box/Posto auto
Doppio

CARATTERISTICHE

Ascensore

COSTI

Prezzo
€ 585.000,00

EFFICIENZA ENERGETICA

Stato
Ristrutturato
Anno costruzione
1985
Riscaldamento
Autonomo
Climatizzazione
Si
Classe energetica
F
IPE
175,00 kWh/m²a

A+

A

B

C

D

E

175,00 kWh/m²a | Classe energetica F

F

G

MAPPA

ANNUNCI SIMILI

VENDITA 20
€ 289.000
Villetta a schiera in Vendita a Roma, Frazione La Storta
  • Più di 5 locali
  • 145 mq
  • 3 bagni
VENDITA 20
€ 220.000
Villetta a schiera in Vendita a Roma, Zona Olgiata
  • Più di 5 locali
  • 200 mq
  • 4 bagni
VENDITA 20
€ 585.000
Villetta a schiera in Vendita a Roma, Zona Olgiata
  • Più di 5 locali
  • 220 mq
  • 3 bagni
VENDITA 20
€ 750.000
Villetta a schiera in Vendita a Roma, Zona Olgiata
  • Più di 5 locali
  • 224 mq
  • 3 bagni
VENDITA 20
€ 310.000
Villetta a schiera in Vendita a Roma, Frazione La Storta
  • Più di 5 locali
  • 150 mq
  • 4 bagni
VENDITA 20
€ 490.000
Villetta a schiera in Vendita a Roma, Frazione La Storta
  • Più di 5 locali
  • 260 mq
  • 3 bagni
VENDITA 20
€ 250.000
Villetta a schiera in Vendita a Roma, Frazione Cesano
  • Più di 5 locali
  • 155 mq
VENDITA 11
€ 120.000
Villetta a schiera in Vendita a Roma, Frazione Cesano
  • Più di 5 locali
  • 153 mq
  • 3 bagni
VENDITA 20
€ 395.000
Villetta a schiera in Vendita a Roma, Frazione La Giustiniana
  • Più di 5 locali
  • 253 mq
  • 4 bagni
VENDITA 20
€ 800.000
Villetta a schiera in Vendita a Roma, Frazione La Giustiniana
  • Più di 5 locali
  • 310 mq
  • 4 bagni