• Più di 5 locali
  • 253 mq
  • 4 bagni

Villetta a schiera in Vendita a Roma

LA GIUSTINIANA Via Lodovico Settala

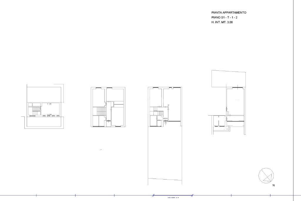
Proponiamo in vendita una villa a schiera centrale, disposta su quattro livelli, con doppio accesso da Via Lodovico Settala e Via Giuseppe Reina.

L’immobile, allo stato originale e quindi da ristrutturare, rappresenta una soluzione ideale per famiglie numerose o per chi desidera ampi spazi personalizzabili in un contesto residenziale tranquillo ma ben collegato.
Al piano terra si accede a un ampio ingresso che conduce al soggiorno, spazioso e luminoso, con predisposizione per camino. La cucina, attualmente adibita a studio, è separata e abitabile. Completano il piano un bagno finestrato e un comodo ripostiglio. Esternamente è presente un giardino privato di circa 100 mq.

Il primo piano ospita tre camere da letto matrimoniali, due bagni finestrati e un balconcino di servizio.

Al secondo piano si trova una confortevole camera mansardata con condizionatore con bagno finestrato.

Il piano seminterrato, completamente fuori terra, è composto da una spaziosa sala hobby con cucina, ripostiglio e accesso diretto a un secondo giardino privato di circa 150 mq.

Completa la proprietà un box auto di 28 mq con ingresso indipendente da Via Giuseppe Reina.

La posizione dell’immobile è strategica, a soli 600 metri dalla stazione ferroviaria La Giustiniana, a 300 metri dalle principali attività commerciali e a circa 2 km dal Grande Raccordo Anulare, garantendo così ottimi collegamenti e la vicinanza a tutti i principali servizi.

Per dettagli aggiuntivi, contattaci su WhatsApp al numero 351/0713036.

Seguici su Facebook: Agenzia Tecnocasa La Giustiniana e iscriviti al nostro canale YouTube 'Agenzia Tecnocasa La Giustiniana' per rimanere sempre aggiornato sulle nostre proposte.
Vai sul nostro canale Youtube 'Agenzia Tecnocasa la Giustiniana' ed iscriviti per restare sempre aggiornato sulle nostre proposte.

LEGGI TUTTO

CONDIVIDI SUI SOCIAL

DATI PRINCIPALI

Riferimento
631629
Contratto
Vendita
Tipologia
Villetta a schiera
Superficie
253 mq
Locali
Più di 5
Camere da letto
4
Cucina
Abitabile
Bagni
4
Piano
4 °
Totale piani
4
Box/Posto auto
Singolo

CARATTERISTICHE

Ascensore

COSTI

Prezzo
€ 395.000,00

EFFICIENZA ENERGETICA

Stato
Da ristrutturare
Anno costruzione
1967
Riscaldamento
Autonomo
Climatizzazione
Si
Classe energetica
G
IPE
69,00 kWh/m²a

A+

A

B

C

D

E

F

69,00 kWh/m²a | Classe energetica G

G

MAPPA

ANNUNCI SIMILI

VENDITA 20
€ 490.000
Villetta a schiera in Vendita a Roma, Frazione La Storta
  • Più di 5 locali
  • 260 mq
  • 3 bagni
VENDITA 20
€ 310.000
Villetta a schiera in Vendita a Roma, Frazione La Storta
  • Più di 5 locali
  • 150 mq
  • 4 bagni
VENDITA 20
€ 800.000
Villetta a schiera in Vendita a Roma, Frazione La Giustiniana
  • Più di 5 locali
  • 310 mq
  • 4 bagni
VENDITA 20
€ 289.000
Villetta a schiera in Vendita a Roma, Frazione La Storta
  • Più di 5 locali
  • 145 mq
  • 3 bagni
VENDITA 20
€ 585.000
Villetta a schiera in Vendita a Roma, Zona Olgiata
  • Più di 5 locali
  • 235 mq
  • 3 bagni
VENDITA 20
€ 220.000
Villetta a schiera in Vendita a Roma, Zona Olgiata
  • Più di 5 locali
  • 200 mq
  • 4 bagni
VENDITA 20
€ 1.100.000
Villetta a schiera in Vendita a Roma, Zona Cortina d'Ampezzo
  • Più di 5 locali
  • 320 mq
  • 4 bagni
VENDITA 17
€ 339.000
Villetta a schiera in Vendita a Roma, Zona Torrevecchia
  • Più di 5 locali
  • 100 mq
  • 4 bagni