Via Poerio adiacenze VENDITA

Via Alessandro Poerio - Roma (Roma)
€ 2.900.000
  • Più di 5 locali
  • 497 mq
  • 4 bagni

Villa in Vendita a Roma

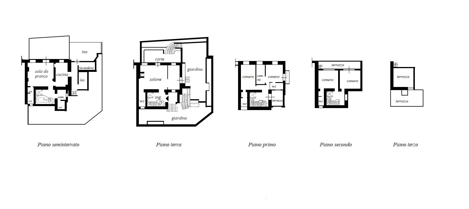
Nel cuore di Monteverde Vecchio ed in contesto residenziale proponiamo la vendita di una porzione di un villino bifamiliare completamente ristrutturato con materiali di pregio disposto su quattro livelli e servito da ascensore interno.
Al piano terra troviamo un ampio ingresso, salone triplo con camino, bagno ed antibagno; il tutto circondato da uno spazioso giardino privato che garantisce privacy e tranquillità.
Il primo piano presenta invece disimpegno che espone su un delizioso terrazzino, due ampie camere matrimoniali entrambe con bagno en suite e di cui una con balcone, cameretta. Il corridoio a servizio delle camere dispone inoltre di un comodo soppalco oggetti.
Al secondo piano troviamo invece altri due ambienti, uno adibito a camera da letto con bagno en suite ed un altro adibito a sala hobby/palestra. Da quest’ultimo ambiente si accede ad uno spazioso terrazzo a livello e tramite di esso è possibile raggiungere la splendida terrazza panoramica a copertura dell’immobile.
Al piano seminterrato, fuori terra per la maggior parte della superficie, troviamo inoltre un ampio salone doppio adiacente la cucina-tinello, servizio, cameretta con wc, vano lavanderia, locale caldaia, ripostiglio ed un ingresso al box. Il tutto servito da una comoda corte con alberi da frutto.
Completa inoltre la proprietà uno spazioso box auto.
L’immobile presenta inoltre pavimentazione in parquet Listone Giordano e cotto, infissi in doppio vetro e pvc, aria condizionata e pannelli solari che garantiscono un ottimo rendimento efficienza green.

Le informazioni riportate nelle inserzioni pubblicate provengono all’agenzia immobiliare direttamente dai relativi incarichi di mediazione, non hanno alcun contenuto contrattuale e le metrature commerciali sono puramente indicative. La Benecase Spa declina ogni responsabilità per eventuali indicazioni erronee.

LEGGI TUTTO

CONDIVIDI SUI SOCIAL

DATI PRINCIPALI

Riferimento
639840
Contratto
Vendita
Tipologia
Villa
Superficie
497 mq
Locali
Più di 5
Camere da letto
5
Cucina
Abitabile
Bagni
4
Piano
3 °
Totale piani
2
Box/Posto auto
Singolo

CARATTERISTICHE

Ascensore

COSTI

Prezzo
€ 2.900.000,00

EFFICIENZA ENERGETICA

Stato
Ristrutturato
Riscaldamento
Autonomo
Classe energetica
G
IPE
351,00 kWh/m²a

A+

A

B

C

D

E

F

351,00 kWh/m²a | Classe energetica G

G

MAPPA

ANNUNCI SIMILI

VENDITA 20
Trattativa Riservata
Villa in Vendita a Roma (Roma)
  • Più di 5 locali
  • 300 mq
  • 4 bagni
VENDITA 20
€ 3.450.000
Villa in Vendita a Roma (Roma)
  • Più di 5 locali
  • 450 mq
  • 4 bagni
VENDITA 20
Trattativa Riservata
Villa in Vendita a Roma (Roma)
  • Più di 5 locali
  • 300 mq
  • 4 bagni
VENDITA 20
€ 9.500.000
Villa in Vendita a Roma, Zona Aventino
  • Più di 5 locali
  • 742 mq
  • 4 bagni