PRESTIGIOSO VILLINO LIBERTY A MONTEVERDE NUOVO VENDITA

Via Duchessa di Galliera - Roma (Roma)
€ 2.380.000
  • Più di 5 locali
  • 450 mq
  • 4 bagni

Villa in Vendita a Roma

A pochi minuti a piedi da Villa Pamphili, nel cuore di Monteverde Nuovo, Josas Immobiliare propone la vendita di un'incantevole villa in stile liberty anni ’20, situata in Via di Monte Verde e con ulteriore accesso da Via Duchessa di Galliera.
La proprietà, che gode di una superficie interna di 450 mq più un terrazzo ed un giardino pavimentato di ulteriori 500 mq, si presenta in ottimo stato, pronta per essere abitata e con rifiniture di pregio. La composizione in due unità separate ma comunicanti, nonché la presenza di due accessi distinti, la rendono una proprietà ideale per essere vissuta da due nuclei della stessa famiglia.
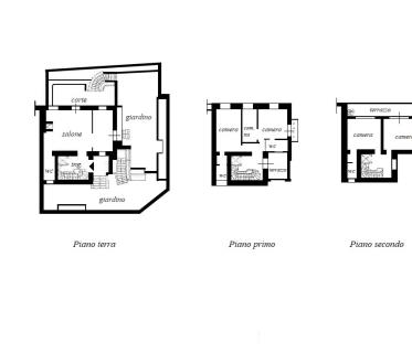
L’immobile si sviluppa su quattro livelli, serviti da ascensore: al piano terra troviamo una spaziosa sala cinema con bagno, uno studio ed un'ampia area di servizio con annessa lavanderia. Al primo livello, troviamo l’ingresso principale della proprietà che introduce al disimpegno collegato ad un luminoso salone triplo e alla cucina attrezzata in stile moderno con penisola centrale, illuminata da tre finestre. La zona giorno è servita da un bagno per gli ospiti. Al secondo livello, la master room con cabina armadio finestrata ed ampio bagno en suite, una vera e propria area relax di 20mq in cui sono presenti sia la doccia che la vasca idromassaggio. Allo stesso livello troviamo una seconda camera da letto ed un ulteriore bagno con doccia. Al terzo piano, tre camere mansardate con tetto spiovente e soffitto in legno ed un bagno a servizio delle stesse. All’ultimo, in corrispondenza dell’interno della torretta della villa, con accesso da una comoda scala interna, abbiamo uno studio da cui si può godere una piacevole vista sul quartiere. La proprietà si arricchisce di un giardino perimetrale pavimentato con gazebo in legno e acciaio. Gode di esposizione a 360°, con affacci liberi.
Il riscaldamento è autonomo a radiatori, alimentato a metano. L’impianto di climatizzazione è a pompa di calore. Entrambi gli accessi al villino sono dotati di cancelli automatici con relativi passi carrabili ed il parcheggio interno può ospitare fino a 4 autovetture. L’immobile è dotato di porte blindate, videosorveglianza e sistema di allarme di ultima generazione.
Il fascino dell'architettura e la tranquillità della location, pur a pochi minuti dal centro cittadino, rendono la soluzione proposta di elevato prestigio.

RIF:590 GC
*Le presenti informazioni e planimetrie sono puramente indicative e non costituiscono elementi contrattuali.



Dal 2013 siamo un’agenzia specializzata in intermediazione e consulenza immobiliare con una filosofia precisa: un servizio di qualità boutique che abbraccia ogni settore senza distinzioni. Che si tratti di spazi commerciali o abitazioni, il nostro metodo resta identico: massima competenza e attenzione personalizzata. Grazie a un’approfondita analisi delle esigenze, definiamo linee guida che danno vita a progetti vincenti, prestando attenzione non solo agli aspetti tecnici ed economici, ma anche a quelli legati all’immagine e al valore dell’immobile nel tempo. L’apertura al mercato residenziale avviata nel 2025 e l’unione con Volare Immobiliare nel 2026, agenzia romana specializzata nel settore abitativo, rafforzano una scelta precisa: presidiare questo mercato con metodo, continuità e una struttura solida. Un passaggio naturale che garantisce continuità, solidità e un servizio ancora più strutturato, mantenendo invariati i valori, l’approccio consulenziale e la cura dedicata a ogni cliente. Un’unica visione, per accompagnarvi con serenità in ogni scelta immobiliare.

LEGGI TUTTO

CONDIVIDI SUI SOCIAL

DATI PRINCIPALI

Riferimento
638780
Contratto
Vendita
Tipologia
Villa
Superficie
450 mq
Locali
Più di 5
Camere da letto
5
Cucina
Abitabile
Bagni
4
Piano
Piano terra
Totale piani
4
Box/Posto auto
Doppio

CARATTERISTICHE

Ascensore

COSTI

Prezzo
€ 2.380.000,00
Spese condominiali
€ 1,00 / mese

EFFICIENZA ENERGETICA

Stato
Ristrutturato
Anno costruzione
1920
Riscaldamento
Autonomo
Climatizzazione
Si
Classe energetica
F
IPE
175,00 kWh/m²a

A+

A

B

C

D

E

175,00 kWh/m²a | Classe energetica F

F

G

MAPPA

ANNUNCI SIMILI

VENDITA 14
€ 2.650.000
Villa in Vendita a Roma (Roma)
  • Più di 5 locali
  • 1928 mq
  • 4 bagni
VENDITA 20
Trattativa Riservata
Villa in Vendita a Roma (Roma)
  • Più di 5 locali
  • 300 mq
  • 4 bagni
VENDITA
€ 2.900.000
Villa in Vendita a Roma (Roma)
  • Più di 5 locali
  • 497 mq
  • 4 bagni
VENDITA 20
€ 3.450.000
Villa in Vendita a Roma (Roma)
  • Più di 5 locali
  • 450 mq
  • 4 bagni