NEL CUORE DI MONTEVERDE !! VENDITA

Roma (Roma)
Trattativa Riservata
  • Più di 5 locali
  • 300 mq
  • 4 bagni

Villa in Vendita a Roma

MONTEVERDE VECCHIO - VIA FELICE CAVALLOTTI 36
Lo Studio Immobiliare Spinelli ha il piacere di proporre l'acquisto di un immobile unico nel suo genere ubicato nel cuore di Monteverde Vecchio in un contesto elegante e signorile, noto per i suoi eleganti villini del 900 in stile Liberty e Art Dèco.
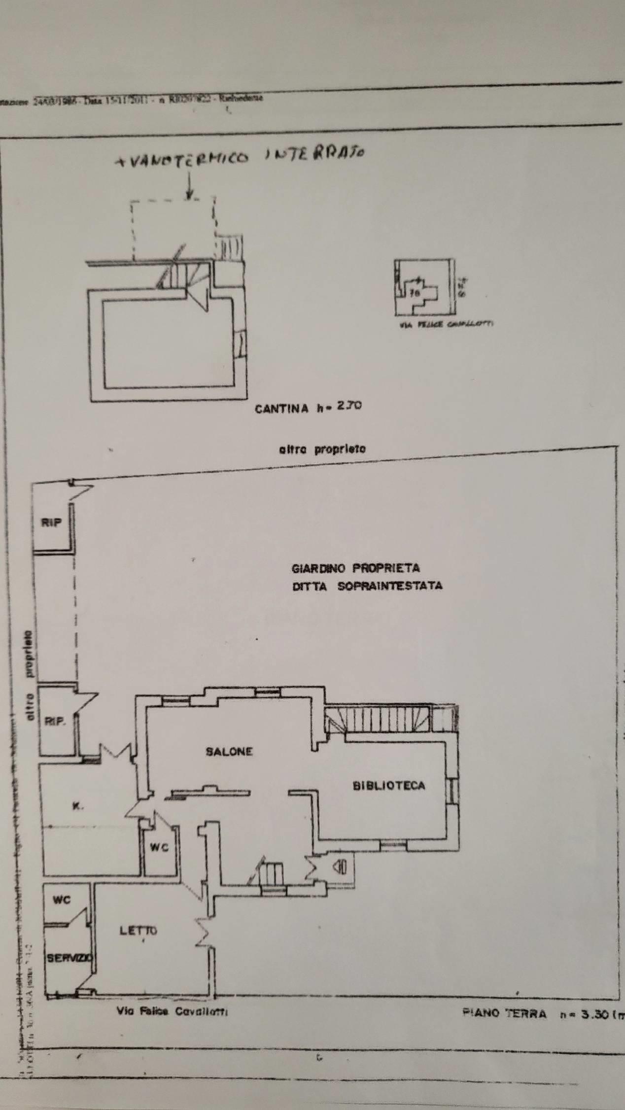
La villa, circondata da uno splendido giardino riservato, si sviluppa su più livelli. Al piano terra troviamo un ampio ingresso, un salone doppio, una grande cucina, una ampia biblioteca, una cameretta e due bagni. Un’antica scalinata in legno conduce al primo piano dove troviamo 3 camere da letto, 1 bagno, un’ampia terrazza e un’area di servizio fruibile come piccolo studio che dà accesso al piano superiore dove si trova un prestigioso torrino con grandi finestroni d’epoca, 1 bagno ed un terrazzino.
Al piano seminterrato una comoda e ampia taverna con soffitti a volta.

La villa rappresenta un caratteristico esempio dell’architettura del ‘900 immersa in un contesto riservato e prestigioso a pochi passi dal Gianicolo e dal centro di Roma.
Location strategica e ideale per sede istituzionale o studio professionale di alto profilo.

Per info e appuntamenti: Consulente diretto Donato Spinelli 338.6234531.

Al momento dell'appuntamento, forniremo scheda descrittiva dell'immobile e planimetria catastale.

LEGGI TUTTO

CONDIVIDI SUI SOCIAL

DATI PRINCIPALI

Riferimento
629450
Contratto
Vendita
Tipologia
Villa
Superficie
300 mq
Locali
Più di 5
Camere da letto
4
Cucina
Abitabile
Bagni
4
Piano
Piano terra
Totale piani
3

CARATTERISTICHE

Ascensore

COSTI

Prezzo
Trattativa Riservata

EFFICIENZA ENERGETICA

Stato
Da ristrutturare
Anno costruzione
1900
Riscaldamento
Autonomo
Climatizzazione
Si
Classe energetica
F
IPE
175,00 kWh/m²a

A+

A

B

C

D

E

175,00 kWh/m²a | Classe energetica F

F

G

MAPPA

ANNUNCI SIMILI

VENDITA 20
Trattativa Riservata
Villa in Vendita a Roma (Roma)
  • Più di 5 locali
  • 300 mq
  • 4 bagni
VENDITA 20
€ 9.500.000
Villa in Vendita a Roma, Zona Aventino
  • Più di 5 locali
  • 742 mq
  • 4 bagni
VENDITA 20
€ 1.150.000
Villa in Vendita a Roma (Roma)
  • Più di 5 locali
  • 305 mq
  • 4 bagni