Locale in vendita – Via Giacomo Bove, 69 VENDITA

Via Giacomo Bove 69 - Roma, Zona Ostiense
€ 490.000
  • Più di 5 locali
  • 427 mq
  • 2 bagni

Negozio in Vendita a Roma

Nel cuore del quartiere Ostiense, a pochi passi dal Gazometro e dall’area degli ex Mercati Generali, proponiamo in vendita un ampio locale attualmente accatastato come C2 (magazzino), ma facilmente riconvertibile in C1 (negozio), rendendolo ideale per diverse attività commerciali.
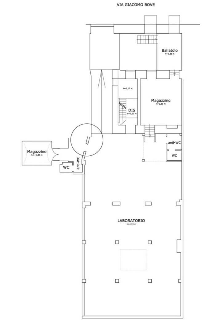
L’immobile si sviluppa su una superficie di circa 300 m² al piano terra, con un livello sottostante di 100 m² e una terrazza di copertura di circa 270 m². Dispone di due ingressi, uno carrabile e uno pedonale, e di una distribuzione interna composta da sei locali oltre a due servizi igienici. Attualmente da ristrutturare, ha ospitato in passato una tipografia ed è situato in un edificio storico risalente al 1900.
L’immobile si trova in una delle zone più dinamiche di Roma, caratterizzata da una forte crescita e da importanti progetti di riqualificazione urbana. A breve distanza si trovano il Gazometro, simbolo del quartiere, e l’area degli ex Mercati Generali, attualmente oggetto di un importante progetto di riqualificazione che prevede la realizzazione di un grande studentato, con apertura prevista per il 2030. Questo intervento aumenterà ulteriormente il valore della zona, rendendola un punto di riferimento per studenti, professionisti e nuove attività commerciali.
L’area è ben collegata dai mezzi pubblici: la stazione Piramide (Metro B, treni regionali e collegamenti diretti con l’aeroporto di Fiumicino) e la stazione ferroviaria di Roma Ostiense si trovano a pochi minuti a piedi. Numerose linee autobus servono la zona, garantendo collegamenti rapidi con il centro città e le principali arterie stradali come la Via Ostiense e la Circonvallazione Ostiense.
Grazie alla sua posizione strategica e alla possibilità di conversione in locale commerciale C1, questa proprietà rappresenta un’ottima opportunità per chi desidera investire in una zona in forte sviluppo, perfetta per negozi, showroom, spazi creativi o attività di ristorazione.

LEGGI TUTTO

CONDIVIDI SUI SOCIAL

DATI PRINCIPALI

Riferimento
641505
Contratto
Vendita
Tipologia
Immobile - Negozio
Superficie
427 mq
Locali
Più di 5
Bagni
2
Piano
Piano rialzato
Totale piani
2

CARATTERISTICHE

Ascensore

COSTI

Prezzo
€ 490.000,00
Spese condominiali
€ 20,00 / mese

EFFICIENZA ENERGETICA

Stato
Da ristrutturare
Anno costruzione
1900
Classe energetica
G
IPE
351,00 kWh/m²a

A+

A

B

C

D

E

F

351,00 kWh/m²a | Classe energetica G

G

MAPPA

ANNUNCI SIMILI

VENDITA 5
€ 120.000
Negozio in Vendita a Roma, Zona Ostiense
  • Più di 5 locali
  • 600 mq
  • 3 bagni
VENDITA 20
€ 1.800.000
Negozio in Vendita a Roma (Roma)
  • Più di 5 locali
  • 470 mq
  • 4 bagni
VENDITA 8
€ 1.500.000
Negozio in Vendita a Roma, Zona Marconi
  • Più di 5 locali
  • 983 mq
  • 3 bagni
VENDITA 20
Trattativa Riservata
Negozio in Vendita a Roma, Zona Marconi
  • Più di 5 locali
  • 549 mq
  • 3 bagni