Via Cristoforo Colombo EUR mq 800 categoria D/8 in vendita VENDITA

Via Alessandro Severo 244 - Roma, Zona San Paolo
€ 780.000
  • Più di 5 locali
  • 800 mq
  • 4 bagni

Negozio in Vendita a Roma

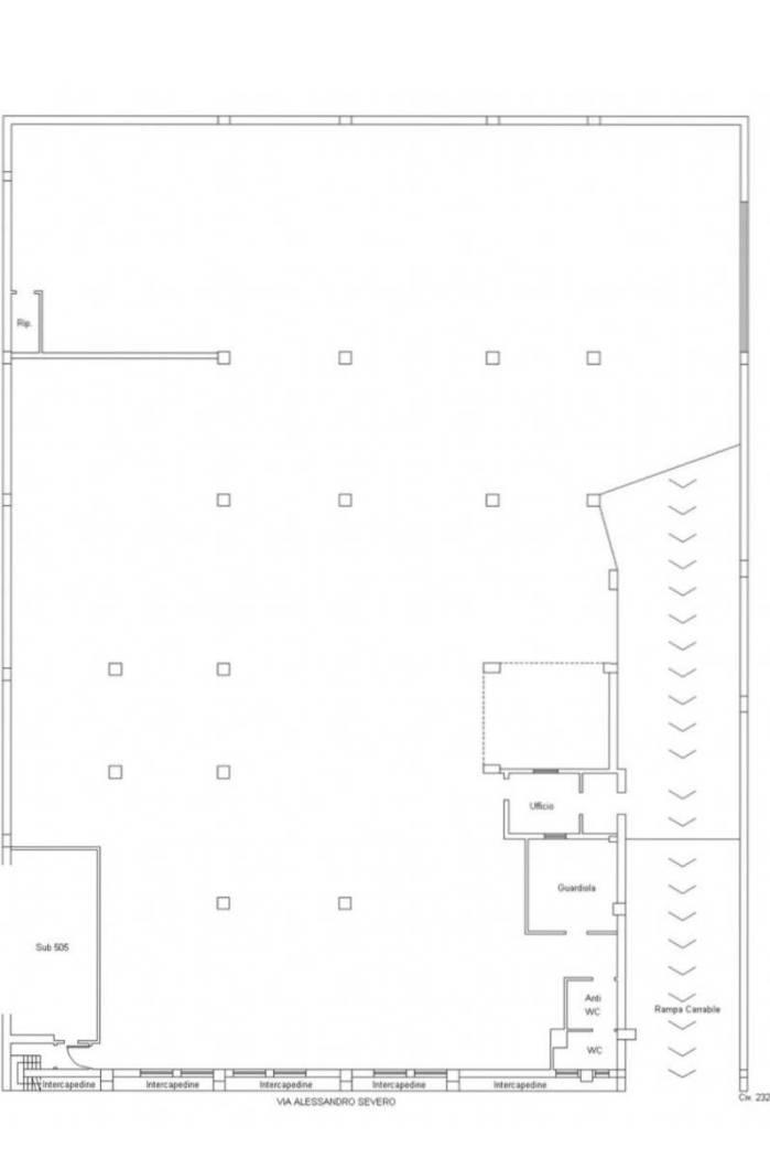
Roma, Ostiense, Via Cristoforo Colombo, EUR, tra San Paolo e Piramide di Caio Cestio , precisamente in via Alessandro Severo, a ridosso di Via Cristoforo Colombo, in una posizione strategica di collegamento tra Centro e Grande Raccordo Anulare proponiamo in vendita locale commerciale, a pochi passi dalla nuova sede RAI . La categoria catastale è D/8 (deposito, stoccaggio; conservazione surgelati; macelli; grande distribuzione, magazzini supermercati, ipermercati). Si include nell'acquisto la licenza per l'esercizio di autorimessa. L'immobile è sito al piano seminterrato ed adibito a parcheggio ad ore (attività con storico trentennale e con recente adeguamento alle normative vigenti). L'immobile ha una rampa carrabile di accesso su V. A. Severo ed una superficie di circa mq 800 con altezza di circa m 4,60, composta da: ampia sala con capienza di circa 80 autoveicoli , ufficio al piano superiore, guardiola, ripostiglio, bagno e antibagno. Telecamere di sorveglianza e allarme. Impianto autonomo. Prezzo di vendita: € 780.000,00 .
Per maggiori informazioni e/o visite contattare CMC Real Estate ai seguenti recapiti: +39 3927206724 ; +39 06 45598430; cmcrealestate@icloud.com ; www.cmcrealestate.it .

LEGGI TUTTO

CONDIVIDI SUI SOCIAL

DATI PRINCIPALI

Riferimento
639152
Contratto
Vendita
Tipologia
Immobile - Negozio
Superficie
800 mq
Locali
Più di 5
Bagni
4
Piano
Interrato
Totale piani
3
Box/Posto auto
Doppio

CARATTERISTICHE

Ascensore Arredato Allarme

COSTI

Prezzo
€ 780.000,00

EFFICIENZA ENERGETICA

Stato
Ristrutturato
Anno costruzione
1970
Riscaldamento
Autonomo
Climatizzazione
Si
Classe energetica
F
IPE
175,00 kWh/m²a

A+

A

B

C

D

E

175,00 kWh/m²a | Classe energetica F

F

G

MAPPA

ANNUNCI SIMILI

VENDITA 14
€ 990.000
Negozio in Vendita a Roma (Roma)
  • Più di 5 locali
  • 304 mq
  • 3 bagni
VENDITA 20
Trattativa Riservata
Negozio in Vendita a Roma, Zona Marconi
  • Più di 5 locali
  • 549 mq
  • 3 bagni
VENDITA 5
€ 120.000
Negozio in Vendita a Roma, Zona Ostiense
  • Più di 5 locali
  • 600 mq
  • 3 bagni
VENDITA 5
€ 660.000
Negozio in Vendita a Roma (Roma)
  • Più di 5 locali
  • 160 mq
  • 2 bagni
VENDITA 20
Trattativa Riservata
Negozio in Vendita a Roma (Roma)
  • Più di 5 locali
  • 123 mq
  • 2 bagni
VENDITA 20
€ 578.000
Negozio in Vendita a Roma (Roma)
  • Più di 5 locali
  • 319 mq
  • 2 bagni