€ 3.000 mensili
  • 4 locali
  • 100 mq
  • 2 bagni

Negozio in Affitto a Roma

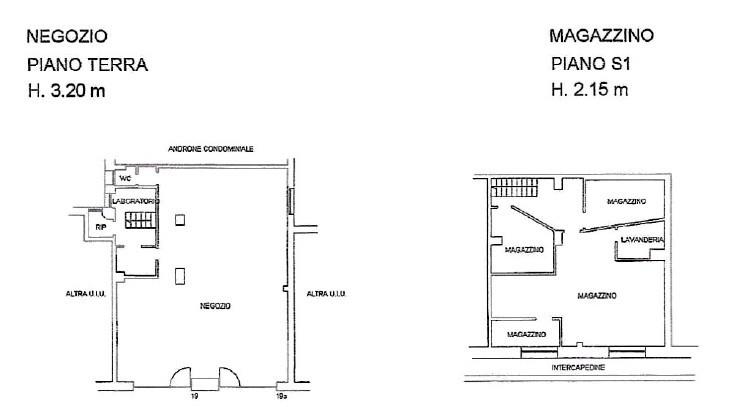
San Giovanni in Laterano, adiacenze, proponiamo in locazione un locale commerciale di circa 100 mq distribuiti su due livelli: piano terra locale commerciale e piano seminterrato C/2 ad uso magazzino. Il locale presenta due vetrine fronte strada. Ideale come bar.

CONDIVIDI SUI SOCIAL

DATI PRINCIPALI

Riferimento
637018
Contratto
Affitto
Tipologia
Immobile - Negozio
Superficie
100 mq
Locali
4
Bagni
2
Piano
Piano terra
Totale piani
7

CARATTERISTICHE

Ascensore Arredato

COSTI

Canone
Affitto € 3.000,00 al mese
Tipo locazione
4+4

EFFICIENZA ENERGETICA

Stato
Abitabile
Riscaldamento
Autonomo
Climatizzazione
Si
Classe energetica
G
IPE
175,00 kWh/m²a

A+

A

B

C

D

E

F

175,00 kWh/m²a | Classe energetica G

G

MAPPA

ANNUNCI SIMILI

AFFITTO
Trattativa Riservata
Negozio in Affitto a Roma, Zona San Giovanni
  • Più di 5 locali
  • 117 mq
  • 1 bagno
AFFITTO
Trattativa Riservata
Negozio in Affitto a Roma, Zona Re di Roma
  • Più di 5 locali
  • 400 mq
  • 1 bagno
AFFITTO 20
€ 7.000 mensili
Negozio in Affitto a Roma (Roma)
  • Più di 5 locali
  • 250 mq
  • 4 bagni