Attico zona Portuense - Villa Bonelli VENDITA

Via Francesco Calzolaio - Roma (Roma)
€ 440.000
  • Trilocale
  • 109 mq
  • 1 bagno

Attico in Vendita a Roma

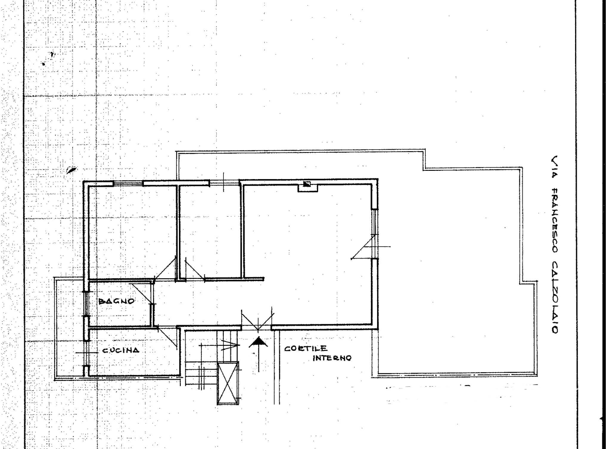
Zona Portuense e precisamente in via Francesco Calzolaio, in palazzo con ascensore, no portierato, proponiamo vendita attico con tripla esposizione posto al 5 piano.
L’attico si sviluppa su un unico piano composto da ingresso salone con camino e sfogo esterno , camera matrimoniale, camera singola (possibilità trasformazione in doppia) cucina con sfogo esterno e bagno con doccia.
Dal salone si accende a un splendido terrazzo di 60 mq. con esposizione sud -est -nord e visuale aperta. L’appartamento è dotato di condizionatori e riscaldamento centralizzato con valvole a consumo. Presenti comodi armadi a muro zona corridoio e camera singola.
L’immobile attualmente locato ma libero dal 01/05/2026.
L’appartamento è posizionato in un quartiere residenziale e completo di ogni tipo di servizio e in una via silenziosa. Nelle immediate vicinanze sono presenti supermercati e farmacie e numerosi collegamenti con i mezzi pubblici, verso le zone limitrofe e il centro città. Presenti scuole, aree verdi e attività commerciali che rendendo la zona comoda e adatta a tutte le esigenze giornaliere.

LEGGI TUTTO

CONDIVIDI SUI SOCIAL

DATI PRINCIPALI

Riferimento
629017
Contratto
Vendita
Tipologia
Attico
Superficie
109 mq
Locali
3
Camere da letto
2
Cucina
Abitabile
Bagni
1
Piano
5 °
Totale piani
5

CARATTERISTICHE

Ascensore

COSTI

Prezzo
€ 440.000,00
Spese condominiali
€ 75,00 / mese

EFFICIENZA ENERGETICA

Stato
Da ristrutturare
Anno costruzione
1967
Riscaldamento
Centralizzato
Climatizzazione
Si
Classe energetica
F
IPE
245,00 kWh/m²a

A+

A

B

C

D

E

245,00 kWh/m²a | Classe energetica F

F

G

MAPPA