ATTICO PANORAMICO CON TERRAZZO E BOX AUTO VENDITA

Via Santorre di Santarosa - Roma (Roma)
€ 780.000
  • Quadrilocale
  • 177 mq
  • 2 bagni

Attico in Vendita a Roma

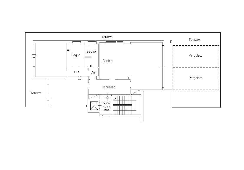
Attico Panoramico con Terrazzo di 120 mq e Box Auto
Via Santorre di Santarosa, proponiamo in vendita un esclusivo attico panoramico situato al 4° ed ultimo piano di una palazzina esternamente rivestita in cortina.
L'immobile si presenta ristrutturato con materiali di pregio, si distingue per eleganza, luminosità e cura dei dettagli.
Composizione:
Ingresso
Salone doppio
Cucina abitabile
Due camere matrimoniali
Doppi servizi, di cui uno en suite con vasca idromassaggio
Terrazzo abitabile perimetrale di circa 120 mq con pergotenda motorizzata
Cantina
Box auto
Il terrazzo rappresenta il vero valore aggiunto: uno spazio panoramico ideale momenti di relax e convivialità, con affacci aperti e riservati.
Finiture e dotazioni:
Pavimentazione in marmo e parquet
Porte in legno massello
Armadi a muro su misura
Infissi blindati in legno con doppio vetro
Serrande elettriche
Impianto di climatizzazione in tutti gli ambienti
Sistema di allarme volumetrico e perimetrale
Controsoffitti con faretti LED
Impianti a norma
Riscaldamento centralizzato con contabilizzatori
Cucina arredata con elettrodomestici di alta fascia

Una soluzione ideale per chi desidera vivere in un contesto residenziale tranquillo, senza rinunciare a comfort, privacy e spazi esterni vivibili.

LEGGI TUTTO

CONDIVIDI SUI SOCIAL

DATI PRINCIPALI

Riferimento
638980
Contratto
Vendita
Tipologia
Attico
Superficie
177 mq
Locali
4
Camere da letto
2
Cucina
Abitabile
Bagni
2
Piano
4 °
Totale piani
4
Box/Posto auto
Singolo

CARATTERISTICHE

Ascensore

COSTI

Prezzo
€ 780.000,00

EFFICIENZA ENERGETICA

Stato
Ristrutturato
Anno costruzione
1970
Riscaldamento
Centralizzato
Climatizzazione
Si
Classe energetica
G
IPE
180,00 kWh/m²a

A+

A

B

C

D

E

F

180,00 kWh/m²a | Classe energetica G

G

MAPPA