• Quadrilocale
  • 133 mq
  • 2 bagni

Attico in Vendita a Roma

Proponiamo in vendita Attico con splendido terrazzo a livello, in via della Magliana in un comprensorio tra i più rinomati della zona.
L’unità immobiliare, posta al quinto piano alto, gode di una tripla esposizione, aperta e luminosa. Presenta una distribuzione interna razionale e funzionale, che consente ulteriori possibilità di ottimizzazione degli spazi, in base alle esigenze dell’acquirente e che divide perfettamente, la zona giorno dalla zona notte.
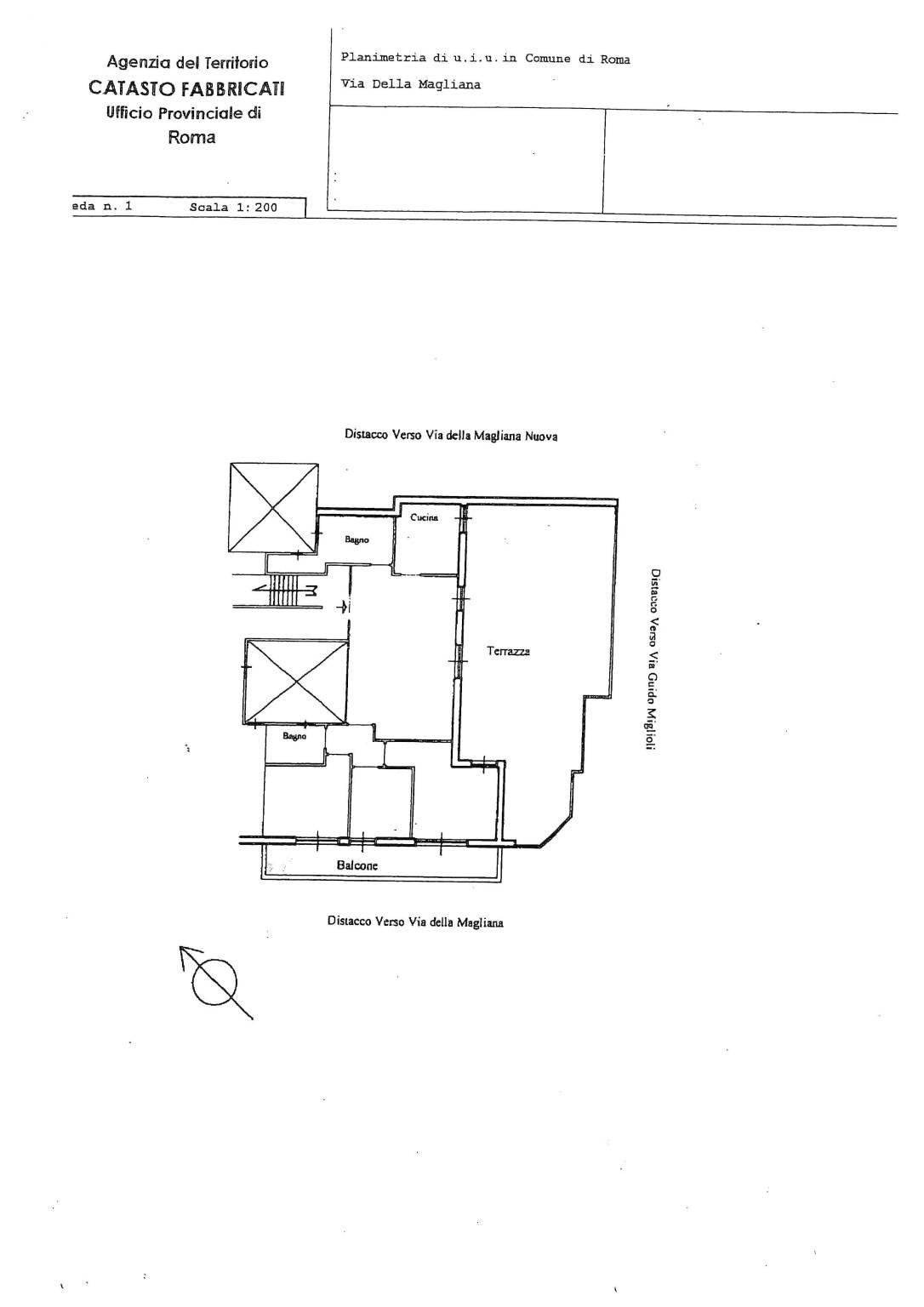
L'appartamento di 117 mq. è composto da un ingresso che apre direttamente nel grande salone con camino, servito da finestra e porta finestra che dà accesso all’ampio e vivibilissimo terrazzo a livello di 60 mq.ca, così come la cucina abitabile che è completamente arredata, due comode camere da letto ed uno studio, tutti serviti da un grande balcone, doppi servizi finestrati, di cui uno con vasca idromassaggio, ed un comodo ripostiglio-lavanderia.
L’attico è stato completamente ristrutturato con materiali di pregio, ha parquet in tutta la casa e pavimentazione nei servizi, è servito da varie armadiature a muro e due soppalchi, gli infissi sono in alluminio con doppi vetri e l’impianto di riscaldamento è centralizzato e c'è l'aria condizionata.
Il piano alto anche se posto sulla strada principale, garantisce una buona tranquillità ed una grande comodità, data la posizione centrale che è servitissima da negozi di ogni genere, oltre che ben collegata grazie a varie linee bus ed alla fermata di Villa Bonelli della linea ferroviaria, che collega verso il centro di Roma e verso l’Aeroporto di Fiumicino, ed alla vicinanza con la Roma-Fiumicino ed il Grande Raccordo Anulare. Le spese di condominio comprensive di quelle di riscaldamento ed acqua ammontano ad euro 230,00 mensili.

LEGGI TUTTO

CONDIVIDI SUI SOCIAL

DATI PRINCIPALI

Riferimento
636104
Contratto
Vendita
Tipologia
Attico
Superficie
133 mq
Locali
4
Camere da letto
2
Cucina
Abitabile
Bagni
2
Piano
5 °
Totale piani
5

CARATTERISTICHE

Ascensore

COSTI

Prezzo
€ 550.000,00
Spese condominiali
€ 230,00 / mese

EFFICIENZA ENERGETICA

Stato
Ristrutturato
Anno costruzione
1970
Riscaldamento
Centralizzato
Classe energetica
F
IPE
175,00 kWh/m²a

A+

A

B

C

D

E

175,00 kWh/m²a | Classe energetica F

F

G

MAPPA

ANNUNCI SIMILI

VENDITA 20
€ 625.000
Attico in Vendita a Roma (Roma)
  • Più di 5 locali
  • 150 mq
  • 2 bagni
VENDITA 20
€ 745.000
Attico in Vendita a Roma (Roma)
  • Quadrilocale
  • 190 mq
  • 2 bagni
VENDITA 20
€ 669.000
Attico in Vendita a Roma, Zona Portuense
  • Più di 5 locali
  • 176 mq
  • 2 bagni