Roma, Morena – Via del Casale Agostinelli VENDITA

Via del Casale Agostinelli 142 - Roma, Frazione Morena
€ 195.000
  • Bilocale
  • 73 mq
  • 1 bagno

Appartamento in Vendita a Roma

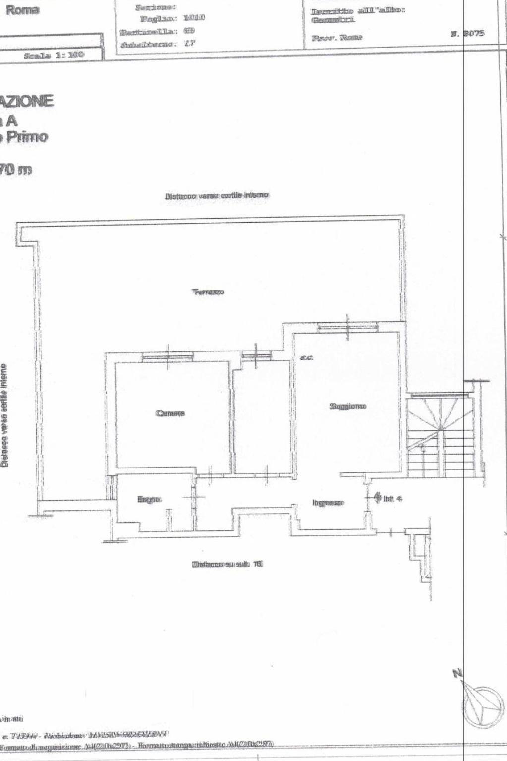
Roma, Morena – Via del Casale Agostinelli, nel quadrante sud della città, un interessante bilocale posto al primo piano di una palazzina inserita in un contesto residenziale tranquillo e riservato.

L’appartamento si presenta con una distribuzione funzionale degli spazi: l’ingresso conduce al soggiorno con angolo cottura, reso particolarmente luminoso dalla porta finestra che permette l’accesso diretto a un ampio terrazzo angolare a L, vero punto di forza della proprietà. Questo spazio esterno, ampio e vivibile, rappresenta un valore aggiunto ideale per momenti di relax, pranzi e cene all’aperto o semplicemente per chi desidera uno sfogo esterno da vivere durante tutto l’anno. La zona notte è composta da una camera da letto matrimoniale, uno studiolo perfetto come ambiente smart-working o piccola cameretta, e un servizio finestrato.
La casa è da ristrutturare e risultano già deliberati e pagati dei lavori riguardanti il rifacimento della facciata e del terrazzo interno dell'appartamento. 

L’immobile è situato in una zona ben servita, con la presenza nelle immediate vicinanze di supermercati, scuole, attività commerciali e aree verdi. I collegamenti sono agevoli grazie alla prossimità con Via Anagnina e con il Grande Raccordo Anulare, che consentono di raggiungere rapidamente sia il centro città sia le principali arterie extraurbane. Sono inoltre presenti linee autobus che collegano comodamente alle fermate della metropolitana Linea A, facilitando gli spostamenti quotidiani.

Soluzione ideale per giovani coppie, professionisti o per chi è alla ricerca di un investimento in una zona ben collegata e in continua evoluzione.

Le presenti informazioni non costituiscono vincolo contrattuale.

LEGGI TUTTO

CONDIVIDI SUI SOCIAL

DATI PRINCIPALI

Riferimento
628728
Contratto
Vendita
Tipologia
Appartamento
Superficie
73 mq
Locali
2
Camere da letto
1
Cucina
Angolo cottura
Bagni
1
Piano
1 °
Totale piani
3
Box/Posto auto
Singolo

CARATTERISTICHE

Ascensore

COSTI

Prezzo
€ 195.000,00
Spese condominiali
€ 50,00 / mese

EFFICIENZA ENERGETICA

Stato
Abitabile
Anno costruzione
1985
Riscaldamento
Autonomo
Climatizzazione
Si
Classe energetica
G
IPE
175,00 kWh/m²a

A+

A

B

C

D

E

F

175,00 kWh/m²a | Classe energetica G

G

MAPPA

ANNUNCI SIMILI

VENDITA 20
€ 310.000
Appartamento in Vendita a Roma, Frazione Morena
  • Trilocale
  • 95 mq
  • 2 bagni
VENDITA 20
€ 310.000
Appartamento in Vendita a Roma, Frazione Morena
  • Trilocale
  • 95 mq
  • 3 bagni
VENDITA 20
€ 310.000
Appartamento in Vendita a Roma, Frazione Morena
  • Trilocale
  • 95 mq
  • 3 bagni