TRILOCALE 80 mq INTERNI 1° PIANO CON TERRAZZO PERIMETRALE VENDITA

Roma, Frazione Morena
€ 295.000
  • Quadrilocale
  • 118 mq
  • 2 bagni

Appartamento in Vendita a Roma

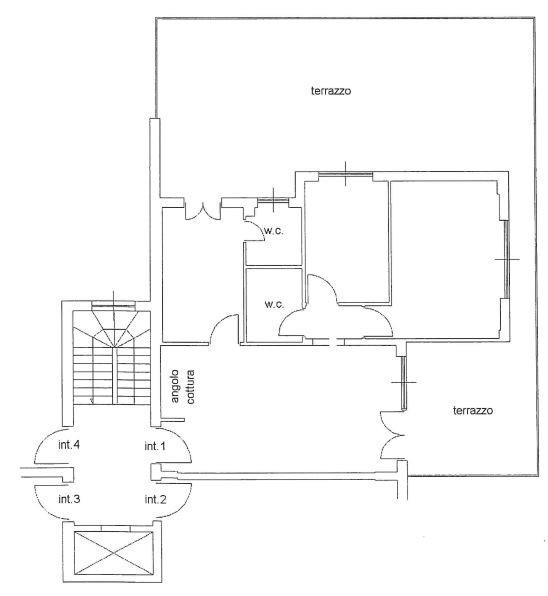
Servizi Immobiliari MediateaM propone in vendita un appartamento posto al 1° piano situato in una palazzina in ottime condizioni le cui facciate sono state da poco restaurate. Il condominio è dotato di ascensore e ha come pertinenza un ampio giardino in parte pavimentato godibilissimo e riservato ai soli condomini. Situato in una delle vie principali molto ben servita con ottimi collegamenti ai mezzi pubblici ed ai negozi di prossimità. L’appartamento risulta essere molto luminoso e panoramico, con ampi distacchi dagli altri fabbricati circostanti. Al piano si compone di: salone con angolo cottura ed accesso all' ampio terrazzo panoramico, un’ampia camera da letto con tripla finestra sul terrazzo perimetrale, cameretta con porta finestra di accesso al terrazzo e bagno privato dotato di doccia e finestra, comodo disimpegno, una cameretta o studio con affaccio sul terrazzo e un secondo bagno dotato di doccia. L’appartamento risulta essere prontamente vivibile in quanto non presenta nessun segno di invecchiamento o manutenzione straordinaria da eseguire. Possibilità di verandare a vetri la loggia del terrazzo. Accessori: porte in legno chiaro, porte-finestre e finestre in legno-vetro, grate a tutte le finestre. Impianti tecnologici: riscaldamento autonomo, videocitofono e portoncino blindato. Le indicazioni riportate nel presente materiale pubblicitario devono essere considerate indicative e non hanno alcun contenuto contrattuale. I dati riportati nelle inserzioni provengono dall’Agenzia MediateaM Servizi Immobiliari. I dati riportati nelle inserzioni provengono dall’agenzia servizi immobiliari MediateaM. Disponiamo di book fotografici completi di tutti gli immobili in portfolio. E-mail: - mob. “Noi ci occupiamo di voi. ” CORDIALI SALUTI

LEGGI TUTTO

CONDIVIDI SUI SOCIAL

DATI PRINCIPALI

Riferimento
639585
Contratto
Vendita
Tipologia
Appartamento
Superficie
118 mq
Locali
4
Camere da letto
3
Cucina
Angolo cottura
Bagni
2
Piano
1 °
Totale piani
4

CARATTERISTICHE

Ascensore

COSTI

Prezzo
€ 295.000,00
Spese condominiali
€ 70,00 / mese

EFFICIENZA ENERGETICA

Stato
Abitabile
Anno costruzione
1970
Riscaldamento
Autonomo
Classe energetica
G
IPE
351,00 kWh/m²a

A+

A

B

C

D

E

F

351,00 kWh/m²a | Classe energetica G

G

MAPPA

ANNUNCI SIMILI

VENDITA 20
€ 269.000
Appartamento in Vendita a Roma (Roma)
  • Quadrilocale
  • 100 mq
  • 2 bagni
VENDITA 20
€ 290.000
Appartamento in Vendita a Roma, Frazione Morena
  • Quadrilocale
  • 127 mq
  • 2 bagni
VENDITA 20
€ 348.000
Appartamento in Vendita a Roma, Frazione Morena
  • Quadrilocale
  • 125 mq
  • 2 bagni
VENDITA 20
€ 448.000
Appartamento in Vendita a Roma, Frazione Morena
  • Più di 5 locali
  • 145 mq
  • 2 bagni