CASSIA GROTTAROSSA ATTICO BALCONATO 95MQ VENDITA

Via Montespertoli - Roma (Roma)
€ 259.000
  • Quadrilocale
  • 99 mq
  • 1 bagno

Appartamento in Vendita a Roma

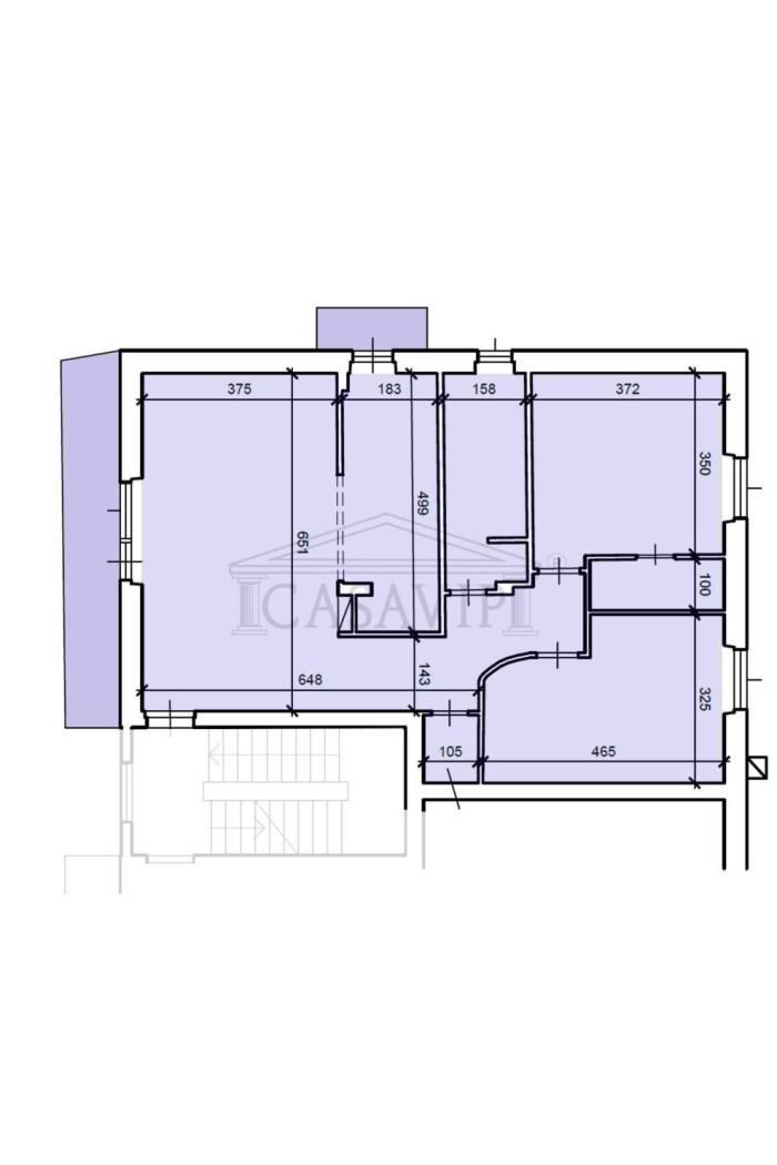
Lungo Via Montespertoli, tranquilla strada situata a ridosso di Via di Grottarossa, a pochissima distanza quindi dal GRA ed a pochi minuti dal centro di Roma, allo stesso tempo immersi nel verde, con una bellissima vista verso il Nord di Roma e con negozi e servizi a portata di mano, all’interno di palazzina non dotata di ascensore, proponiamo in vendita questo delizioso appartamento di circa 95mq oltre 12mq circa di balconi, posto all’ultimo piano della palazzina, senza vani abitativi al piano superiore, rispondendo in questo senso a pieno al concetto di “Attico”.
L’appartamento è composto da un ampio soggiorno, comoda cucina aperta sull’area living.
Zona notte composta da due camere da letto di taglio matrimoniale, di cui una con cabina armadi, bagno con antibagno destinato all’alloggiamento della lavatrice.
Ottimo lo stato di conservazione dell’immobile, dotato di infissi in vetro camera, split per il condizionamento dell’aria, pavimenti in gres porcellanato.
Tra i punti di forza dell’immobile annoveriamo la ottima luminosità, gli affacci tranquilli ed gradevole panorama di cui si può godere da alcune finestre.
L’immobile non è dotato di cantina né di posto auto, ma la proprietà sarebbe disponibile a vendere a parte box di sua proprietà sito a circa 100 metri di distanza.

LEGGI TUTTO

CONDIVIDI SUI SOCIAL

DATI PRINCIPALI

Riferimento
638364
Contratto
Vendita
Tipologia
Appartamento
Superficie
99 mq
Locali
4
Camere da letto
2
Cucina
A vista
Bagni
1
Piano
3 °
Totale piani
3
Box/Posto auto
Singolo

CARATTERISTICHE

Ascensore

COSTI

Prezzo
€ 259.000,00
Spese condominiali
€ 40,00 / mese

EFFICIENZA ENERGETICA

Stato
Abitabile
Anno costruzione
1975
Climatizzazione
Si
Classe energetica
E
IPE
175,00 kWh/m²a

A+

A

B

C

D

175,00 kWh/m²a | Classe energetica E

E

F

G

MAPPA

ANNUNCI SIMILI

VENDITA 20
€ 619.000
Appartamento in Vendita a Roma (Roma)
  • Quadrilocale
  • 240 mq
  • 3 bagni
VENDITA 15
€ 470.000
Appartamento in Vendita a Roma (Roma)
  • Quadrilocale
  • 110 mq
  • 3 bagni
VENDITA 20
€ 550.000
Appartamento in Vendita a Roma (Roma)
  • Quadrilocale
  • 162 mq
  • 3 bagni
VENDITA 20
€ 299.000
Appartamento in Vendita a Roma (Roma)
  • Più di 5 locali
  • 130 mq
  • 2 bagni
VENDITA 20
€ 410.000
Appartamento in Vendita a Roma (Roma)
  • Quadrilocale
  • 172 mq
  • 3 bagni
VENDITA 20
€ 460.000
Appartamento in Vendita a Roma, Zona Tomba Di Nerone
  • Quadrilocale
  • 145 mq
  • 2 bagni
VENDITA 20
€ 620.000
Appartamento in Vendita a Roma (Roma)
  • Più di 5 locali
  • 221 mq
  • 3 bagni
VENDITA 20
€ 150.000
Appartamento in Vendita a Roma (Roma)
  • Quadrilocale
  • 100 mq
  • 2 bagni