RESIDENZE OASI DI VEIO VENDITA

Via Casale Ghella 55 - Roma (Roma)
€ 470.000
  • Quadrilocale
  • 110 mq
  • 3 bagni

Appartamento in Vendita a Roma

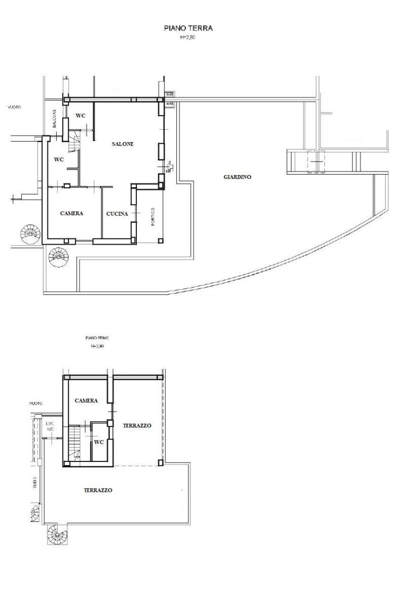
Il lusso del villino con il comfort dell'appartamento! CLASSE ENERGETICA A++++ - MUTUI GREEN AGEVOLATI - TASSI AL 2,60%. Benvenuti nelle residenze dell’Oasi di Veio!In una posizione privilegiata che consente di vivere immersi nella natura del parco di Veio, rimanendo a pochi metri dalla Via Cassia (adiacenze complesso commerciale di Via Cassia 923). Questi appart -villini di NUOVA COSTRUZIONE sono situati in un complesso residenziale moderno, con alloggi progettati per soddisfare ogni esigenza abitativa con stile e funzionalità. TRILOCALE BI-LIVELLI COMPOSTO DA: Ingresso, ampio soggiorno, cucina , camera da letto matrimoniale, doppi servizi, patio e giardino. Seconda camera da letto, bagno ed ampia terrazza al secondo piano. Possibilità posto auto e/o box auto. Già presenti: fotovoltaico, pompa di calore, pavimento radiante con temperatura digitale di ultima generazione, addolcitore e condizionatori Haier anti-covid. Predisposizione domotica e finiture personalizzabili.

PER INFORMAZIONI CONTATTARE IL 3317155270 (ANCHE WHATSAPP)

SEGUICI ANCHE SUI NOSTRI CANALI SOCIAL: Facebook: https://www.facebook.com/lacasacapital/ Instagram: @lacasacapital

Desiderate comprare un immobile ma dovete ancora vendere il vostro? Contattateci per una VALUTAZIONE GRATUITA, il nostro consulente di zona sarà da Voi in 24 h. La Casa Capital offre ai propri clienti un servizio rapido ed efficiente, mirato a soddisfare al meglio ogni tipologia di esigenza; consulenze finanziarie gratuite con la scelta del mutuo più adatto alle vostre esigenze. LA TUA CASA TI ASPETTA!

LEGGI TUTTO

CONDIVIDI SUI SOCIAL

DATI PRINCIPALI

Riferimento
641078
Contratto
Vendita
Tipologia
Appartamento
Superficie
110 mq
Locali
4
Camere da letto
2
Cucina
Abitabile
Bagni
3
Piano
Piano terra
Totale piani
1

CARATTERISTICHE

Ascensore

COSTI

Prezzo
€ 470.000,00

EFFICIENZA ENERGETICA

Stato
Nuovo/In costruzione
Anno costruzione
2025
Riscaldamento
Autonomo
Climatizzazione
Si
Classe energetica
A4
IPE
351,00 kWh/m²a
351,00 kWh/m²a | Classe energetica A4

A4

A3

A2

A1

B

C

D

E

F

G

MAPPA

ANNUNCI SIMILI

VENDITA 20
€ 550.000
Appartamento in Vendita a Roma (Roma)
  • Quadrilocale
  • 162 mq
  • 3 bagni
VENDITA 20
€ 410.000
Appartamento in Vendita a Roma (Roma)
  • Quadrilocale
  • 172 mq
  • 3 bagni
VENDITA 20
€ 619.000
Appartamento in Vendita a Roma (Roma)
  • Quadrilocale
  • 240 mq
  • 3 bagni
VENDITA 20
€ 620.000
Appartamento in Vendita a Roma (Roma)
  • Più di 5 locali
  • 221 mq
  • 3 bagni
VENDITA 20
€ 460.000
Appartamento in Vendita a Roma, Zona Tomba Di Nerone
  • Quadrilocale
  • 145 mq
  • 2 bagni
VENDITA 20
€ 150.000
Appartamento in Vendita a Roma (Roma)
  • Quadrilocale
  • 100 mq
  • 2 bagni
VENDITA 20
€ 299.000
Appartamento in Vendita a Roma (Roma)
  • Più di 5 locali
  • 130 mq
  • 2 bagni