Quadrilocale VENDITA

Via Vasanello - Roma (Roma)
€ 619.000
  • Quadrilocale
  • 240 mq
  • 3 bagni

Appartamento in Vendita a Roma

Si trova nella parte iniziale di Via di Grottarossa, adiacente via Cassia, all'interno di un consorzio privato con servizio di portineria H24, area giochi per bambini e posti auto consortili. Il complesso è ubicato a pochi minuti dal G.R.A. ed in prossimità di tutti i principali servizi, come scuole italiane ed internazionali, ospedali,negozi e fermate dei mezzi pubblici.
L'immobile è parte di una palazzina in cortina ed essendo l'unico appartamento al piano gode di una quadrupla esposizione con affacci panoramici che rendono notevolmente luminoso.
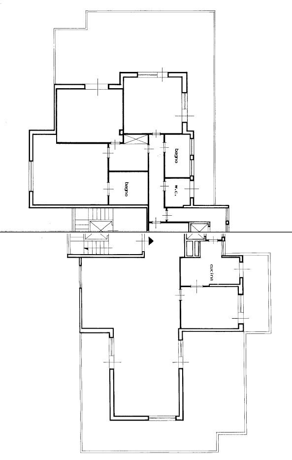
L'unità immobiliare è composto di un salone triplo, 3 ampie camere da letto, una cameretta di servizio, una cucina con un comodo tinello, tripli servizi, lavanderia, un balcone di mq 8 circa e due ampie terrazze panoramiche di mq 140 circa.
Internamente si presenta in discrete condizioni, con porta blindata, marmi e parquet a terra, infissi in legno con doppio vetro, condizionatori e riscaldamento autonomo.
Completa la proprietà un confortevole posto auto sito all'interno di un'autorimessa con cancello carraio, situato a circa 200 metri dall'abitazione.

LEGGI TUTTO

CONDIVIDI SUI SOCIAL

DATI PRINCIPALI

Riferimento
634313
Contratto
Vendita
Tipologia
Appartamento
Superficie
240 mq
Locali
4
Camere da letto
4
Cucina
Abitabile
Bagni
3
Piano
4 °
Totale piani
5
Box/Posto auto
Doppio

CARATTERISTICHE

Ascensore

COSTI

Prezzo
€ 619.000,00
Spese condominiali
€ 290,00 / mese

EFFICIENZA ENERGETICA

Stato
Abitabile
Anno costruzione
1963
Riscaldamento
Autonomo
Climatizzazione
Si
Classe energetica
G
IPE
146,00 kWh/m²a

A+

A

B

C

D

E

F

146,00 kWh/m²a | Classe energetica G

G

MAPPA

ANNUNCI SIMILI

VENDITA 20
€ 410.000
Appartamento in Vendita a Roma (Roma)
  • Quadrilocale
  • 172 mq
  • 3 bagni
VENDITA 20
€ 299.000
Appartamento in Vendita a Roma (Roma)
  • Più di 5 locali
  • 130 mq
  • 2 bagni
VENDITA 20
€ 460.000
Appartamento in Vendita a Roma, Zona Tomba Di Nerone
  • Quadrilocale
  • 145 mq
  • 2 bagni
VENDITA 20
€ 620.000
Appartamento in Vendita a Roma (Roma)
  • Più di 5 locali
  • 221 mq
  • 3 bagni
VENDITA 20
€ 350.000
Appartamento in Vendita a Roma, Zona Tomba Di Nerone
  • Più di 5 locali
  • 120 mq
  • 2 bagni
VENDITA 20
€ 450.000
Appartamento in Vendita a Roma, Zona Tomba Di Nerone
  • Più di 5 locali
  • 180 mq
  • 3 bagni