RESIDENZE "OASI DI VEIO" VENDITA

Via Casale Ghella 55 - Roma (Roma)
€ 550.000
  • Quadrilocale
  • 162 mq
  • 3 bagni

Appartamento in Vendita a Roma

Il lusso del villino con il comfort dell'appartamento!
CLASSE ENERGETICA A++++ - MUTUI GREEN AGEVOLATI - TASSI AL 2,60%.
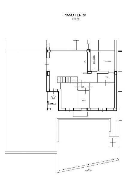
Benvenuti nelle residenze dell’Oasi di Veio!In una posizione privilegiata che consente di vivere immersi nella natura del parco di Veio, rimanendo a pochi metri dalla Via Cassia (adiacenze complesso commerciale di Via Cassia 923). Questi appart -villini di NUOVA COSTRUZIONE sono situati in un complesso residenziale moderno, con alloggi progettati per soddisfare ogni esigenza abitativa con stile e funzionalità. QUADRILOCALE BI-LIVELLI, CON ENTRATA INDIPENDENTE, COMPOSTO DA: ( Piano Terra )Ingresso, soggiorno con cucina a vista, disimpegno, due camere da letto, doppi servizi e due ampi sfoghi esterni (giardino in parte pavimentato ed in parte in erba). Al piano sottostante, due camere e bagno (versione 1 in planimetria). Possibilità di inserire la cucina al posto di una camera (vedi planimetria allegata – versione 2). Ampio box auto. Possibilità ulteriore box. Già presenti: fotovoltaico, pompa di calore, pavimento radiante con temperatura digitale di ultima generazione, addolcitore e condizionatori Haier anti-covid. Predisposizione domotica e finiture personalizzabili.

LEGGI TUTTO

CONDIVIDI SUI SOCIAL

DATI PRINCIPALI

Riferimento
641086
Contratto
Vendita
Tipologia
Appartamento
Superficie
162 mq
Locali
4
Camere da letto
3
Cucina
Angolo cottura
Bagni
3
Piano
Piano terra
Totale piani
2
Box/Posto auto
Doppio

CARATTERISTICHE

Ascensore

COSTI

Prezzo
€ 550.000,00

EFFICIENZA ENERGETICA

Stato
Nuovo/In costruzione
Anno costruzione
2025
Riscaldamento
Autonomo
Climatizzazione
Si
Classe energetica
A4
IPE
351,00 kWh/m²a
351,00 kWh/m²a | Classe energetica A4

A4

A3

A2

A1

B

C

D

E

F

G

MAPPA

ANNUNCI SIMILI

VENDITA 15
€ 470.000
Appartamento in Vendita a Roma (Roma)
  • Quadrilocale
  • 110 mq
  • 3 bagni
VENDITA 20
€ 410.000
Appartamento in Vendita a Roma (Roma)
  • Quadrilocale
  • 172 mq
  • 3 bagni
VENDITA 20
€ 619.000
Appartamento in Vendita a Roma (Roma)
  • Quadrilocale
  • 240 mq
  • 3 bagni
VENDITA 20
€ 620.000
Appartamento in Vendita a Roma (Roma)
  • Più di 5 locali
  • 221 mq
  • 3 bagni
VENDITA 20
€ 460.000
Appartamento in Vendita a Roma, Zona Tomba Di Nerone
  • Quadrilocale
  • 145 mq
  • 2 bagni
VENDITA 20
€ 150.000
Appartamento in Vendita a Roma (Roma)
  • Quadrilocale
  • 100 mq
  • 2 bagni
VENDITA 20
€ 299.000
Appartamento in Vendita a Roma (Roma)
  • Più di 5 locali
  • 130 mq
  • 2 bagni