VILLA TRILIVELLO CON DOPPIO GIARDINO E BOX AUTO VENDITA

Viale America - Ladispoli (Roma)
€ 369.000
  • Più di 5 locali
  • 240 mq
  • 3 bagni

Villetta a schiera in Vendita a Ladispoli

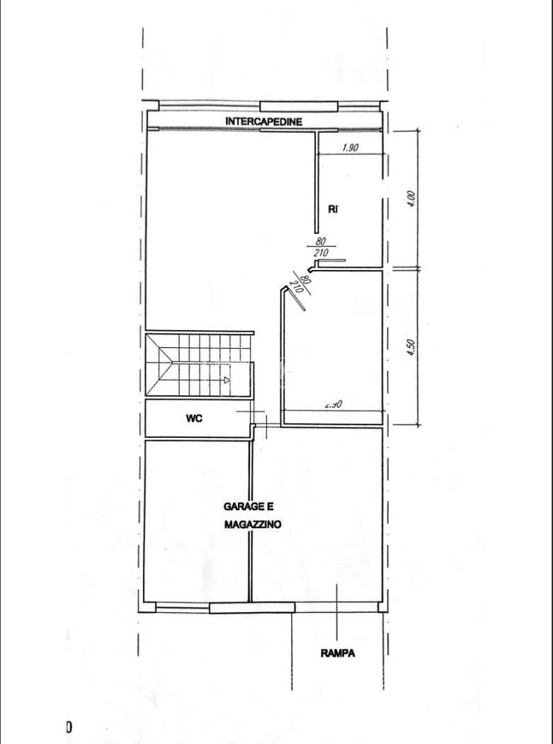
Rif: ES103 - La Tempocasa Ladispoli è lieta di proporre in vendita splendida villa su tre livelli, ideale per chi desidera vivere in un contesto tranquillo, riservato e confortevole. L’immobile si sviluppa come segue: Al piano terra troviamo un ampio e luminoso soggiorno, cucina con sala da pranzo, bagno e doppio patio. Il piano primo ospita la zona notte composta da due camere matrimoniali, una cameretta , un secondo bagno e due ampi balconi. Al piano seminterrato troviamo un accogliente sala hobby con angolo cottura e camino, una camera matrimoniale e un terzo bagno. Completano la proprietà un doppio giardino ideale per momenti di relax, e box auto. Soluzione ideale per famiglie o per chi cerca spazi ampi e ben distribuiti, senza rinunciare alla privacy e al comfort. Per fissare un appuntamento di visita o per maggiori informazioni riguardante l'immobile potete contattarci al numero 0699228000 o venire a trovarci presso l'agenzia sita in Via Cagliari,25- Ladispoli 00055. La Tempocasa di Ladispoli rimane a vostra disposizione per soddisfare le vostre esigenze aiutandovi nella ricerca della casa, e qualora foste interessati ad una valutazione del vostro immobile sappiate che sarà completamente gratuita e senza impegno. Tempocasa...Ed è già casa!

LEGGI TUTTO

CONDIVIDI SUI SOCIAL

DATI PRINCIPALI

Riferimento
641720
Contratto
Vendita
Tipologia
Villetta a schiera
Superficie
240 mq
Locali
5
Camere da letto
3
Cucina
Abitabile
Bagni
3
Piano
Piano terra
Totale piani
1
Box/Posto auto
Singolo

CARATTERISTICHE

Ascensore

COSTI

Prezzo
€ 369.000,00

EFFICIENZA ENERGETICA

Stato
Ristrutturato
Anno costruzione
1989
Riscaldamento
Autonomo
Classe energetica
G
IPE
175,00 kWh/m²a

A+

A

B

C

D

E

F

175,00 kWh/m²a | Classe energetica G

G

MAPPA

ANNUNCI SIMILI

VENDITA 20
€ 290.000
Villetta a schiera in Vendita a Ladispoli (Roma)
  • Più di 5 locali
  • 180 mq
  • 3 bagni
VENDITA 20
€ 350.000
Villetta a schiera in Vendita a Ladispoli (Roma)
  • Più di 5 locali
  • 180 mq
  • 2 bagni
VENDITA 20
€ 349.000
Villetta a schiera in Vendita a Ladispoli (Roma)
  • Più di 5 locali
  • 160 mq
  • 3 bagni
VENDITA 20
€ 345.000
Villetta a schiera in Vendita a Ladispoli (Roma)
  • Più di 5 locali
  • 155 mq
  • 3 bagni
VENDITA 20
€ 299.000
Villetta a schiera in Vendita a Ladispoli (Roma)
  • Più di 5 locali
  • 180 mq
  • 3 bagni
VENDITA 20
€ 289.000
Villetta a schiera in Vendita a Ladispoli (Roma)
  • Più di 5 locali
  • 135 mq
  • 3 bagni
VENDITA 20
€ 399.000
Villetta a schiera in Vendita a Ladispoli (Roma)
  • Più di 5 locali
  • 200 mq
  • 2 bagni
VENDITA 8
€ 360.000
Villetta a schiera in Vendita a Ladispoli (Roma)
  • Più di 5 locali
  • 238 mq
  • 3 bagni
VENDITA 20
€ 160.000
Villetta a schiera in Vendita a Cerveteri (Roma)
  • Più di 5 locali
  • 100 mq
  • 3 bagni
VENDITA 20
€ 195.000
Villetta a schiera in Vendita a Cerveteri (Roma)
  • Più di 5 locali
  • 125 mq
  • 2 bagni
VENDITA 20
€ 333.000
Villetta a schiera in Vendita a Cerveteri (Roma)
  • Più di 5 locali
  • 120 mq
  • 2 bagni