VILLA IN CENTRO DI AMPIA METRATURA CON POSTO AUTO VENDITA

Via Anzio 21 - Ladispoli (Roma)
€ 349.000
  • Più di 5 locali
  • 160 mq
  • 3 bagni

Villetta a schiera in Vendita a Ladispoli

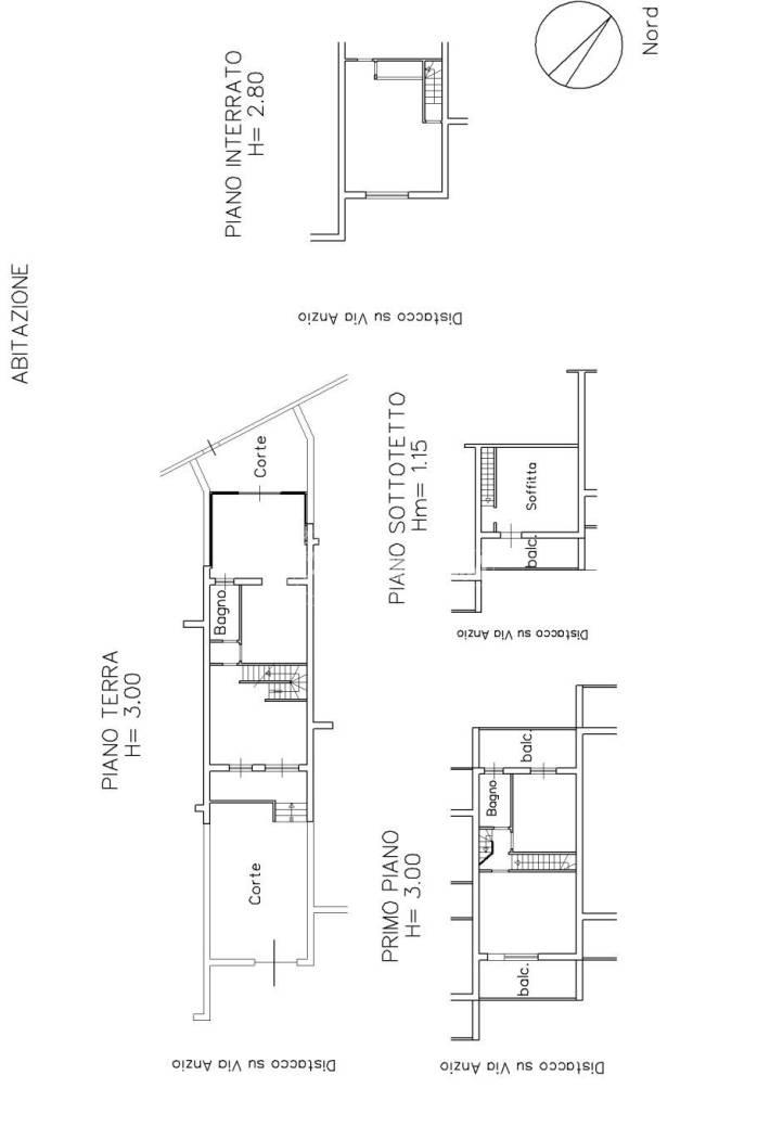
Rif: CM020 - La Tempocasa di Ladispoli propone in vendita una prestigiosa villa di ampia metratura situata in centro. La proprietà, luminosa e ben distribuita, si sviluppa su quattro livelli:
Piano Terra: ampio doppio soggiorno, cucina abitabile e bagno.
Piano Seminterrato: due camere spaziose e un secondo bagno.
Primo Piano: due camere da letto, entrambe con accesso ai doppi balconi, e un ulteriore bagno.
secondo Piano: accogliente camera mansardata con balcone privato.
A completare la soluzione troviamo un doppio giardino con passo carrabile e una cantina.
Una villa versatile, perfetta per chi cerca comfort, spazio e una posizione centrale.Per fissare un appuntamento di visita o per maggiori informazioni riguardante l'immobile potete contattarci al numero 0699228000 o venire a trovarci presso l'agenzia sita in Via Cagliari,25- Ladispoli 00055. La Tempocasa di Ladispoli rimane a vostra disposizione per soddisfare le vostre esigenze aiutandovi nella ricerca della casa, e qualora foste interessati ad una valutazione del vostro immobile sappiate che sarà completamente gratuita e senza impegno. Tempocasa...Ed è già casa!

LEGGI TUTTO

CONDIVIDI SUI SOCIAL

DATI PRINCIPALI

Riferimento
641744
Contratto
Vendita
Tipologia
Villetta a schiera
Superficie
160 mq
Locali
Più di 5
Camere da letto
5
Cucina
Abitabile
Bagni
3
Piano
Piano terra
Totale piani
4
Box/Posto auto
Singolo

CARATTERISTICHE

Ascensore

COSTI

Prezzo
€ 349.000,00

EFFICIENZA ENERGETICA

Stato
Abitabile
Anno costruzione
1990
Riscaldamento
Autonomo
Classe energetica
G
IPE
1,00 kWh/m²a

A+

A

B

C

D

E

F

1,00 kWh/m²a | Classe energetica G

G

MAPPA

ANNUNCI SIMILI

VENDITA 20
€ 350.000
Villetta a schiera in Vendita a Ladispoli (Roma)
  • Più di 5 locali
  • 180 mq
  • 2 bagni
VENDITA 20
€ 299.000
Villetta a schiera in Vendita a Ladispoli (Roma)
  • Più di 5 locali
  • 180 mq
  • 3 bagni
VENDITA 20
€ 399.000
Villetta a schiera in Vendita a Ladispoli (Roma)
  • Più di 5 locali
  • 200 mq
  • 2 bagni
VENDITA 8
€ 360.000
Villetta a schiera in Vendita a Ladispoli (Roma)
  • Più di 5 locali
  • 238 mq
  • 3 bagni
VENDITA 20
€ 359.000
Villetta a schiera in Vendita a Santa Marinella (Roma)
  • Più di 5 locali
  • 270 mq
  • 3 bagni
VENDITA 20
€ 265.000
Villetta a schiera in Vendita a Fiumicino (Roma)
  • Più di 5 locali
  • 143 mq
  • 2 bagni
VENDITA 20
€ 285.000
Villetta a schiera in Vendita a Fiumicino (Roma)
  • Più di 5 locali
  • 123 mq
  • 3 bagni
VENDITA 20
€ 560.000
Villetta a schiera in Vendita a Fiumicino (Roma)
  • Più di 5 locali
  • 156 mq
  • 4 bagni