ELEGANTE VILLA DI AMPIA METRATURA CON GIARDINO E BOX AUTO VENDITA

VIA VILNIUS 1 - Ladispoli (Roma)
€ 399.000
  • Più di 5 locali
  • 180 mq
  • 4 bagni

Villetta a schiera in Vendita a Ladispoli

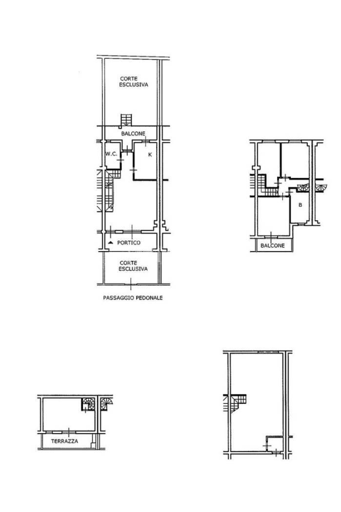
Rif: ES130 - Proponiamo in vendita una elegante villa disposta su quattro livelli, caratterizzata da spazi ampi e ben distribuiti e accesso diretto al box auto. Al piano terra si sviluppa la zona giorno con un luminoso soggiorno, cucina a vista e bagno di servizio, ideale per la vita quotidiana e per accogliere gli ospiti. Il piano seminterrato ospita una grande sala hobby con angolo cottura e camino, oltre a un secondo bagno: uno spazio versatile perfetto per momenti di convivialità, relax o area entertainment. La zona notte, al piano primo, è composta da due camere matrimoniali, di cui una con accesso al balcone, una cameretta e un terzo bagno. Al piano secondo troviamo una comoda mansarda, arricchita da un ulteriore balcone, ideale come studio, area relax o quarta camera. A completare la proprietà un doppio giardino, perfetto per vivere gli spazi esterni in ogni stagione, e un comodo box auto. L’immobile è dotato di pannelli solari per la produzione di acqua calda sanitaria. Soluzione ideale per famiglie che desiderano indipendenza, comfort e ambienti versatili. Per fissare un appuntamento di visita o per maggiori informazioni riguardante l'immobile potete contattarci al numero 0699228000 o venire a trovarci presso l'agenzia sita in Via Cagliari,25- Ladispoli 00055. La Tempocasa di Ladispoli rimane a vostra disposizione per soddisfare le vostre esigenze aiutandovi nella ricerca della casa, e qualora foste interessati ad una valutazione del vostro immobile sappiate che sarà completamente gratuita e senza impegno. Tempocasa...Ed è già casa!

LEGGI TUTTO

CONDIVIDI SUI SOCIAL

DATI PRINCIPALI

Riferimento
641749
Contratto
Vendita
Tipologia
Villetta a schiera
Superficie
180 mq
Locali
Più di 5
Camere da letto
4
Cucina
Angolo cottura
Bagni
4
Piano
Piano terra
Totale piani
2
Box/Posto auto
Singolo

CARATTERISTICHE

Ascensore

COSTI

Prezzo
€ 399.000,00
Spese condominiali
€ 17,00 / mese

EFFICIENZA ENERGETICA

Stato
Abitabile
Anno costruzione
2001
Riscaldamento
Autonomo
Classe energetica
G
IPE
1,00 kWh/m²a

A+

A

B

C

D

E

F

1,00 kWh/m²a | Classe energetica G

G

MAPPA

ANNUNCI SIMILI

VENDITA 20
€ 399.000
Villetta a schiera in Vendita a Ladispoli (Roma)
  • Più di 5 locali
  • 200 mq
  • 2 bagni
VENDITA 20
€ 299.000
Villetta a schiera in Vendita a Ladispoli (Roma)
  • Più di 5 locali
  • 180 mq
  • 3 bagni
VENDITA 8
€ 360.000
Villetta a schiera in Vendita a Ladispoli (Roma)
  • Più di 5 locali
  • 238 mq
  • 3 bagni
VENDITA 20
€ 349.000
Villetta a schiera in Vendita a Ladispoli (Roma)
  • Più di 5 locali
  • 160 mq
  • 3 bagni
VENDITA 20
€ 350.000
Villetta a schiera in Vendita a Ladispoli (Roma)
  • Più di 5 locali
  • 180 mq
  • 2 bagni
VENDITA 20
€ 265.000
Villetta a schiera in Vendita a Fiumicino (Roma)
  • Più di 5 locali
  • 143 mq
  • 2 bagni
VENDITA 20
€ 359.000
Villetta a schiera in Vendita a Santa Marinella (Roma)
  • Più di 5 locali
  • 270 mq
  • 3 bagni
VENDITA 20
€ 285.000
Villetta a schiera in Vendita a Fiumicino (Roma)
  • Più di 5 locali
  • 123 mq
  • 3 bagni
VENDITA 20
€ 560.000
Villetta a schiera in Vendita a Fiumicino (Roma)
  • Più di 5 locali
  • 156 mq
  • 4 bagni