NUOVE COSTRUZIONI VENDITA

Via Santa Chiara - Marino (Roma)
€ 309.000
  • Trilocale
  • 150 mq
  • 2 bagni

Villa in Vendita a Marino

Villetta a Schiera di Nuova Costruzione in Vendita - Un'Occasione Imperdibile!

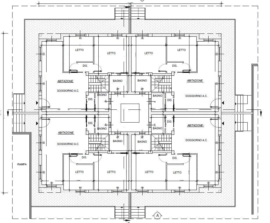
Scopri la tua nuova casa in questa splendida villetta a schiera, parte di un elegante complesso quadrifamiliare. Situata in una zona strategica, a pochi passi dal centro abitato, questa proprietà offre tutto ciò che desideri per una vita confortevole e moderna. Con una superficie commerciale di 155 m², troverai ampi spazi luminosi e ben progettati.

Al piano terra, un accogliente soggiorno con cucina a vista ti accoglie con la sua luminosità e calore, mentre le due camere da letto offrono privacy e tranquillità. I doppi servizi, di cui uno privato nella camera patronale, garantiscono comodità per tutta la famiglia. Non dimenticare l'accesso al giardino privato, perfetto per momenti di relax all'aperto. Al piano superiore, un ambiente versatile può essere utilizzato come studio o area relax, con uscita su un comodo terrazzo.

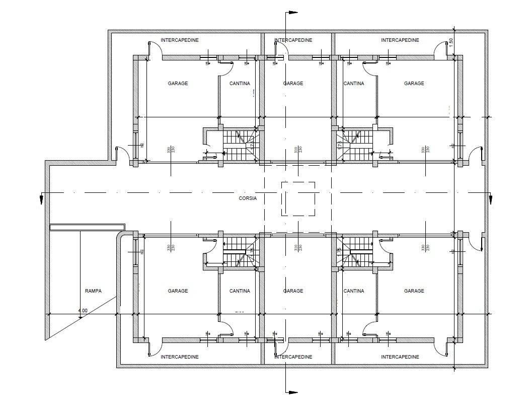
La villetta è dotata di un ampio garage e cantina al piano seminterrato, per le tue esigenze di parcheggio e rimessaggio attrezzi. Gli impianti moderni, tra cui il fotovoltaico e il riscaldamento radiante a terra, sono progettati per garantire il massimo risparmio energetico. Realizzata con materiali di alta qualità, questa casa è pronta per essere abitata. Non perdere l'opportunità di vivere in una casa nuova, confortevole e ricca di comfort.

Prezzi a partire da € 309.000.

Per ulteriori informazioni o per fissare il tuo appuntamento contatta il n. 06/9348045. Metacasa Servizi Immobiliari opera, per i propri clienti i migliori immobili su tutta la zona dei Castelli Romani e Roma effettuando una ricerca specifica secondo i criteri favoriti del cliente stesso seguendolo nelle varie fasi di vendita, ricerca, acquisto.
La nostra agenzia mette a disposizione dei propri clienti un servizio di consulenza finanziaria per aiutarli a trovare la soluzione migliore nell' ambito bancario dei mutui. La nostra agenzia è in grado di proporre soluzioni "su misura" per ogni realtà individuale, imprenditoriale e professionale, affiancando le imprese che affrontano il "mercato globale" con un'ampia gamma di servizi, mirata a garantire lo sviluppo del loro business.
L'agenzia Metacasa Servizi Immobiliari è aperta la mattina dal lunedì al venerdì dalle 9:00 alle 13:00, il pomeriggio dalle 15:30 alle 19:00.

LEGGI TUTTO

CONDIVIDI SUI SOCIAL

DATI PRINCIPALI

Riferimento
639962
Contratto
Vendita
Tipologia
Villa
Superficie
150 mq
Locali
3
Camere da letto
2
Cucina
Angolo cottura
Bagni
2
Piano
Piano terra
Totale piani
2
Box/Posto auto
Doppio

CARATTERISTICHE

Ascensore

COSTI

Prezzo
€ 309.000,00

EFFICIENZA ENERGETICA

Stato
Nuovo/In costruzione
Anno costruzione
2024
Riscaldamento
Autonomo
Classe energetica
A2
IPE
351,00 kWh/m²a

A4

A3

351,00 kWh/m²a | Classe energetica A2

A2

A1

B

C

D

E

F

G

MAPPA

ANNUNCI SIMILI

VENDITA 20
€ 579.000
Villa in Vendita a Marino (Roma)
  • Più di 5 locali
  • 230 mq
VENDITA 13
€ 368.000
Villa in Vendita a Marino (Roma)
  • Quadrilocale
  • 70 mq
  • 2 bagni
VENDITA 20
€ 389.000
  • Più di 5 locali
  • 207 mq
  • 2 bagni