IN COTRUZIONE PORZIONE DI VILLA ANGOLARE CON GIARDINO VENDITA

via J.Kennedy, 13 - Marino, Frazione Frattocchie
€ 320.000
  • Trilocale
  • 105 mq
  • 3 bagni

Villa in Vendita a Marino

Marino - Frattocchie in via Kennedy, all’interno del complesso residenziale “L’Uliveto”, con tutti i servizi raggiungibili a piedi come scuole, parchi pubblici, supermercati (centro commerciale La Nave) , nonché comodo per il raggiungimento sia di via Nettunense che via del Divino Amore, proponiamo la vendita del nuovo corpo di ville in pentafamiliare.
Le tipologie abitative sono due con 2 o 3 camere da letto, con la progettazione a cura dell’Architetto Alessio de Acetis.

La struttura è la fusione perfetta per chi vuole vivere nelle vicinanze dei servizi senza rinunciare all’indipendenza. Un progetto moderno che fa della tecnologia un perno grazie al riscaldamento a pavimento con impianto a pompa di calore sistema Daikin, pavimento radiante, predisposizione per condizionatori idronici in tutti gli ambienti, boiler di accumulo acqua calda sanitaria, impianto fotovoltaico di 1 kw, predisposizione impianto di allarme, cisterna di accumulo acqua piovana per irrigazione giardino.
Il compresso è il proseguo di ville già edificate con gli stessi criteri costruttivi, adiacente al parco comunale di via Kennedy.

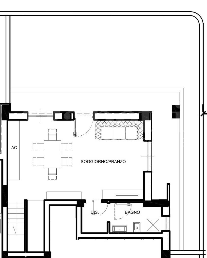
Proponiamo la vendita della porzione Angolare cielo-terra di circa 105 mq residenziali, divisa nella zona giorno al piano terra e la zona notte al primo piano. Entriamo nella proprietà dal giardino perimetrale, raggiungiamo l’interno della struttura dove troviamo la comoda zona giorno con angolo cottura, disimpegno e bagno; al piano superiore disimpegno, 2 camere da letto entrambe matrimoniali, 2 bagni e due balconi. La doppia esposizione rende l’immobile luminoso e arioso.
Completa la proprietà un posto auto scoperto interno al Residence.

La consegna è prevista per fine 2026

Prezzi di vendita a partire da euro 320.000

Per maggiori informazioni contattateci al numero 069388915 oppure al 3457610984 anche Whatsapp

PER RESTARE SEMPRE AGGIORNATI SEGUITECI SUI SOCIAL:
https://www.instagram.com/gabetti.santamariadellemole
https://www.facebook.com/gabettisantamariadellemole
http://tiktok.com/@gabetti.santa.maria

LEGGI TUTTO

CONDIVIDI SUI SOCIAL

DATI PRINCIPALI

Riferimento
641948
Contratto
Vendita
Tipologia
Villa
Superficie
105 mq
Locali
3
Camere da letto
2
Cucina
Angolo cottura
Bagni
3
Piano
Piano terra
Totale piani
2
Box/Posto auto
Singolo

CARATTERISTICHE

Ascensore

COSTI

Prezzo
€ 320.000,00
Spese condominiali
€ 20,00 / mese

EFFICIENZA ENERGETICA

Stato
Nuovo/In costruzione
Anno costruzione
2026
Riscaldamento
Autonomo
Climatizzazione
Predisposizione
Classe energetica
A4
IPE
44,00 kWh/m²a
44,00 kWh/m²a | Classe energetica A4

A4

A3

A2

A1

B

C

D

E

F

G

MAPPA

ANNUNCI SIMILI

VENDITA 20
€ 389.000
  • Più di 5 locali
  • 207 mq
  • 2 bagni
VENDITA 20
€ 580.000
  • Più di 5 locali
  • 240 mq
  • 2 bagni
VENDITA 20
€ 550.000
  • Più di 5 locali
  • 240 mq
  • 2 bagni