MARINO - VILLA UNIFAMILIARE CON TERRENO VENDITA

Vicolo delle Mimose 1/C - Marino (Roma)
€ 500.000
  • Più di 5 locali
  • 180 mq
  • 3 bagni

Villa in Vendita a Marino

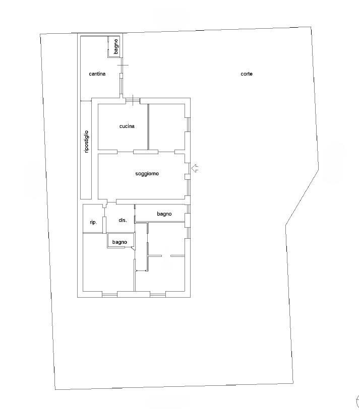
Proponiamo in vendita uno splendido villino posto al piano terreno, composto da sette vani catastali, con annessa corte di pertinenza esclusiva di circa 1.500 mq e ulteriore corte pertinenziale di 81 mq, per una superficie complessiva tra coperto e scoperto di circa 1.600 mq.
L’immobile, completamente sviluppato su un unico livello, è così composto:
-Ampio soggiorno con camino
-Cucina tinello
-Sala da pranzo
-Due spaziosi disimpegni
-Tre camere da letto
-Zona lavanderia
-Tre bagni
-Magazzino
La distribuzione su un unico piano garantisce comfort, funzionalità e grande vivibilità degli spazi, con una zona giorno ampia e conviviale, ideale per la vita familiare e per momenti di rappresentanza.
La generosa corte esterna rappresenta un vero valore aggiunto, offrendo privacy, tranquillità e ampi spazi da vivere all’aperto.

Le presenti informazioni e planimetrie sono meramente indicative e non costituiscono elementi contrattuali. Per prenotare una visita all'immobile o per richiedere maggiori informazioni potete contattare la nostra sede in via Nomentana 861 I-O ai seguenti recapiti telefonici: 06/86558617 - 3519485469, oppure scrivere al nostro indirizzo mail: segreteria@volpescase-re.com Mettete mi piace alle nostre pagine Facebook & Instagram Volpes Case M&N Real Estate per rimanere sempre aggiornati sulle proposte immobiliari.

LEGGI TUTTO

CONDIVIDI SUI SOCIAL

DATI PRINCIPALI

Riferimento
637605
Contratto
Vendita
Tipologia
Villa
Superficie
180 mq
Locali
5
Camere da letto
4
Cucina
Abitabile
Bagni
3
Piano
Piano terra
Totale piani
1

CARATTERISTICHE

Ascensore

COSTI

Prezzo
€ 500.000,00

EFFICIENZA ENERGETICA

Stato
Ristrutturato
Riscaldamento
Autonomo
Climatizzazione
Si
Classe energetica
F
IPE
175,00 kWh/m²a

A+

A

B

C

D

E

175,00 kWh/m²a | Classe energetica F

F

G

MAPPA

ANNUNCI SIMILI

VENDITA 20
€ 680.000
Villa in Vendita a Marino (Roma)
  • Più di 5 locali
  • 586 mq
  • 4 bagni
VENDITA 20
€ 990.000
Villa in Vendita a Marino (Roma)
  • Più di 5 locali
  • 550 mq
  • 4 bagni
VENDITA 20
€ 579.000
Villa in Vendita a Marino (Roma)
  • Più di 5 locali
  • 230 mq
VENDITA 20
€ 350.000
Villa in Vendita a Marino (Roma)
  • Più di 5 locali
  • 300 mq
  • 3 bagni