Via di C. Bertone ad., Ristorante/LoungeBar con Dehor AFFITTO

Via di Casal Bertone 171 - Roma (Roma)
€ 2.200 mensili
  • Più di 5 locali
  • 165 mq
  • 3 bagni

Negozio in Affitto a Roma

Rif. RMCP627

La Lux Food Restaurant Brokers,
propone l’affitto di ramo d’azienda finalizzato alla cessione di un Ristorante/Hamburgeria /Bistrot
ubicato nel frequentatissimo quartiere Tiburtino , nelle immediate adiacenze di Via di Casal Bertone e di Via di Portonaccio.
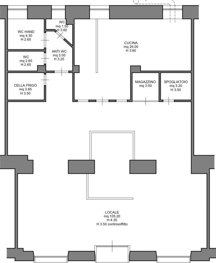
La location gode di tre vetrine su strada, si tratta di mq 165 c. a.
Il locale si sviluppa su un unico livello, con la possibilità di ospitare 80 coperti c. a.
Occupazionale del suolo pubblico permanente volta ad ospitare 15 coperti c.a.
La location, completamente ristrutturata, presenta un arredamento moderno ed accogliente.
Un meraviglioso bancone attrezzato, per il beverage e la zona cassa, si affacciano sulla sala.
Uno dei punti d’interesse è l’ampia cucina di mq 30 c. a. completamente stigliata: friggitrici a gas ed elettrica , griglia professionale a gas, forno elettrico, tavoli neutri con sportelli positivi e negativi, frigoriferi positivi e negativi, cella frigorifera, zona lavaggio completa e molto altro.
Doppi servizi per il pubblico, di cui uno utile per diversamente abili.
Magazzino, spogliatoio e servizio per i dipendenti

Licenza di somministrazione di alimenti e bevande, alcolici e superalcolici.
Canna Fumaria.
Impianto d’immissione e d’estrazione dell’aria.
Location climatizzata ed insonorizzata.
Impianti a norma certificati.
Assenza di barriere architettoniche.
Impianto di Videosorveglianaza .
Eccellente stato di manutenzione godendo di una recente ristrutturazione.

Contratto di locazione 6 + 6 ad €2.200,00 al mese fino a dicembre 2026;
€2.350,00 al mese fino a dicembre 2027 ; €2.500,00 al mese dal 2028 a regime fino a scadenza contratto nel dicembre 2035.
A garanzia del contratto di locazione è richiesto un deposito cauzionale di E 7.500,00 ed una fidejussione assicurativa semestrale.

Ambiente estremamente curato, accogliente e luminoso. Ottima opportunità dettata da un'eccellente ubicazione contornata da un residenziale estremamente folto e da un cospicuo numero di attività commerciali e di uffici.

Condizioni economiche:
-Fee d'ingresso E 60.000,00 (a titolo di garanzia delle obbligazioni assunte con il
contratto di affitto d'azienda, acconto prezzo sulla cessione e caparra confirmatoria)
-E 2.000,00 mese quale acconto prezzo sulla cessione;
-Saldo prezzo entro 18 mesi ad E 13.000,00.
(importo cessione E 109.000,00)

Attestato di prestazione energetica: G
Ape: 65
I contenuti degli annunci pubblicitari hanno valore puramente indicativo e non costituiscono elemento contrattuale.
Le immagini sono di repertorio, e la geolocalizzazione è indicativa e non reale, al fine di tutelare la riservatezza e la discrezione necessarie per l'attività di vendita delle aziende che gestiamo.
Per l'esatta consistenza dei prodotti offerti, è possibile visionare la
documentazione custodita in agenzia.

La invitiamo a seguirci sulla nostra pagina Instagram @luxfoodbrokers
Per vedere tutti i nostri locali in vendita e preziosi video di formazione sul mondo della ristorazione.

LEGGI TUTTO

CONDIVIDI SUI SOCIAL

DATI PRINCIPALI

Riferimento
644265
Contratto
Affitto
Tipologia
Immobile - Negozio
Superficie
165 mq
Locali
5
Bagni
3
Piano
Piano terra
Totale piani
6

CARATTERISTICHE

Ascensore Arredato Allarme

COSTI

Canone
Affitto € 2.200,00 al mese
Tipo locazione
4+4
Spese condominiali
€ 100,00 / mese, non incluse nel canone

EFFICIENZA ENERGETICA

Stato
Ristrutturato
Anno costruzione
1950
Riscaldamento
Autonomo
Climatizzazione
Si
Classe energetica
G
IPE
65,00 kWh/m²a

A+

A

B

C

D

E

F

65,00 kWh/m²a | Classe energetica G

G

MAPPA

ANNUNCI SIMILI

AFFITTO 20
€ 7.000 mensili
Negozio in Affitto a Roma (Roma)
  • Più di 5 locali
  • 250 mq
  • 4 bagni
AFFITTO 20
€ 3.000 mensili
Negozio in Affitto a Roma (Roma)
  • Più di 5 locali
  • 270 mq
  • 3 bagni