PIGNETO - VIA ERASMO GATTAMELATA - LOCALE IN LOCAZIONE AFFITTO

Via Erasmo Gattamelata - Roma, Zona Pigneto
€ 8.000 mensili
  • 4 locali
  • 200 mq
  • 4 bagni

Negozio in Affitto a Roma

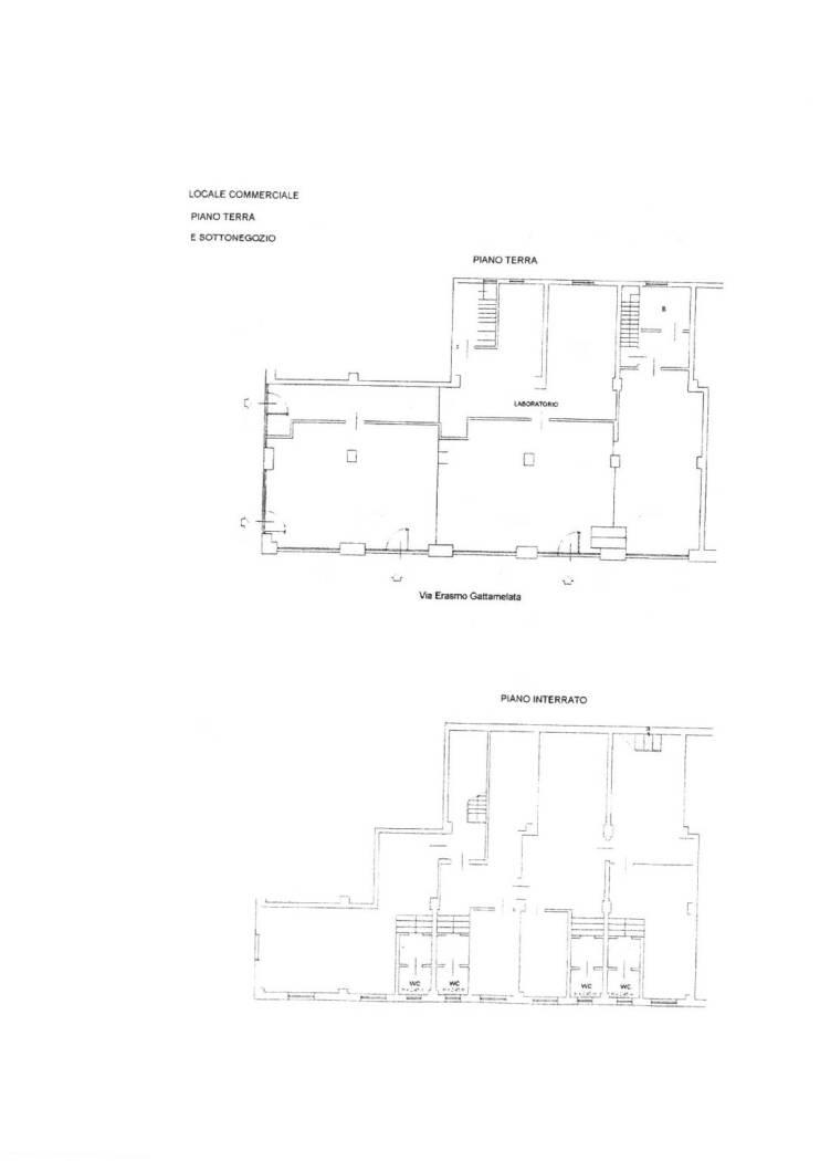
Nel quartiere del Pigneto, ad angolo Via Roberto Malatesta e più precisamente in via Erasmo Gattamelata proponiamo la locazione di un locale commerciale.
L’immobile sviluppa una superficie interna di 200 mq al piano terra, con sette grandi vetrine angolari, oltre 100 mq al piano seminterrato con magazzino e quattro servizi, i due livelli sono collegati da scale interne.
Possibilità di varie attività compreso Food avendo canna fumaria.
Il canone di locazione mensile é pari ad Euro 8.000,00.
A garanzia si richiede Fidejussione Bancaria di 6 mesi, oltre deposito cauzionale.
Libero da subito.
Per maggiori informazioni contattare i nostri uffici ai seguenti numeri : 339.3350505 06.89274537, oppure inviare una mail a galagroupre@gmail.com La Gala Group Real Estate è una società Leader che opera nel settore dell’intermediazione immobiliare da diversi anni, specializzata nel settore del commerciale, nelle Vendite e nelle Locazioni di prestigio, cura inoltre Fondi immobiliari per conto di un portfolio clienti selezionato e fidelizzatosi nel tempo, rappresentato dai più noti brand nazionali ed internazionali che operano nel settore dell’abbigliamento, della profumeria, delle calzature e della ristorazione. In un’economia globale, la visione lungimirante e le strategie di business innovative per un settore tradizionale e tradizionalista come l’immobiliare, hanno permesso alla Società di Distinguersi. Collegato al gruppo vi è un team di professionisti altamente specializzati, nello specifico la Gala Group Real Estate mette a disposizione della propria clientela molteplici figure professionali come gli architetti che oltre ad occuparsi di progettazione, esecuzione, direzione lavori, curano anche ogni aspetto tecnico ed amministrativo. Le informazioni, le immagini e le planimetrie presenti nell’ annuncio sono meramente indicative e non costituiscono elementi contrattuali.

LEGGI TUTTO

CONDIVIDI SUI SOCIAL

DATI PRINCIPALI

Riferimento
637371
Contratto
Affitto
Tipologia
Immobile - Negozio
Superficie
200 mq
Locali
4
Bagni
4
Piano
Piano terra
Totale piani
5

CARATTERISTICHE

Ascensore Allarme

COSTI

Canone
Affitto € 8.000,00 al mese
Tipo locazione
4+4

EFFICIENZA ENERGETICA

Stato
Ristrutturato
Anno costruzione
1950
Riscaldamento
Autonomo
Climatizzazione
Si
Classe energetica
G
IPE
175,00 kWh/m²a

A+

A

B

C

D

E

F

175,00 kWh/m²a | Classe energetica G

G

MAPPA

ANNUNCI SIMILI

AFFITTO 16
€ 2.500 mensili
Negozio in Affitto a Roma (Roma)
  • 4 locali
  • 200 mq
  • 2 bagni
AFFITTO 20
€ 7.000 mensili
Negozio in Affitto a Roma (Roma)
  • Più di 5 locali
  • 250 mq
  • 4 bagni
AFFITTO 20
€ 3.000 mensili
Negozio in Affitto a Roma (Roma)
  • Più di 5 locali
  • 270 mq
  • 3 bagni