Locale commerciale in Affitto AFFITTO

Via Olevano Romano - Roma (Roma)
€ 2.290 mensili
  • 4 locali
  • 210 mq
  • 3 bagni

Negozio in Affitto a Roma

**Locale in Affitto a Roma - Ottima Visibilità! **

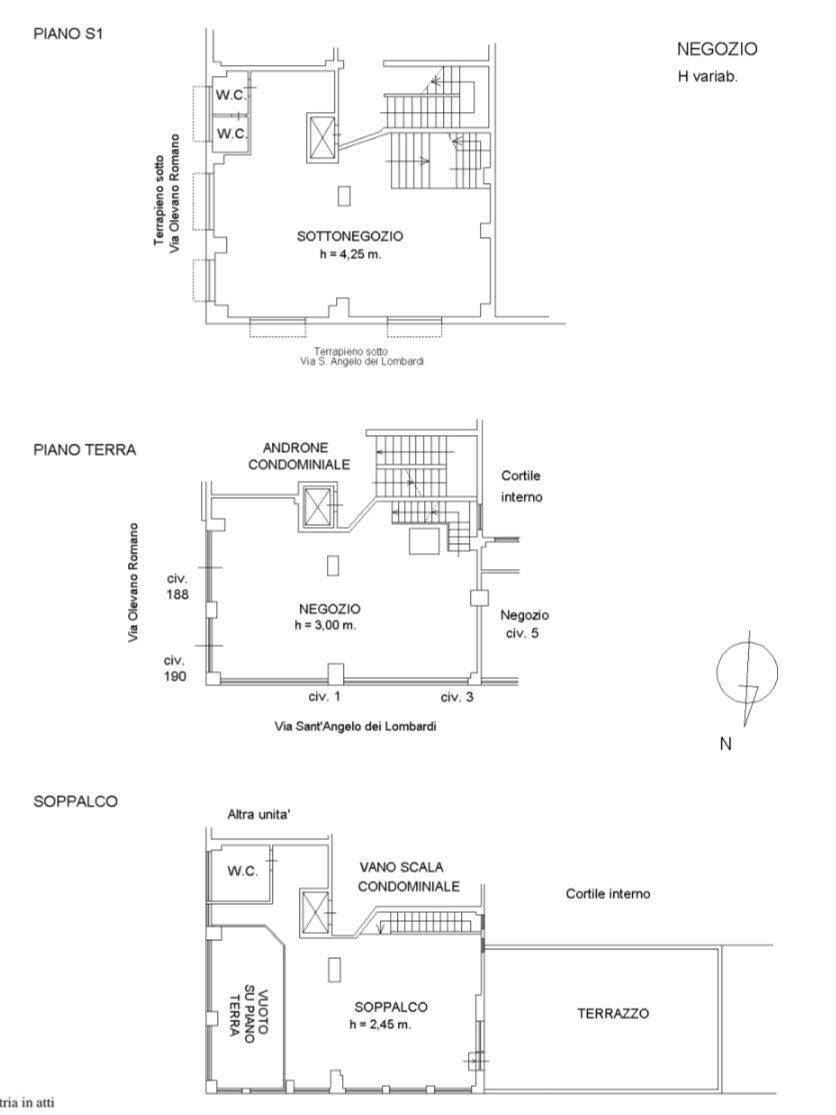
Scopri questo fantastico locale in affitto di 210 mq, situato a pochi passi da Via Prenestina, adiacente a Villa Gordiani. La posizione strategica, con la fermata della metro Teano nelle vicinanze, garantisce un'ottima visibilità e un facile accesso per clienti e fornitori.

Il locale si sviluppa su tre livelli: il piano interrato è di circa 75 mq ed e' perfetto come magazzino, il piano terra di circa 75 mq con ben 6 vetrine su strada, ideale per attrarre l'attenzione dei passanti. Al primo piano, troverai 60 mq con un terrazzo a livello di proprietà, perfetto per creare un'area relax o per eventi all'aperto.

Le condizioni interne sono buone e il locale è disponibile da subito. Inoltre, c'è la possibilità di installare una canna fumaria, rendendolo adatto anche per attività di ristorazione. Non perdere l'opportunità di avviare il tuo business in una zona in crescita! Contattaci per maggiori informazioni e per organizzare una visita.

LEGGI TUTTO

CONDIVIDI SUI SOCIAL

DATI PRINCIPALI

Riferimento
628839
Contratto
Affitto
Tipologia
Immobile - Negozio
Superficie
210 mq
Locali
4
Bagni
3
Piano
1 °
Totale piani
3

CARATTERISTICHE

Ascensore

COSTI

Canone
Affitto € 2.290,00 al mese
Tipo locazione
4+4

EFFICIENZA ENERGETICA

Stato
Abitabile
Anno costruzione
1960
Classe energetica
F
IPE
351,00 kWh/m²a

A+

A

B

C

D

E

351,00 kWh/m²a | Classe energetica F

F

G

MAPPA

ANNUNCI SIMILI

AFFITTO 16
€ 2.500 mensili
Negozio in Affitto a Roma (Roma)
  • 4 locali
  • 200 mq
  • 2 bagni
AFFITTO 20
€ 3.000 mensili
Negozio in Affitto a Roma (Roma)
  • Più di 5 locali
  • 270 mq
  • 3 bagni
AFFITTO 20
€ 7.000 mensili
Negozio in Affitto a Roma (Roma)
  • Più di 5 locali
  • 250 mq
  • 4 bagni