LOCALE COMMERCIALE VIA DOMENICO COMPARETTI AFFITTO

Via Domenico Comparetti - Roma (Roma)
€ 3.000 mensili
  • Più di 5 locali
  • 339 mq
  • 2 bagni

Negozio in Affitto a Roma

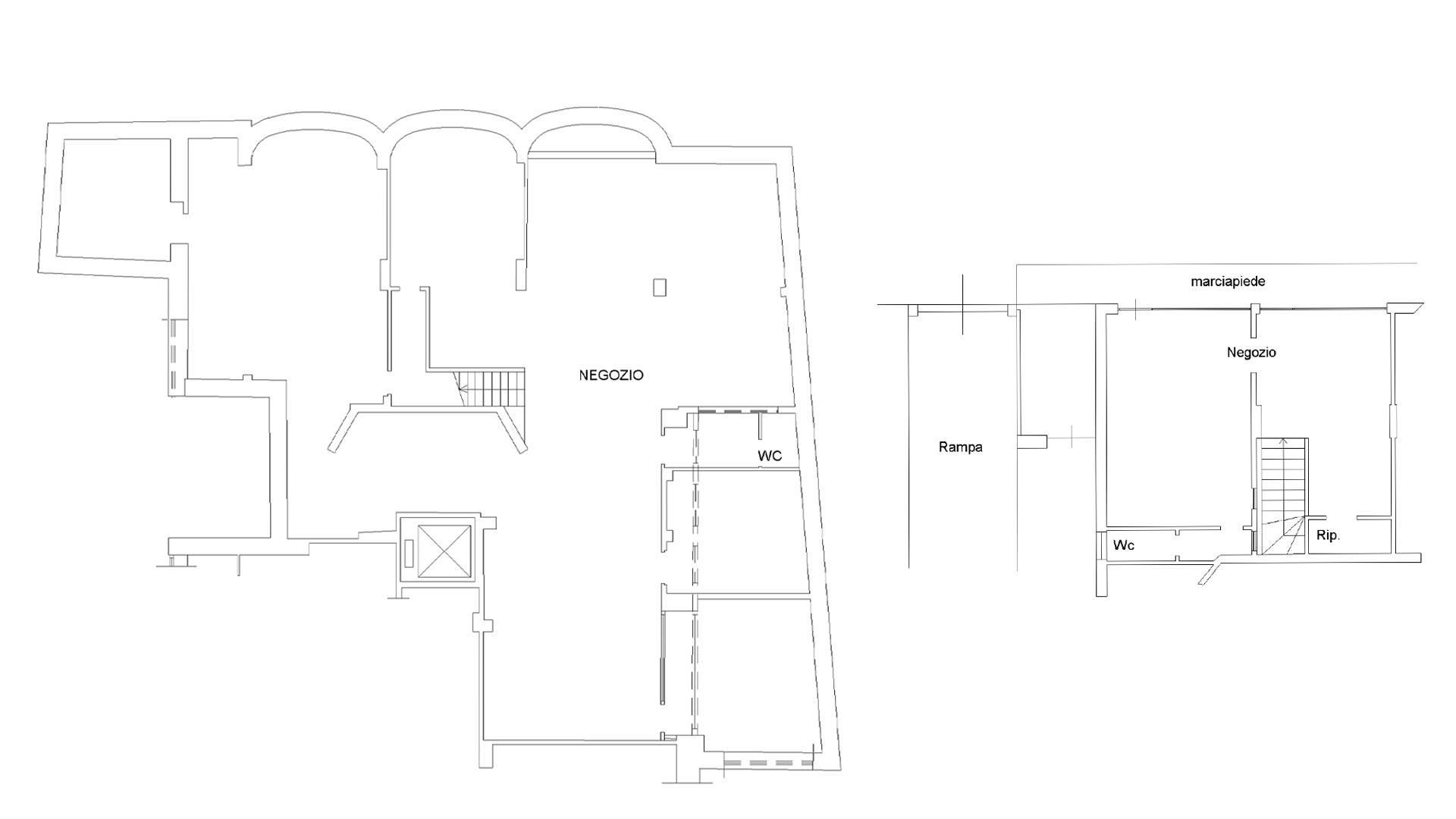
Nelle immediate adiacenze di Via Ugo Ojetti e Via Nomentana, in uno stabile di piani 4, proponiamo la locazione di un interessante locale commerciale bilivello di categoria catastale C1, costituito da due negozi su strada, con due vetrine, un bagno, una serranda manuale ed una elettrica e da un locale commerciale posto al piano S1, composto da diversi vani; i locali sono comunicanti tra loro tramite una comoda scala interna.
Lo stato degli stessi, come da foto, si presenta in condizioni ottimali, i locali sono forniti, inoltre, di impianto di allarme, di videosorveglianza e di un climatizzatore.
In particolare, il locale posto al piano interrato è dotato di elegante controsoffitto, impianto di immissione aria, caldaia e termosifone. L’immobile, sia per la metratura, di circa 339 m² catastali, che per l’ubicazione, risulta adatto a molteplici tipologie di attività commerciali e per uso investimento.
Classe energetica: G (101.48 kWh/m² anno). Le presenti informazioni non costituiscono elemento contrattuale.

La nostra Mission: fornire una gamma completa di servizi Real Estate accompagnando famiglie e imprese durante l’intero percorso di acquisto, vendita o locazione Immobiliare e garantendo professionalità e trasparenza al fine di creare valore aggiunto e ottenere un’esperienza positiva di successo.

LEGGI TUTTO

CONDIVIDI SUI SOCIAL

DATI PRINCIPALI

Riferimento
630738
Contratto
Affitto
Tipologia
Immobile - Negozio
Superficie
339 mq
Locali
5
Bagni
2
Piano
Piano terra
Totale piani
4

CARATTERISTICHE

Ascensore

COSTI

Canone
Affitto € 3.000,00 al mese
Tipo locazione
4+4
Spese condominiali
€ 70,00 / mese, non incluse nel canone

EFFICIENZA ENERGETICA

Stato
Abitabile
Anno costruzione
1958
Riscaldamento
Autonomo
Climatizzazione
Si
Classe energetica
G
IPE
175,00 kWh/m²a

A+

A

B

C

D

E

F

175,00 kWh/m²a | Classe energetica G

G

MAPPA

ANNUNCI SIMILI

AFFITTO 20
€ 2.500 mensili
Negozio in Affitto a Roma (Roma)
  • Più di 5 locali
  • 131 mq
  • 3 bagni
AFFITTO 20
€ 6.300 mensili
Negozio in Affitto a Roma (Roma)
  • Più di 5 locali
  • 455 mq
  • 3 bagni
AFFITTO 19
€ 6.300 mensili
Negozio in Affitto a Roma (Roma)
  • Più di 5 locali
  • 460 mq
  • 3 bagni
AFFITTO 4
€ 12.000 mensili
Negozio in Affitto a Roma, Zona Bologna
  • Più di 5 locali
  • 607 mq
  • 4 bagni
AFFITTO 11
€ 9.500 mensili
Negozio in Affitto a Roma (Roma)
  • Più di 5 locali
  • 800 mq
  • 4 bagni
AFFITTO
€ 8.000 mensili
Negozio in Affitto a Roma (Roma)
  • Più di 5 locali
  • 160 mq
  • 2 bagni