Locale commerciale in Vendita VENDITA

Via Luigi Vittorio Bertarelli - Roma (Roma)
€ 270.000
  • Più di 5 locali
  • 990 mq
  • 4 bagni

Negozio in Vendita a Roma

CARATTERISTICHE PRINCIPALI
Piano Terra: Ingresso con vetrata angolare
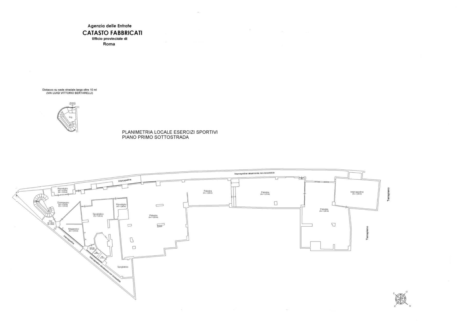
Livello S1 (C/4 – 730 mq): attualmente adibito a palestra, con tre ampie sale fitness, due uffici e spogliatoi.
Livello S2 (C/4 – 260 mq): suddiviso in tre ambienti, con una sala dotata di piscina (12m x 3,3m), spogliatoi separati uomo/donna, una seconda sala polivalente e un locale tecnico per gli impianti della struttura.

PUNTI DI FORZA DEL LOCALE
Posizione strategica: a pochi passi dalla Stazione Tiburtina, Metro B, fermate bus e collegamenti con le principali arterie stradali cittadine e nazionali (GRA, A24).
Zona commerciale: nelle immediate vicinanze troviamo supermercati, bar, ristoranti, banche, uffici, centri medici e attività commerciali, rendendo l'area dinamica e attrattiva per il business.
Spazi ampi e versatili: la struttura si adatta a palestra, centro benessere, spa, showroom, studio medico, poliambulatorio, centro estetico, scuola di danza o arti marziali.
Possibilità di permuta: valutiamo proposte di scambio immobiliare per facilitare l’acquisto.

A CHI È ADATTO QUESTO IMMOBILE?
Investitori in cerca di un locale a reddito o da valorizzare, in una zona ad alta densità abitativa e commerciale.
Ideale per Box Storage o simili.
Franchising e grandi brand alla ricerca di una sede in una posizione strategica.
Imprenditori del settore fitness e benessere, con una struttura già predisposta per palestra,SPA o centro estetico.
Professionisti della salute, interessati ad allestire un poliambulatorio, centro fisioterapico o clinica privata.
Contattaci subito per maggiori informazioni o per fissare una visita!
Le presenti informazioni non costituiscono elemento contrattuale.

LEGGI TUTTO

CONDIVIDI SUI SOCIAL

DATI PRINCIPALI

Riferimento
630066
Contratto
Vendita
Tipologia
Immobile - Negozio
Superficie
990 mq
Locali
Più di 5
Bagni
4
Piano
Interrato
Totale piani
7

CARATTERISTICHE

Ascensore

COSTI

Prezzo
€ 270.000,00
Spese condominiali
€ 94,00 / mese

EFFICIENZA ENERGETICA

Stato
Da ristrutturare
Anno costruzione
1967
Riscaldamento
Autonomo
Climatizzazione
Si
Classe energetica
G
IPE
175,00 kWh/m²a

A+

A

B

C

D

E

F

175,00 kWh/m²a | Classe energetica G

G

MAPPA

ANNUNCI SIMILI

VENDITA 11
€ 239.904
Negozio in Vendita a Roma (Roma)
  • Più di 5 locali
  • 156 mq
  • 2 bagni
VENDITA 12
€ 656.064
Negozio in Vendita a Roma (Roma)
  • Più di 5 locali
  • 419 mq
  • 2 bagni
VENDITA 20
€ 399.000
Negozio in Vendita a Roma, Zona Pietralata
  • Più di 5 locali
  • 200 mq
  • 4 bagni
VENDITA 6
€ 490.000
Negozio in Vendita a Roma, Zona Bologna
  • Più di 5 locali
  • 200 mq
  • 1 bagno
VENDITA 20
€ 250.000
Negozio in Vendita a Roma (Roma)
  • Più di 5 locali
  • 200 mq
  • 2 bagni
VENDITA 7
€ 295.000
Negozio in Vendita a Roma, Zona Pigneto
  • Più di 5 locali
  • 287 mq
  • 4 bagni