Locale Commerciale in Affitto – 135 mq - Via Petrarca AFFITTO

Via francesco petrarca - Pomezia (Roma)
€ 1.200 mensili
  • 1 locale
  • 135 mq
  • 1 bagno

Negozio in Affitto a Pomezia

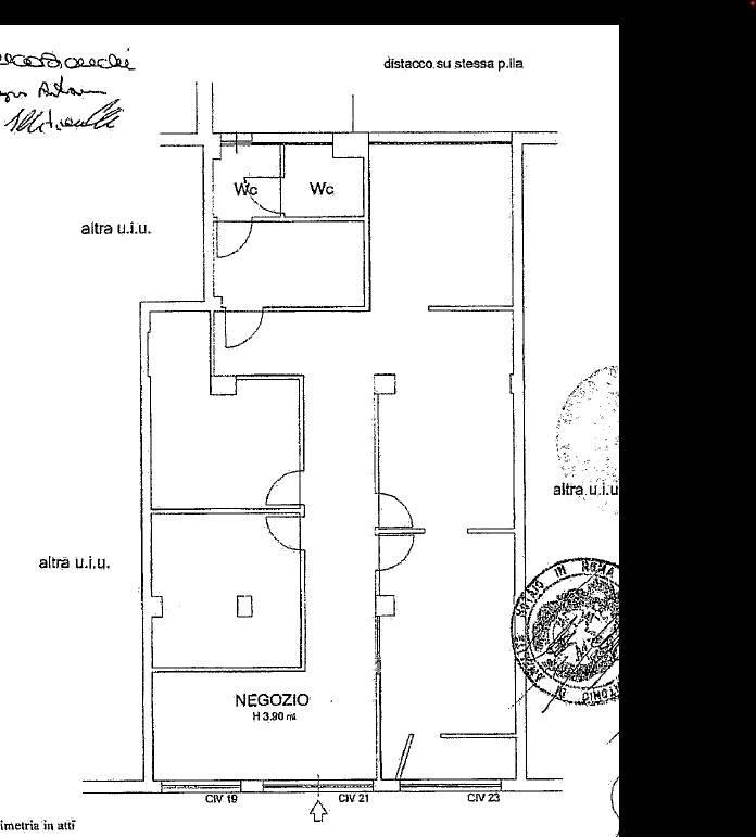
Proponiamo in locazione In Via Petrarca 23 un locale commerciale categoria catastale C/1 di circa 135 mq, ideale per attività che necessitano di visibilità, funzionalità e spazi già organizzati.
Il negozio si sviluppa su un’unica superficie ed è già suddiviso internamente in 4 stanze operative, oltre a un laboratorio sul retro, soluzione perfetta per attività commerciali abbinate a lavorazione, servizi o gestione interna.
La presenza di tre vetrine fronte strada assicura massima esposizione commerciale, ottima luminosità naturale e un forte impatto visivo sulla clientela di passaggio.
Il locale è dotato di impianto elettrico certificato, impianto di condizionamento e servizio igienico a norma per disabili, completo di antibagno utilizzabile come spogliatoio, requisito fondamentale per attività aperte al pubblico e per il personale.

Caratteristiche principali

Superficie: 135 mq
3 vetrine su strada
Categoria catastale: C/1
Indirizzo: Via Petrarca 23 – Pomezia
Layout interno personalizzabile
4 stanze interne già realizzate + Laboratorio sul retro
Bagno a norma disabili con antibagno/spogliatoio
Impianto elettrico certificato
Condizionamento
Buona luminosità e distribuzione razionale degli spazi

Punti di forza

Elevata visibilità grazie alle tre vetrine fronte strada
Pronto all’uso, con spazi già suddivisi
Conformità alle normative per attività aperte al pubblico
Versatile, adatto a negozi, studi professionali, centri servizi, showroom, laboratori con vendita

Ottima soluzione in locazione per avviare o trasferire un’attività senza investimenti strutturali elevati

TECNOCASA IMPRESA POMEZIA

Ci occupiamo di: IMMOBILI INDUSTRIALI, COMMERCIALI e ARTIGIANALI.
C'è chi si occupa di tutto.
E poi c'è chi, da oltre 30 anni, si occupa solo d'impresa.

Non affidarti al caso, AFFIDATI AI NOSTRI PROFESSIONISTI.

Affiliato: SERVIZI DI IMPRESA SRL
Via del Mare, 33 - POMEZIA (RM)

LEGGI TUTTO

CONDIVIDI SUI SOCIAL

DATI PRINCIPALI

Riferimento
642943
Contratto
Affitto
Tipologia
Immobile - Negozio
Superficie
135 mq
Locali
1
Bagni
1
Piano
Piano terra
Totale piani
5

CARATTERISTICHE

Ascensore Allarme

COSTI

Canone
Affitto € 1.200,00 al mese
Tipo locazione
4+4
Spese condominiali
€ 50,00 / mese, non incluse nel canone

EFFICIENZA ENERGETICA

Stato
Abitabile
Anno costruzione
1970
Riscaldamento
Autonomo
Climatizzazione
Si
Classe energetica
F
IPE
231,00 kWh/m²a

A+

A

B

C

D

E

231,00 kWh/m²a | Classe energetica F

F

G

MAPPA

ANNUNCI SIMILI