LOCALE COMMERCIALE A POCHI PASSI DA VIA ROMA CON VISIBILITA' AFFITTO

Viale Alessandro Manzoni 1 - Pomezia (Roma)
€ 1.300 mensili
  • 1 locale
  • 171 mq
  • 2 bagni

Negozio in Affitto a Pomezia

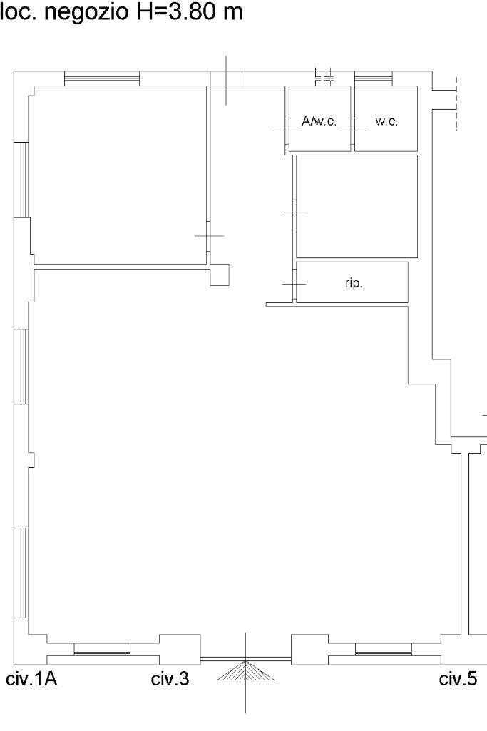
Proponiamo in locazione un locale commerciale di circa 170 mq, situato al piano terra nel cuore di Pomezia. La soluzione è ideale per attività che puntano su visibilità, accesso immediato e spazi personalizzabili.

L’immobile si sviluppa su un unico livello e comprende:

Ampio ingresso perfetto per accoglienza o area espositiva
Sala d’attesa
Ripostiglio
Cucina e zona break
Servizi igienici

Sono presenti tre vetrine fronte strada, ciascuna con serranda, che garantiscono ottima luminosità naturale e massima visibilità. L’altezza interna di 3,80 m offre ampi volumi e versatilità per diverse tipologie di attività commerciali.
L’immobile necessita di opere di completamento, da concordare in base alle esigenze del conduttore, offrendo la possibilità di personalizzare gli spazi.

Caratteristiche principali

Superficie: 170 mq
Tipologia: Locale commerciale
Piano: Terra
Vetrine: 3 fronte strada con serrande
Altezza interna: 3,80 m
Ambienti: ingresso, sala d’attesa, ripostiglio, cucina, zona break, servizi
Stato: da completare (personalizzabile)
Accesso: diretto dalla strada
Zona: centrale, ben servita

Punti di forza

Posizione strategica: nel centro di Pomezia, area ad alto passaggio
Ottima visibilità: tre vetrine su strada
Spazi personalizzabili: possibilità di adattare il locale alle esigenze dell’attività
Ampia altezza interna: ideale per layout flessibili
Accessibilità: facilmente raggiungibile a piedi e in auto

IMMOBILI INDUSTRIALI - COMMERCIALI - ARTIGIANALI

Non affidarti al caso, AFFIDATI AI NOSTRI PROFESSIONISTI
La nostra specializzazione e la nostra pluriennale esperienza sono a tua disposizione.

Affiliato: SERVIZI DI IMPRESA SRL
Via del Mare, 33 - POMEZIA (RM)

LEGGI TUTTO

CONDIVIDI SUI SOCIAL

DATI PRINCIPALI

Riferimento
642921
Contratto
Affitto
Tipologia
Immobile - Negozio
Superficie
171 mq
Locali
1
Bagni
2
Piano
Piano terra
Totale piani
5

CARATTERISTICHE

Ascensore

COSTI

Canone
Affitto € 1.300,00 al mese
Tipo locazione
4+4
Spese condominiali
€ 50,00 / mese, non incluse nel canone

EFFICIENZA ENERGETICA

Stato
Abitabile
Anno costruzione
1980
Climatizzazione
Si
Classe energetica
G
IPE
105,00 kWh/m²a

A+

A

B

C

D

E

F

105,00 kWh/m²a | Classe energetica G

G

MAPPA

ANNUNCI SIMILI