Via Cavour 7 Galleria Commerciale AFFITTO

Via Camillo Benso di Cavour - Pomezia (Roma)
€ 3.900 mensili
  • 1 locale
  • 317 mq
  • 2 bagni

Negozio in Affitto a Pomezia

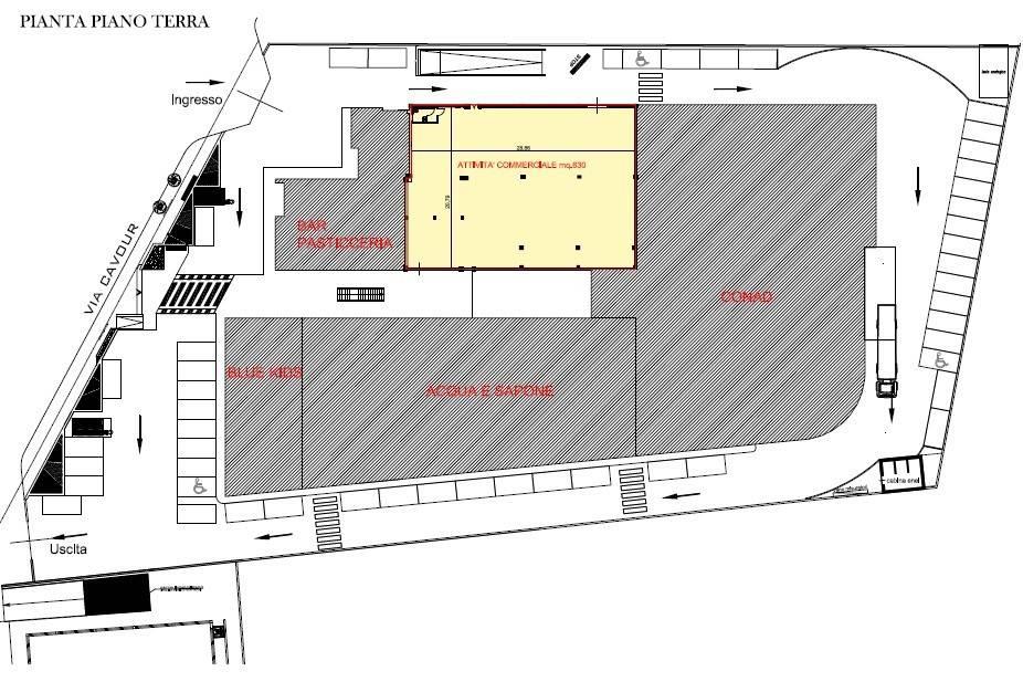
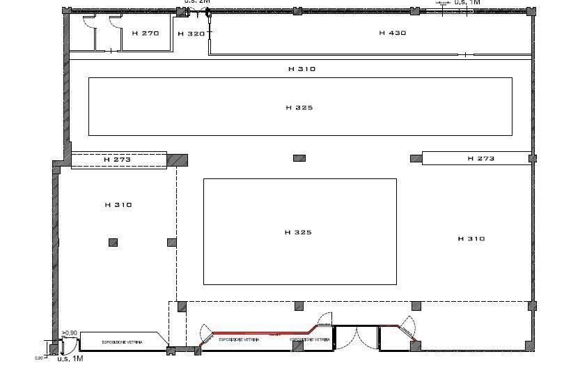
Negozio libero in fase di ristrutturazione con consegna a marzo con pavimenti bagni ed vetrine nuove a POMEZIA NELLA CENTRALISSIMA VIA CAVOUR A POCHI PASSI DA VIA ROMA Nel moderno e centrale Centro Cavour Pomezia affittiamo un locale di 317 mq al piano terra vicino al SUPERMERCATO Conad ed AL SUPERMERCATO Acqua & Sapone e ad altre importanti attività TIPO BLUE KIDS ABBIGLIAMENTO PER BAMBINI ED AD UN IMPORTANTE RISTORANTE CON CUCINA GIAPPONESE CON LA COMODITA' DI UN ampio parcheggio sotterraneo ed a livello. Preferibilmente si affitta ad attività di abbigliamento o PET Food.
Info 392.3139401

LEGGI TUTTO

CONDIVIDI SUI SOCIAL

DATI PRINCIPALI

Riferimento
633842
Contratto
Affitto
Tipologia
Immobile - Negozio
Superficie
317 mq
Locali
1
Bagni
2
Piano
Piano terra
Totale piani
2

CARATTERISTICHE

Ascensore

COSTI

Canone
Affitto € 3.900,00 al mese
Tipo locazione
4+4
Spese condominiali
€ 500,00 / mese, non incluse nel canone

EFFICIENZA ENERGETICA

Stato
Ristrutturato
Anno costruzione
2018
Climatizzazione
Predisposizione
Classe energetica
F
IPE
175,00 kWh/m²a

A+

A

B

C

D

E

175,00 kWh/m²a | Classe energetica F

F

G

MAPPA

ANNUNCI SIMILI