C1 Collatina 960mq AFFITTO

Via Taddeo Zuccari - Roma (Roma)
€ 12.500 mensili
  • 1 locale
  • 960 mq
  • 4 bagni

Negozio in Affitto a Roma

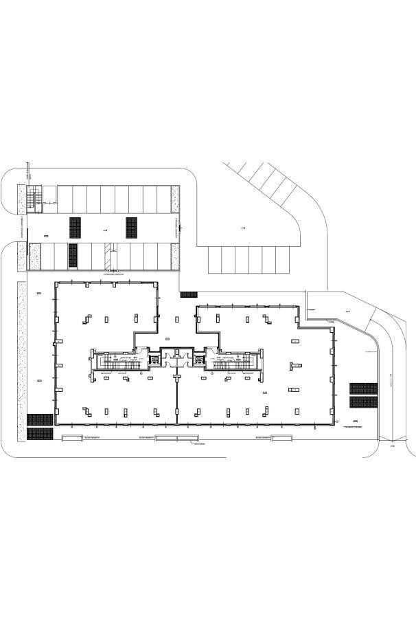
Collatina C1 960 mq con parcheggio COLLATINA, v. Rosalba Carriera/ v. Taddeo Zuccari, a soli 5 minuti di macchina dal G.R.A. e dall’autostrada A24, proponiamo in affitto, in palazzina appena costruita, locale commerciale C1 ottimamente posizionato, di 960 mq, livello strada, plurivetrine a 360°, con spazio esterno. L’immobile può essere adibito a diverse attività quali supermercato/ banca/ ristorante/ pizzeria/ negozio/ farmacia/ ufficio/ galleria/ palestra, possibile utilizzo di più canne fumarie, 2/4 servizi, H 3,6 m, stato grezzo. Completano la proprietà posti auto esterni (17) e coperti al primo piano interrato (21). Libero da subito, richiesta 12.500,00 Euro mensili, condominio 420,00 Euro mensili, contratto 6+6, Cl. Energ. “A”. Disponibili anche altri tagli più piccoli. Possibilità di affitto e di vendita.
Verrà richiesta la fideiussione bancaria.
Le presenti informazioni e planimetrie sono meramente indicative e non costituiscono elementi contrattuali. Le presenti informazioni e planimetrie sono meramente indicative e non costituiscono elementi contrattuali. Per ulteriori informazioni o per fissare un sopralluogo contattare Servizi Immobiliari J.L. di Jolanta Lysik al numero 339 42 70 734, anche su Whatsapp, o via email serviziimmobiliari2003@gmail.com.
Siamo affiliati a F.I.M.A.A. ROMA, la più autorevole associazione del settore immobiliare a Roma e Provincia. Rappresentiamo una rete consolidata di professionisti del mercato immobiliare, garantendo formazione di eccellenza e un supporto specializzato sia per gli operatori del settore che per la nostra clientela.

LEGGI TUTTO

CONDIVIDI SUI SOCIAL

DATI PRINCIPALI

Riferimento
630540
Contratto
Affitto
Tipologia
Immobile - Negozio
Superficie
960 mq
Locali
1
Bagni
4
Piano
Piano terra
Totale piani
1
Box/Posto auto
Doppio

CARATTERISTICHE

Ascensore

COSTI

Canone
Affitto € 12.500,00 al mese
Tipo locazione
4+4
Spese condominiali
€ 420,00 / mese, non incluse nel canone

EFFICIENZA ENERGETICA

Stato
Nuovo/In costruzione
Anno costruzione
2025
Riscaldamento
Autonomo
Climatizzazione
Si
Classe energetica
A
IPE
175,00 kWh/m²a

A+

175,00 kWh/m²a | Classe energetica A

A

B

C

D

E

F

G

MAPPA