Villa Unifamiliare con ampio giardino perimetrale VENDITA

Via Casal dei Venti 15 - Ladispoli (Roma)
€ 389.000
  • Più di 5 locali
  • 230 mq
  • 3 bagni

Casa indipendente in Vendita a Ladispoli

Rif: RR004 - Tempocasa Marina di San Nicola propone in vendita una villa unifamiliare immersa nel verde, situata in località Monteroni, un’area tranquilla e residenziale che offre il perfetto equilibrio tra riservatezza e comodità. La posizione garantisce facile accesso ai principali servizi, grazie alla presenza di strade asfaltate e ben collegate al centro urbano.

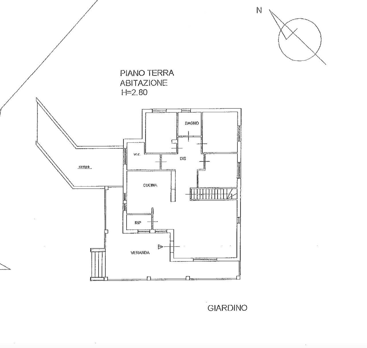
La proprietà si sviluppa su due livelli per una superficie complessiva di circa 200 mq, circondata da un ampio giardino privato di circa 1.100 mq che avvolge l’intera abitazione, offrendo ampi spazi esterni fruibili in ogni stagione. L’accesso avviene attraverso un portico rialzato che introduce all’interno della villa tramite una porta blindata.

Il piano principale ospita un ampio e luminoso soggiorno, reso particolarmente accogliente dalla presenza di una grande vetrata e di un camino angolare. Adiacente al soggiorno si trova una comoda cucina abitabile, ideale per chi ama vivere gli spazi domestici in modo funzionale. Un pratico ripostiglio completa la zona giorno.

Un disimpegno conduce alla zona notte, composta da tre camere da letto ben dimensionate e due bagni finestrati, uno dei quali riservato alla camera padronale. Tutti gli ambienti sono rifiniti con pavimentazione in cotto, scelta che contribuisce a mantenere un'atmosfera calda e naturale.

Attraverso una scala interna si accede al piano seminterrato dove si apre una spaziosa sala hobby di circa 70 mq, rifinita con pavimento in laminato, ideale come zona relax, spazio ricreativo o area multifunzionale. Completa la proprietà un ampio garage di circa 60 mq, perfetto per due auto e ulteriori spazi di deposito.

La villa è dotata di infissi in legno con doppio vetro e inferriate blindate su tutte le finestre, garantendo sicurezza e isolamento termico. È presente un cappotto esterno recentemente realizzato che contribuisce a migliorare l’efficienza energetica dell’abitazione. Oltre al camino nel soggiorno, la casa è dotata di due stufe a pellet da 25 kW, che offrono un sistema di riscaldamento efficace e versatile.

Questa soluzione abitativa rappresenta una rara opportunità per chi desidera vivere in un contesto indipendente, silenzioso e immerso nella natura, senza rinunciare alla vicinanza ai servizi cittadini. La villa si presenta in ottime condizioni generali, pronta per essere abitata sin da subito, ed è ideale per famiglie che cercano spazio, comfort e qualità costruttiva.

Per ulteriori informazioni o per concordare una visita in loco, l’agenzia Tempocasa Marina di San Nicola è a completa disposizione.

LEGGI TUTTO

CONDIVIDI SUI SOCIAL

DATI PRINCIPALI

Riferimento
639005
Contratto
Vendita
Tipologia
Casa indipendente
Superficie
230 mq
Locali
5
Camere da letto
3
Cucina
A vista
Bagni
3
Piano
Piano rialzato
Totale piani
2
Box/Posto auto
Singolo

CARATTERISTICHE

Ascensore

COSTI

Prezzo
€ 389.000,00

EFFICIENZA ENERGETICA

Stato
Abitabile
Anno costruzione
1990
Riscaldamento
Autonomo
Climatizzazione
Si
Classe energetica
D
IPE
1,00 kWh/m²a

A+

A

B

C

1,00 kWh/m²a | Classe energetica D

D

E

F

G

MAPPA

ANNUNCI SIMILI

VENDITA 20
€ 375.000
Casa indipendente in Vendita a Roma (Roma)
  • Più di 5 locali
  • 260 mq
  • 2 bagni
VENDITA 20
€ 375.000
Casa indipendente in Vendita a Roma (Roma)
  • Più di 5 locali
  • 260 mq
  • 2 bagni
VENDITA 11
€ 520.000
Casa indipendente in Vendita a Roma, Frazione Cesano
  • Più di 5 locali
  • 390 mq
  • 4 bagni
VENDITA 20
€ 250.000
Casa indipendente in Vendita a Roma (Roma)
  • Più di 5 locali
  • 281 mq
  • 2 bagni
VENDITA 20
€ 425.000
Casa indipendente in Vendita a Roma (Roma)
  • Più di 5 locali
  • 179 mq
  • 2 bagni
VENDITA 20
€ 390.000
Casa indipendente in Vendita a Roma, Frazione Ostia Antica
  • Più di 5 locali
  • 250 mq
  • 4 bagni
VENDITA 20
€ 385.000
Casa indipendente in Vendita a Roma, Frazione Dragona
  • Più di 5 locali
  • 300 mq
  • 3 bagni