Esclusivo Cielo-Terra con Dependance e Locale Commerciale VENDITA

Via dei Pietramellara 21 - Roma (Roma)
€ 890.000
  • Più di 5 locali
  • 186 mq
  • 2 bagni

Casa indipendente in Vendita a Roma

Esclusivo Cielo-Terra con Dependance e Locale Commerciale – Casetta Mattei / Valle dei Casali

Situato in via Vicolo del Conte, esattamente in via dei Pietramellara, nel cuore della Valle dei Casali, proponiamo in vendita un intero palazzetto cielo-terra. La proprietà si inserisce in un ecosistema naturale protetto, offrendo un connubio perfetto tra indipendenza e tranquillità. La presenza di una dependance e di un locale C/1 completano questa proposta immobiliare dalle elevate potenzialità di personalizzazione.

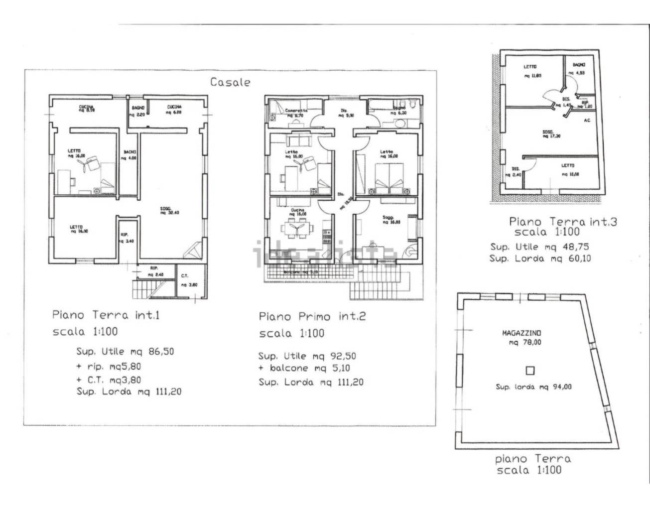
La proprietà ante '67 si sviluppa su una superficie complessiva generosa e comprende:
Corpo Centrale (242 mq): Disposto su due livelli (Piano Terra e Primo Piano), caratterizzato da ambienti spaziosi e luminosi, pronti per essere personalizzati secondo le proprie esigenze. Il piano terra in origine C2, attualmente accatastata in A4, sono in corso le verifiche per la titolarità urbanistica del cambio di destinazione d'uso.
Dependance (63 mq): Un'unità indipendente perfetta come studio professionale, suite per gli ospiti o soluzione per un secondo nucleo familiare.
Locale C/1 (81 mq): Ampio locale commerciale al piano terra, un valore aggiunto per chi desidera avviare un’attività sotto casa o generare una rendita locativa garantita.

Gli ambienti sono funzionanti e mantenuti con cura; tuttavia, mentre la dépendance si presenta in ottimo stato, il palazzetto principale richiede un intervento di ristrutturazione e ammodernamento generale per esprimerne appieno il valore.

Attualmente locato ma con rilascio già programmato, il compendio verrà compravenduto libero da persone e cose, pronto per l'inizio dei lavori di personalizzazione.

Consigliata la visita in loco per apprezzare l’esclusività del contesto e lo sviluppo degli spazi interni ed esterni.

Per informazioni piu' dettagliate potete contattare direttamente il numero 338214444

LEGGI TUTTO

CONDIVIDI SUI SOCIAL

DATI PRINCIPALI

Riferimento
637699
Contratto
Vendita
Tipologia
Casa indipendente
Superficie
186 mq
Locali
Più di 5
Camere da letto
5
Cucina
Abitabile
Bagni
2
Piano
1 °
Totale piani
1
Box/Posto auto
Doppio

CARATTERISTICHE

Ascensore

COSTI

Prezzo
€ 890.000,00

EFFICIENZA ENERGETICA

Stato
Da ristrutturare
Anno costruzione
1920
Riscaldamento
Autonomo
Classe energetica
G
IPE
175,00 kWh/m²a

A+

A

B

C

D

E

F

175,00 kWh/m²a | Classe energetica G

G

MAPPA

ANNUNCI SIMILI

VENDITA 20
€ 1.495.000
Casa indipendente in Vendita a Roma (Roma)
  • Più di 5 locali
  • 450 mq
  • 4 bagni
VENDITA 20
€ 4.500.000
Casa indipendente in Vendita a Roma, Zona Trastevere
  • Più di 5 locali
  • 444 mq
  • 4 bagni
VENDITA 20
€ 1.950.000
Casa indipendente in Vendita a Roma (Roma)
  • Più di 5 locali
  • 730 mq
  • 4 bagni
VENDITA 20
€ 375.000
Casa indipendente in Vendita a Roma (Roma)
  • Più di 5 locali
  • 260 mq
  • 2 bagni
VENDITA 20
€ 375.000
Casa indipendente in Vendita a Roma (Roma)
  • Più di 5 locali
  • 260 mq
  • 2 bagni
VENDITA 20
€ 2.650.000
Casa indipendente in Vendita a Roma (Roma)
  • Più di 5 locali
  • 750 mq
  • 3 bagni