PALAZZETTO STORICO TRASTEVERE PIAZZA TRILUSSA CON GARAGE VENDITA

Via di Santa Dorotea - Roma, Zona Trastevere
Trattativa Riservata
  • Più di 5 locali
  • 450 mq
  • 2 bagni

Casa indipendente in Vendita a Roma

PALAZZETTO STORICO TRASTEVERE PIAZZA TRILUSSA CON GARAGE

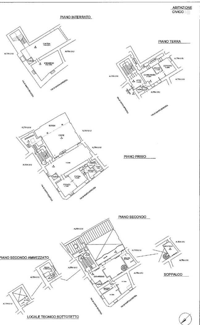
Abitat Group ha il piacere di proporre, in uno dei quartieri più caratteristici della capitale, in Trastevere, a pochi passi da Piazza Trilussa e dall’Orto Botanico, la vendita di un Palazzetto cielo-terra di circa 450 mq commerciali con ascensore e scale interne, su 3 livelli, oltre un livello interrato con garage doppio ed un piccolo appartamento ospiti.

L’accesso con ingresso indipendente su strada con scala in peperino e ascensore collega tutti i 3 piani.

Al primo piano, disposto intorno ad una suggestiva corte interna, troviamo un bellissimo salone con camino con soffitti a travi comunicante con una sala da pranzo da cui si accede direttamente ad una moderna cucina con isola centrale, resa indipendente da grandi vetrate scorrevoli, completata da una lavanderia.

Al 2° piano si colloca la suite padronale, ampia e luminosa, con bagno privato e 2 camere da letto con bagno in comune, oltre ad uno spazio da adibire volendo, a piccolo studio o angolo TV con finestra sul patio centrale.

L’unicità di questo palazzetto è rappresentata da una corte di proprietà al primo piano e cioè nella zona di rappresentanza che di fatto risulta essere un magnifico ed elegante salotto all’aperto, unico nel suo genere.

La proprietà è stata interamente ristrutturata, tutti gli impianti sono nuovi, così come gli infissi, pavimenti in parquet e peperino e i bagni in mosaico.

Al piano terra troviamo un piacevole appartamento ospiti con due stanze, bagno e angolo cottura, indipendente ma anche collegato all’unità principale.

Al piano interrato troviamo un ulteriore ambiente che ben si presta per la realizzazione di una SPA.

Completa la proprietà un garage per due posti auto.

Questa proposta immobiliare è particolarmente indicata ad una clientela sofisticata ed anche alla ricerca di una struttura ricettiva extra lusso.

TRATTATIVE RISERVATE

Per informazioni contattare il numero 06 8081332

La presente descrizione, le immagini e le planimetrie hanno carattere puramente descrittivo e non costituiscono in alcun modo elemento contrattuale.

LEGGI TUTTO

CONDIVIDI SUI SOCIAL

DATI PRINCIPALI

Riferimento
634598
Contratto
Vendita
Tipologia
Casa indipendente
Superficie
450 mq
Locali
Più di 5
Camere da letto
5
Cucina
Abitabile
Bagni
2
Piano
Piano terra
Totale piani
3
Box/Posto auto
Doppio

CARATTERISTICHE

Ascensore

COSTI

Prezzo
Trattativa Riservata

EFFICIENZA ENERGETICA

Stato
Ristrutturato
Anno costruzione
1600
Riscaldamento
Autonomo
Climatizzazione
Si
Classe energetica
A
IPE
175,00 kWh/m²a

A+

175,00 kWh/m²a | Classe energetica A

A

B

C

D

E

F

G

MAPPA

ANNUNCI SIMILI

VENDITA 20
€ 4.500.000
Casa indipendente in Vendita a Roma, Zona Trastevere
  • Più di 5 locali
  • 444 mq
  • 4 bagni
VENDITA 20
€ 1.495.000
Casa indipendente in Vendita a Roma (Roma)
  • Più di 5 locali
  • 450 mq
  • 4 bagni
VENDITA 20
€ 2.650.000
Casa indipendente in Vendita a Roma (Roma)
  • Più di 5 locali
  • 750 mq
  • 3 bagni
VENDITA 20
€ 1.950.000
Casa indipendente in Vendita a Roma (Roma)
  • Più di 5 locali
  • 730 mq
  • 4 bagni
VENDITA 20
€ 250.000
Casa indipendente in Vendita a Roma (Roma)
  • Più di 5 locali
  • 281 mq
  • 2 bagni
VENDITA 20
€ 375.000
Casa indipendente in Vendita a Roma (Roma)
  • Più di 5 locali
  • 260 mq
  • 2 bagni
VENDITA 20
€ 375.000
Casa indipendente in Vendita a Roma (Roma)
  • Più di 5 locali
  • 260 mq
  • 2 bagni
VENDITA 6
€ 399.000
Casa indipendente in Vendita a Roma, Zona Romanina
  • Più di 5 locali
  • 380 mq
  • 4 bagni