VENDESI TRILOCALE RISTRUTTURATO CON GIARDINO VENDITA

Via Monopoli - Roma, Zona Torre Angela
€ 149.000
  • Trilocale
  • 60 mq
  • 1 bagno

Appartamento in Vendita a Roma

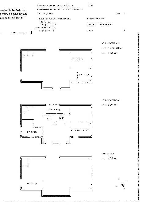
Rif. 1467 - Immobiliare Simonetti - In zona Torre Angela, a pochi passi dalle principali arterie della città come G.R.A. e A24 e dalla via principale provvista di supermercati, bar, farmacie e scuole, e più precisamente in via Monopoli, l'Immobiliare Simonetti propone in vendita un grazioso trilocale di circa 60 mq, completamente ristrutturato, situato al piano terra. L'immobile è composto da soggiorno con angolo cottura, camera matrimoniale, cameretta e bagno finestrato. Completa la proprietà un giardino privato, ideale per momenti di relax all'aperto. La soluzione è perfetta per chi cerca un'abitazione pronta all'uso, in un contesto tranquillo ma ben collegato ai principali servizi e alla rete dei trasporti pubblici. Tutte le informazioni, foto e planimetrie contenute nel presente annuncio pubblicitario non costituiscono elemento contrattuale: potrebbero non rispecchiare fedelmente lo stato di fatto dell'immobile e andranno verificate prima di formulare la proposta di acquisto. L'agenzia immobiliare non risponde di eventuali discordanze. Le immagini o foto in pubblicità sono inserite a scopo illustrativo non costituiscono elemento contrattuale. Rif. 1467 - Immobiliare Simonetti -

LEGGI TUTTO

CONDIVIDI SUI SOCIAL

DATI PRINCIPALI

Riferimento
642145
Contratto
Vendita
Tipologia
Appartamento
Superficie
60 mq
Locali
3
Camere da letto
2
Cucina
Angolo cottura
Bagni
1
Piano
Piano terra
Totale piani
3

CARATTERISTICHE

Ascensore

COSTI

Prezzo
€ 149.000,00

EFFICIENZA ENERGETICA

Stato
Ristrutturato
Anno costruzione
1985
Riscaldamento
Autonomo
Climatizzazione
Predisposizione
Classe energetica
C
IPE
175,00 kWh/m²a

A+

A

B

175,00 kWh/m²a | Classe energetica C

C

D

E

F

G

MAPPA

ANNUNCI SIMILI

VENDITA 20
€ 139.000
Appartamento in Vendita a Roma, Zona Torre Angela
  • Quadrilocale
  • 85 mq
  • 1 bagno
VENDITA 3
€ 112.000
Appartamento in Vendita a Roma, Zona Torre Angela
  • Trilocale
  • 75 mq
  • 1 bagno
VENDITA 20
€ 85.000
Appartamento in Vendita a Roma, Zona Torre Angela
  • Trilocale
  • 80 mq
  • 1 bagno