Trilocale in vendita – Torre Angela, Via Bitonto VENDITA

Via Bitonto 84 - Roma, Zona Torre Angela
€ 135.000
  • Trilocale
  • 60 mq
  • 2 bagni

Appartamento in Vendita a Roma

Trilocale in vendita – Torre Angela, Via Bitonto
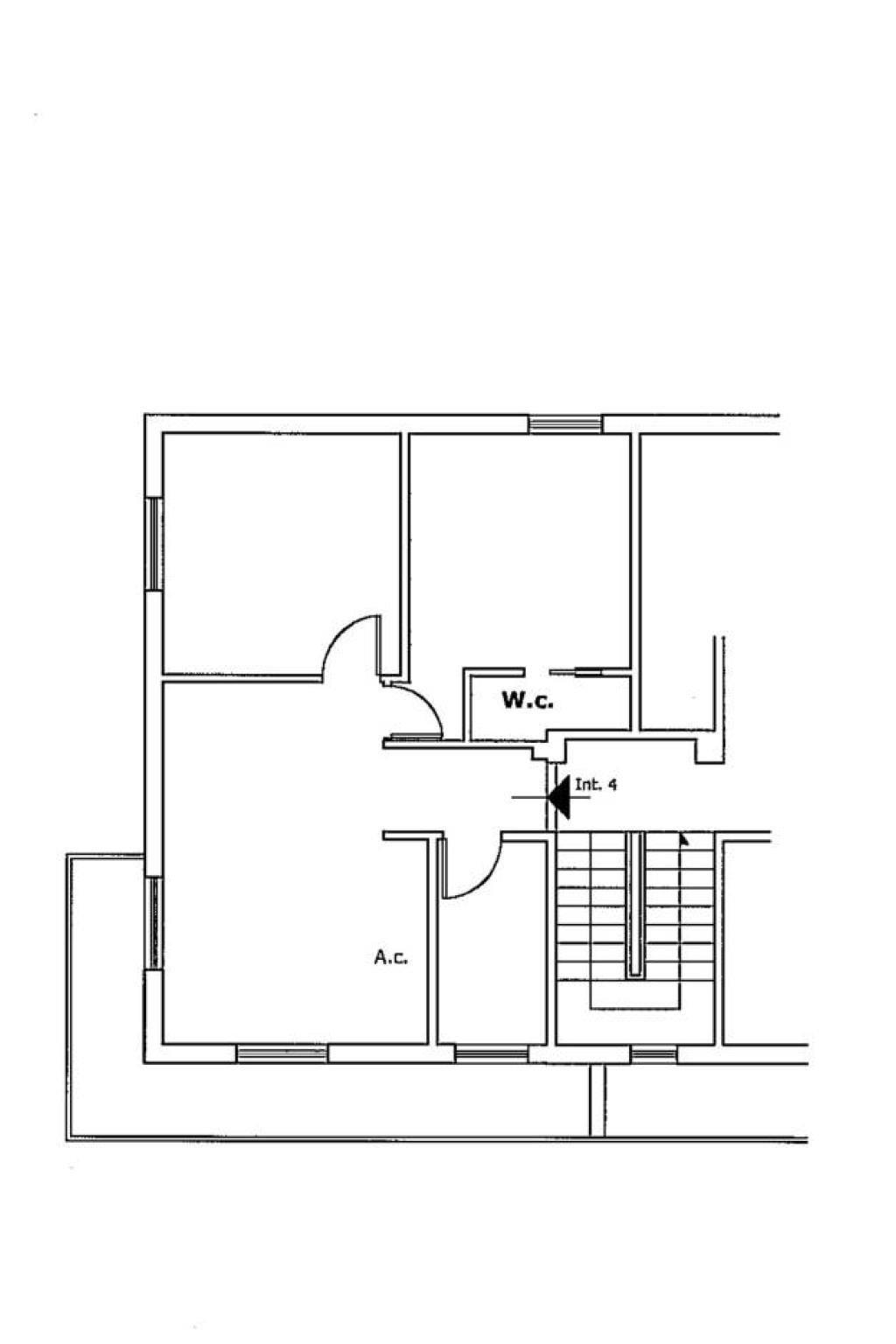
Nelle immediate vicinanze di Via di Torrenova, proponiamo in vendita un appartamento di 60 mq situato al secondo piano di una palazzina in tinta, senza ascensore.
L’immobile, con esposizione sud-est, è composto da: ingresso, soggiorno con angolo cottura, disimpegno, camera matrimoniale con bagno padronale, cameretta, secondo bagno con vasca, balcone angolare e soppalco.
Completa la proprietà una cantina al piano terra.
Caratteristiche interne: porta blindata, riscaldamento autonomo, pavimenti in monocottura, infissi in alluminio, impianto di climatizzazione.
Classe Energetica G
Prezzo Euro 135.000
Per informazioni contatti e visite 3331823239 - 3383536886

Hai bisogno di vendere la tua casa? Abbiamo delle agevolazioni per te!

LEGGI TUTTO

CONDIVIDI SUI SOCIAL

DATI PRINCIPALI

Riferimento
640157
Contratto
Vendita
Tipologia
Appartamento
Superficie
60 mq
Locali
3
Camere da letto
2
Cucina
A vista
Bagni
2
Piano
2 °
Totale piani
2

CARATTERISTICHE

Ascensore

COSTI

Prezzo
€ 135.000,00
Spese condominiali
€ 50,00 / mese

EFFICIENZA ENERGETICA

Stato
Abitabile
Anno costruzione
1970
Riscaldamento
Autonomo
Climatizzazione
Si
Classe energetica
G
IPE
351,00 kWh/m²a

A+

A

B

C

D

E

F

351,00 kWh/m²a | Classe energetica G

G

MAPPA

ANNUNCI SIMILI

VENDITA 20
€ 85.000
Appartamento in Vendita a Roma, Zona Torre Angela
  • Trilocale
  • 80 mq
  • 1 bagno
VENDITA 20
€ 139.000
Appartamento in Vendita a Roma, Zona Torre Angela
  • Quadrilocale
  • 85 mq
  • 1 bagno
VENDITA 3
€ 112.000
Appartamento in Vendita a Roma, Zona Torre Angela
  • Trilocale
  • 75 mq
  • 1 bagno