TORRENOVA - VIA SQUINZANO VENDITA

Via Squinzano 74 - Roma, Zona Torre Angela
€ 339.000
  • Trilocale
  • 105 mq
  • 2 bagni

Appartamento in Vendita a Roma

vendesi in via squinzano ad via di torrenova, soluzione abitativa indipendente, di recentissima ristrutturazione, avente doppio accesso sia pedonale che carrabile.

il fabbricato e’ stato realizzato con materiali di pregio con caratteristiche costruttive nel rispetto della normativa green mediante la posa in opera di cappotto termico in pannelli eps, sui muri perimetrali e tra la pannellatura di cartongesso e il piano di copertura formata da pannelli gregrati coibentati.

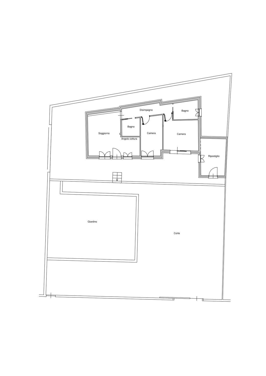
l’immobile e’ composto da soggiorno con angolo cottura, corridoio di accesso alla zona notte, camera matrimoniale, cameretta e due bagni, completa la proprieta’ un magazzino adiacente l’appartamento con accesso indipendente oltre corte esterna della superficie totale di 350 mq dei quali 270 mq pavimentati e carrabili.

le rifiniture interne sono di pregio, i pavimenti sono in ceramica prima scelta, infissi in doppio vetro metallo a taglio termico certificati, tapparelle in alluminio coibentato motorizzate, grate in tutte le finestre, portoncini blindati, impianto di allarme, videocitofono, fibra ottica ed impianto tv, idrico e di raccolta acqua piovana sulla corte esterna.

la dotazione impiantistica e’ stata completamente rinnovata e certificata con la dotazione di impianto di riscaldamento e raffrescamento a pompa di calore marca ariston.

un immobile pronto all’uso, adatto ad una famiglia che cerca riservatezza ed un grande spazio esterno da vivere.
per info 339 3911122 fabrizio
*le presenti informazioni e planimetrie sono meramente indicative e non costituiscono elementi contrattuali.

LEGGI TUTTO

CONDIVIDI SUI SOCIAL

DATI PRINCIPALI

Riferimento
627058
Contratto
Vendita
Tipologia
Appartamento
Superficie
105 mq
Locali
3
Camere da letto
2
Cucina
Angolo cottura
Bagni
2
Piano
Piano terra
Totale piani
1

CARATTERISTICHE

Ascensore

COSTI

Prezzo
€ 339.000,00

EFFICIENZA ENERGETICA

Stato
Ristrutturato
Anno costruzione
1970
Riscaldamento
Autonomo
Climatizzazione
Si
Classe energetica
A
IPE
175,00 kWh/m²a

A+

175,00 kWh/m²a | Classe energetica A

A

B

C

D

E

F

G

MAPPA

ANNUNCI SIMILI

VENDITA 13
€ 159.000
Appartamento in Vendita a Roma, Zona Torre Angela
  • Quadrilocale
  • 125 mq
  • 1 bagno
VENDITA 3
€ 112.000
Appartamento in Vendita a Roma, Zona Torre Angela
  • Trilocale
  • 75 mq
  • 1 bagno
VENDITA 20
€ 139.000
Appartamento in Vendita a Roma, Zona Torre Angela
  • Quadrilocale
  • 85 mq
  • 1 bagno
VENDITA 20
€ 240.000
Appartamento in Vendita a Roma, Zona Torre Angela
  • Trilocale
  • 90 mq
  • 3 bagni