€ 323.000
  • Trilocale
  • 62 mq
  • 1 bagno

Appartamento in Vendita a Roma

VIALE DELLE MEDAGLIE D’ORO – SOLUZIONE COMPLETA: RISTRUTTURATA CON POSTO AUTO
Nel cuore della Balduina, più precisamente nel comprensorio privato a Viale delle Medaglie d’Oro dotato di servizio di portineria, proponiamo in vendita un trilocale con posto auto.
Un’ottima opportunità per chi desidera un appartamento moderno, mai abitato prima e pronto da vivere in una delle zone più servite e richieste della città.
L’appartamento si trova in una posizione comoda e ben collegata: nelle immediate vicinanze sono presenti supermercati, farmacie, scuole, attività commerciali di ogni genere e aree verdi.
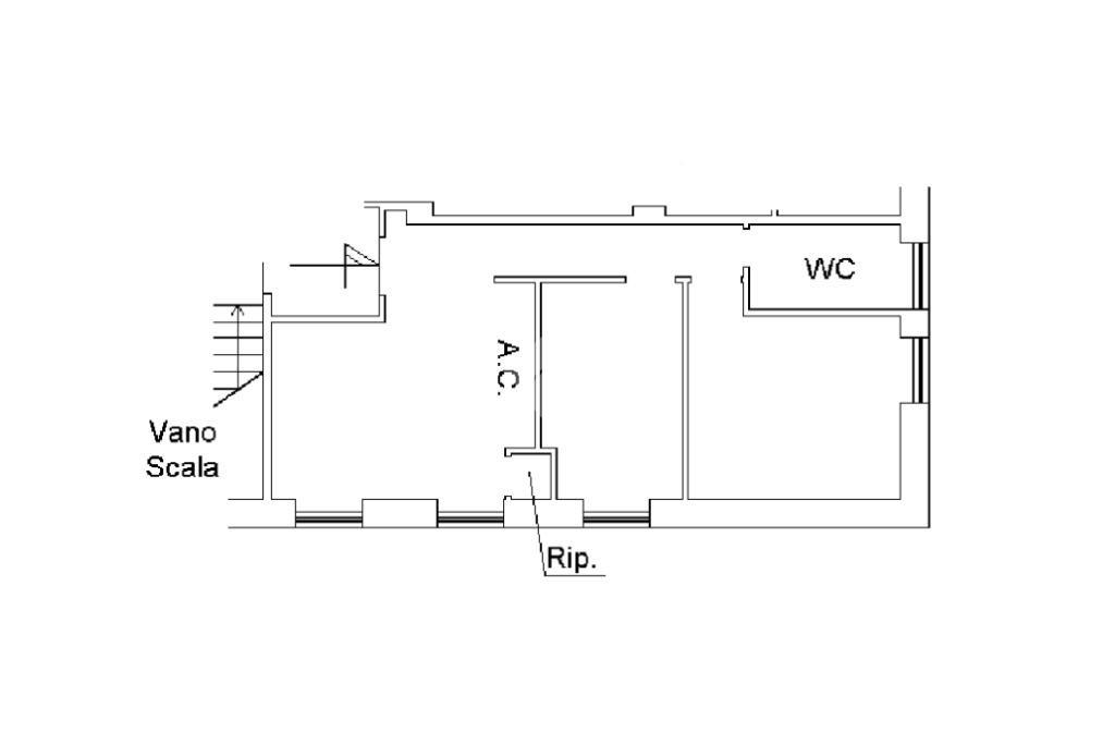
L’ingresso si apre su un accogliente salone con cucina a vista, pensato per offrire uno spazio conviviale, ideale per rilassarsi o ricevere ospiti.
La camera matrimoniale, ampia e confortevole, è studiata per garantire la massima privacy e il giusto equilibrio tra relax e funzionalità. Accanto, troviamo un' ulteriore camera da letto e completa la proprietà un bagno finestrato, dotato di box doccia e rifinito con materiali moderni e sanitari di qualità.
L'immobile presenta: predisposizione aria condizionata, porta blindata, serrande elettriche, infissi in pvc, bagno completo di sanitari e con box doccia nuovi.
Una soluzione abitabile fin da subito e completa di ogni esigenza è un’occasione da non perdere!
Per maggiori informazioni o per organizzare una visita, non esitare a contattare il numero 06.35.40.34.54 o inviare un messaggio su WhatsApp al 339 536 8094

LEGGI TUTTO

CONDIVIDI SUI SOCIAL

DATI PRINCIPALI

Riferimento
631378
Contratto
Vendita
Tipologia
Appartamento
Superficie
62 mq
Locali
3
Camere da letto
2
Cucina
A vista
Bagni
1
Piano
Piano rialzato
Totale piani
4
Box/Posto auto
Singolo

CARATTERISTICHE

Ascensore

COSTI

Prezzo
€ 323.000,00
Spese condominiali
€ 50,00 / mese

EFFICIENZA ENERGETICA

Stato
Nuovo/In costruzione
Anno costruzione
1960
Riscaldamento
Centralizzato
Climatizzazione
Predisposizione
Classe energetica
F
IPE
175,00 kWh/m²a

A+

A

B

C

D

E

175,00 kWh/m²a | Classe energetica F

F

G

MAPPA

ANNUNCI SIMILI

VENDITA 20
€ 625.000
Appartamento in Vendita a Roma (Roma)
  • Più di 5 locali
  • 141 mq
  • 2 bagni
VENDITA 20
€ 445.000
Appartamento in Vendita a Roma (Roma)
  • Più di 5 locali
  • 145 mq
  • 2 bagni
VENDITA 20
€ 480.000
Appartamento in Vendita a Roma, Zona Balduina
  • Quadrilocale
  • 134 mq
  • 2 bagni
VENDITA 20
€ 580.000
Appartamento in Vendita a Roma (Roma)
  • Più di 5 locali
  • 189 mq
  • 3 bagni
VENDITA 13
€ 240.750
Appartamento in Vendita a Roma (Roma)
  • Più di 5 locali
  • 94 mq
  • 1 bagno
VENDITA 18
€ 405.000
Appartamento in Vendita a Roma, Zona Balduina
  • Trilocale
  • 105 mq
  • 1 bagno
VENDITA
€ 275.000
Appartamento in Vendita a Roma, Zona Balduina
  • Trilocale
  • 80 mq
  • 2 bagni