Marconi, Largo Enea Bortolotti VENDITA

Viale Guglielmo Marconi - Roma, Zona Marconi
€ 440.000
  • Trilocale
  • 115 mq
  • 2 bagni

Appartamento in Vendita a Roma

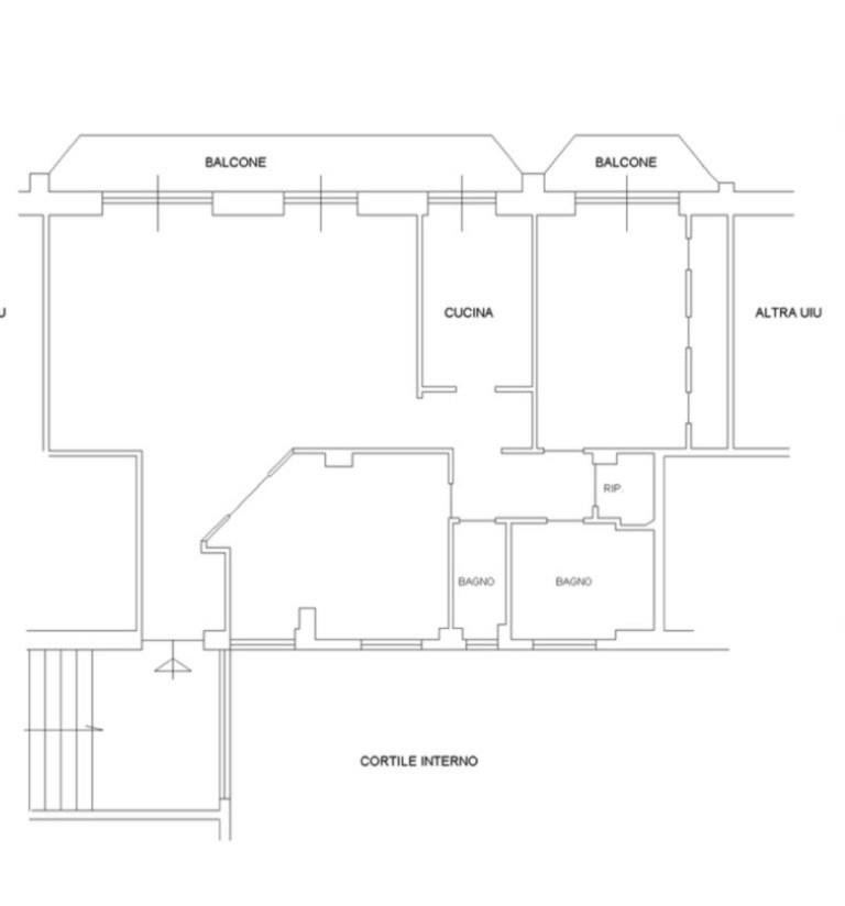
Proponiamo in vendita un appartamento al secondo piano di un palazzo signorile con facciata recentemente ristrutturata, situato a Largo Enea Bortolotti, in una delle zone più servite e richieste del quartiere Marconi.
L'appartamento è di 115 mq con 2 Balconi.
Composizione Interna:
• Ingresso accogliente; • Salone luminoso con accesso al primo balcone; • Cucina semi-abitabile con uscita sul balcone; • Due camere da letto, di cui una matrimoniale con il suo balcone privato; • Due bagni; • Comodo ripostiglio. • Riscaldamento: Centralizzato con contabilizzatori, costo annuo di circa € 720,00. • Spese condominiali: Circa € 100,00 mensili
L'immobile è caratterizzato da una distribuzione degli spazi ottimale ed ha una luminosità grazie ai due balconi presenti. Pur necessitando di alcuni lavori, la metratura generosa e la presenza di doppi servizi offrono un potenziale straordinario sia come abitazione principale che come investimento.
Posizione Strategica: L'appartamento si trova in un punto d'oro per la logistica urbana: • A pochi minuti a piedi dalla fermata Metro B Marconi. • Vicinissimo ai poli universitari Roma Tre e UNINT. • Circondato da ogni tipo di servizio (supermercati, banche, negozi e scuole).
Prezzo richiesto: € 440.000.
TELEFONARE SOLO A ISABELLA 337-554053

LEGGI TUTTO

CONDIVIDI SUI SOCIAL

DATI PRINCIPALI

Riferimento
636548
Contratto
Vendita
Tipologia
Appartamento
Superficie
115 mq
Locali
3
Camere da letto
2
Cucina
Abitabile
Bagni
2
Piano
2 °
Totale piani
5

CARATTERISTICHE

Ascensore

COSTI

Prezzo
€ 440.000,00
Spese condominiali
€ 100,00 / mese

EFFICIENZA ENERGETICA

Stato
Abitabile
Anno costruzione
1970
Riscaldamento
Centralizzato
Climatizzazione
Si
Classe energetica
G
IPE
175,00 kWh/m²a

A+

A

B

C

D

E

F

175,00 kWh/m²a | Classe energetica G

G

MAPPA

ANNUNCI SIMILI

VENDITA 20
€ 385.000
Appartamento in Vendita a Roma, Zona Marconi
  • Quadrilocale
  • 95 mq
  • 1 bagno
VENDITA 20
€ 290.000
Appartamento in Vendita a Roma, Zona Marconi
  • Trilocale
  • 95 mq
  • 1 bagno
VENDITA 13
€ 310.000
Appartamento in Vendita a Roma, Zona Marconi
  • Quadrilocale
  • 100 mq
  • 1 bagno
VENDITA 20
€ 340.000
Appartamento in Vendita a Roma, Zona Marconi
  • Quadrilocale
  • 103 mq
  • 2 bagni