Appartamento in vendita a Monterotondo, Monterotondo Scalo VENDITA

Via Carso 7 - Monterotondo (Roma)
€ 260.000
  • Quadrilocale
  • 120 mq
  • 2 bagni

Appartamento in Vendita a Monterotondo

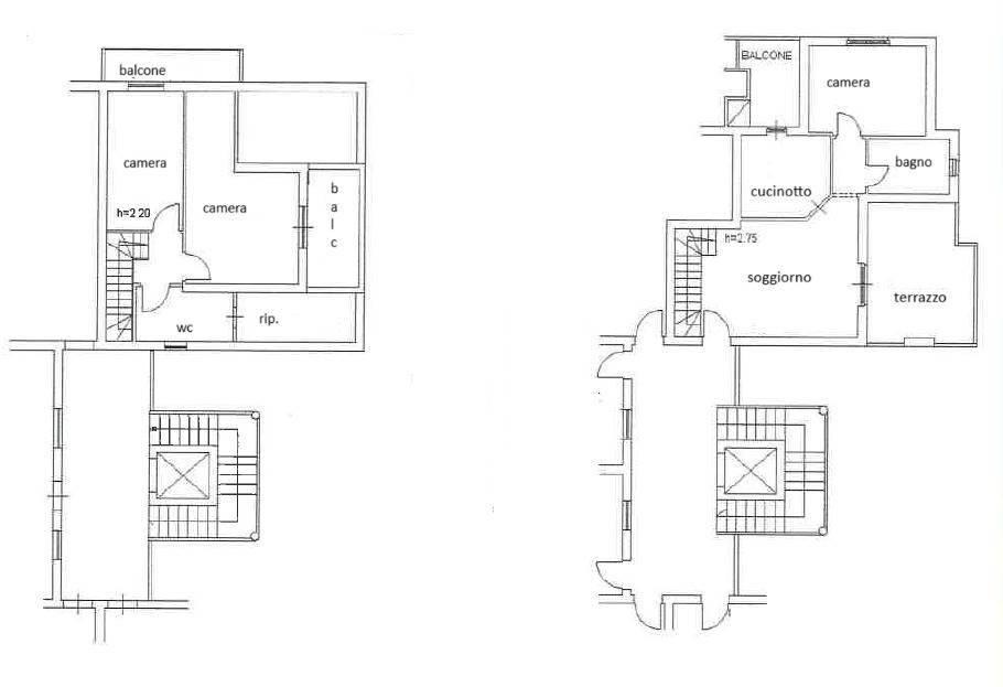
Monterotondo Scalo - via Carso, proponiamo in vendita un appartamento di 120 mq con terrazzo, posto auto coperto e posto auto scoperto.
L'immobile si sviluppa su due livelli, situati al terzo e quarto piano di una palazzina in cortina di recente costruzione, dotata di ascensore. Il primo livello comprende un soggiorno con accesso a un terrazzo abitabile, un cucinotto con balcone di servizio, una camera matrimoniale e un bagno. Al livello superiore sono presenti due ulteriori camere matrimoniali, un secondo bagno e due balconi.
La proprietà dispone di un posto auto coperto, raggiungibile direttamente tramite ascensore, e di un posto auto scoperto all'interno dell'area condominiale. L'abitazione si presenta in ottime condizioni generali, con ambienti luminosi e dotazioni quali tende da sole, impianto di climatizzazione, grate di sicurezza e zanzariere.
L'ubicazione è in un contesto residenziale immerso nel verde, pur mantenendo la comodità di avere servizi e attività commerciali facilmente raggiungibili a piedi. Ideale per nuclei familiari numerosi o per chi necessita di spostarsi quotidianamente verso Roma, beneficiando della vicinanza alle principali vie di collegamento. Ape "C"

LEGGI TUTTO

CONDIVIDI SUI SOCIAL

DATI PRINCIPALI

Riferimento
640828
Contratto
Vendita
Tipologia
Appartamento
Superficie
120 mq
Locali
4
Camere da letto
3
Cucina
Cucinotto
Bagni
2
Piano
Su più livelli
Totale piani
4
Box/Posto auto
Doppio

CARATTERISTICHE

Ascensore

COSTI

Prezzo
€ 260.000,00
Spese condominiali
€ 80,00 / mese

EFFICIENZA ENERGETICA

Stato
Ristrutturato
Anno costruzione
2007
Riscaldamento
Autonomo
Climatizzazione
Si
Classe energetica
C
IPE
64,84 kWh/m²a

A+

A

B

64,84 kWh/m²a | Classe energetica C

C

D

E

F

G

MAPPA

ANNUNCI SIMILI

VENDITA 20
€ 195.000
Appartamento in Vendita a Monterotondo (Roma)
  • Quadrilocale
  • 130 mq
  • 2 bagni
VENDITA 20
€ 177.000
Appartamento in Vendita a Monterotondo (Roma)
  • Più di 5 locali
  • 106 mq
  • 2 bagni
VENDITA 20
€ 189.000
Appartamento in Vendita a Monterotondo (Roma)
  • Quadrilocale
  • 95 mq
  • 3 bagni
VENDITA 20
€ 269.000
Appartamento in Vendita a Monterotondo (Roma)
  • Quadrilocale
  • 170 mq
  • 3 bagni
VENDITA 20
€ 125.000
Appartamento in Vendita a Monterotondo (Roma)
  • Quadrilocale
  • 80 mq
  • 1 bagno
VENDITA 20
€ 299.000
Appartamento in Vendita a Monterotondo (Roma)
  • Quadrilocale
  • 130 mq
  • 2 bagni