Garigliano198- Quadrilocale con rustico e giardino privato VENDITA

Monterotondo (Roma)
€ 198.000
  • Quadrilocale
  • 235 mq
  • 3 bagni

Appartamento in Vendita a Monterotondo

Garigliano198- Monterotondo – Quadrilocale con rustico 140 mq e giardino privato 130 mq
A Monterotondo, in via Garigliano, proponiamo in vendita un ampio quadrilocale con rustico e giardino privato, situato in una zona tranquilla ma ben collegata, a pochi minuti dal centro e dalla stazione di Monterotondo Scalo.
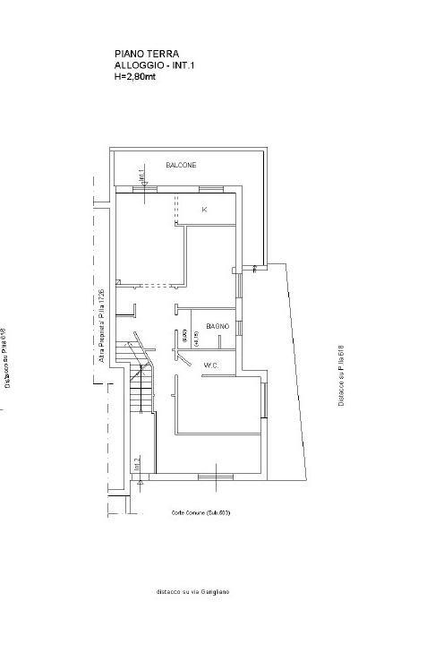
L’appartamento si sviluppa al piano terra per circa 95 mq ed è composto da un luminoso soggiorno con camino, un cucinotto funzionale e un comodo ripostiglio. La zona notte comprende due camere matrimoniali, di cui una con bagno en suite, una cameretta e un secondo bagno. Completa il piano un ampio balcone di circa 40 mq, ideale come spazio esterno vivibile.
Al piano seminterrato si trova un grande rustico di circa 140 mq con camino, oltre ad un ulteriore bagno e una cantina. Questo ambiente rappresenta uno spazio molto versatile, perfetto come taverna, sala hobby, studio o zona relax.
La proprietà è arricchita da un giardino privato di circa 130 mq, ideale per chi desidera una casa con spazi esterni. L’immobile è in discreto stato manutentivo ed è dotato di tre ingressi, offrendo grande flessibilità di utilizzo.
Sono presenti delle aree comuni, come il portico pavimentato e un’area destinata al parcheggio di due auto.
Non sono previste spese condominiali.
La soluzione è ideale per chi cerca una casa con giardino a Monterotondo, ampi spazi interni, rustico o taverna e la comodità dei collegamenti con Roma grazie alla vicinanza alla stazione di Monterotondo Scalo.

Contattaci per informazioni o per fissare un appuntamento.
°°°°°°°°°°°°°°°°°°°°°°°°°°°°°°°°°°°°°°°°°°°°°°°°°°°°°°°
Le informazioni riportate sono da intendersi come indicative e non vincolanti, non costituendo offerta contrattuale o documentazione ufficiale di vendita.
°°°°°°°°°°°°°°°°°°°°°°°°°°°°°°°°°°°°°°°°°°°°°°°°°°°°°°°
Oikos è un’agenzia immobiliare presente a Monterotondo dal 2005, con Agenti immobiliari con esperienza ultratrentennale.
Adotta un approccio innovativo all’intermediazione immobiliare, integrando strumenti digitali avanzati con consulenza esperta e relazioni solide sul territorio, per ottimizzare ogni operazione di vendita o locazione.
Operiamo principalmente nelle zone di Monterotondo, Casali, Mentana, Fonte Nuova, e nell’intera area nord-est di Roma.

LEGGI TUTTO

CONDIVIDI SUI SOCIAL

DATI PRINCIPALI

Riferimento
637052
Contratto
Vendita
Tipologia
Appartamento
Superficie
235 mq
Locali
4
Camere da letto
3
Cucina
Cucinotto
Bagni
3
Piano
Piano terra
Totale piani
2
Box/Posto auto
Doppio

CARATTERISTICHE

Ascensore

COSTI

Prezzo
€ 198.000,00

EFFICIENZA ENERGETICA

Stato
Abitabile
Anno costruzione
1990
Riscaldamento
Autonomo
Climatizzazione
Si
Classe energetica
E
IPE
351,00 kWh/m²a

A+

A

B

C

D

351,00 kWh/m²a | Classe energetica E

E

F

G

MAPPA

ANNUNCI SIMILI

VENDITA 20
€ 125.000
Appartamento in Vendita a Monterotondo (Roma)
  • Quadrilocale
  • 80 mq
  • 1 bagno
VENDITA 20
€ 269.000
Appartamento in Vendita a Monterotondo (Roma)
  • Quadrilocale
  • 170 mq
  • 3 bagni
VENDITA 20
€ 299.000
Appartamento in Vendita a Monterotondo (Roma)
  • Quadrilocale
  • 130 mq
  • 2 bagni
VENDITA 20
€ 310.000
Appartamento in Vendita a Monterotondo (Roma)
  • Quadrilocale
  • 120 mq
  • 2 bagni