Appartamento in vendita a Monterotondo, Monterotondo Paese VENDITA

Via Garigliano 183A - Monterotondo (Roma)
€ 249.000
  • Quadrilocale
  • 125 mq
  • 2 bagni

Appartamento in Vendita a Monterotondo

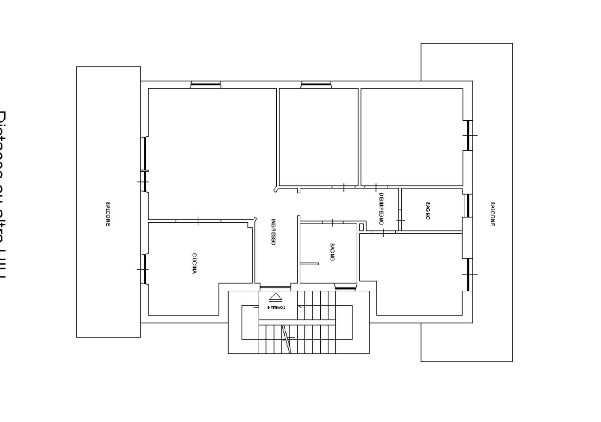
Monterotondo - Via Garigliano - proponiamo in vendita un quadrilocale di 125 mq completamente ristrutturato con terrazzo, balcone e due posti auto.
L'appartamento si apre su un accogliente ingresso che introduce a un ampio salone e a una cucina abitabile, entrambi caratterizzati da accesso diretto al terrazzo ideale per momenti conviviali all'aperto. Un corridoio conduce alla zona notte, composta da tre camere da letto matrimoniali, due bagni finestrati e un balcone con suggestiva vista panoramica sulla vallata.
Completano la proprietà due posti auto scoperti. Ideale per nuclei familiari numerosi.
L'immobile proposto in vendita è un elegante appartamento completamente ristrutturato con materiali di pregio, accessoriato da climatizzatori in tutti gli ambienti e da tende da sole sul terrazzo e sul balcone. La casa si trova al piano primo di una palazzina composta da sole tre unità abitative, priva di spese condominiali e collocata in una strada chiusa che garantisce riservatezza e tranquillità, pur rimanendo a breve distanza dalla stazione ferroviaria metropolitana e dal centro cittadino. APE "F"

LEGGI TUTTO

CONDIVIDI SUI SOCIAL

DATI PRINCIPALI

Riferimento
640834
Contratto
Vendita
Tipologia
Appartamento
Superficie
125 mq
Locali
4
Camere da letto
3
Cucina
Abitabile
Bagni
2
Piano
1 °
Totale piani
2
Box/Posto auto
Doppio

CARATTERISTICHE

Ascensore

COSTI

Prezzo
€ 249.000,00

EFFICIENZA ENERGETICA

Stato
Ristrutturato
Anno costruzione
1988
Riscaldamento
Autonomo
Climatizzazione
Si
Classe energetica
F
IPE
140,55 kWh/m²a

A+

A

B

C

D

E

140,55 kWh/m²a | Classe energetica F

F

G

MAPPA

ANNUNCI SIMILI

VENDITA 20
€ 125.000
Appartamento in Vendita a Monterotondo (Roma)
  • Quadrilocale
  • 80 mq
  • 1 bagno
VENDITA 20
€ 269.000
Appartamento in Vendita a Monterotondo (Roma)
  • Quadrilocale
  • 170 mq
  • 3 bagni
VENDITA 20
€ 299.000
Appartamento in Vendita a Monterotondo (Roma)
  • Quadrilocale
  • 130 mq
  • 2 bagni
VENDITA 20
€ 177.000
Appartamento in Vendita a Monterotondo (Roma)
  • Più di 5 locali
  • 106 mq
  • 2 bagni