Appartamento di prestigio Camilluccia VENDITA

Roma (Roma)
€ 980.000
  • Più di 5 locali
  • 208 mq
  • 3 bagni

Appartamento in Vendita a Roma

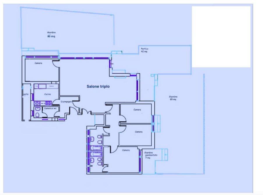
Rivolta Immobiliare ha il piacere di presentare in vendita nel cuore della Camilluccia a due passi da Piazza Dei Giochi Delfici, un appartamento di grande prestigio, caratterizzato da ampia metratura, affacci panoramici e spazi esterni vivibili, situato all’interno di uno dei piu' eleganti comprensori di zona, con servizio di portierato e guardiania h24 .

La proprietà, in buono stato manutentivo, si sviluppa su circa 190 mq interni e 165 mq esterni tra terrazze e giardini ad uso esclusivo.

Pur essendo un primo piano, la posizione collinare garantisce un affaccio da piano alto, con una splendida vista aperta e dominante sul Parco dell’Insugherata.
L’immobile gode di assoluta privacy, silenzio e straordinaria luminosità.

Internamente è così suddiviso.

Doppi ingressi

Ampio salone triplo con camino d’epoca, ambiente di rappresentanza valorizzato da grandi vetrate e impreziosito dal parquet iroko

4 camere da letto, tutte con accesso diretto agli spazi esterni

Cameretta di servizio

3 bagni

Cucina abitabile con tinello

Spazi esterni

L’appartamento è circondato da un ampio terrazzo vivibile e da un giardino ad uso esclusivo, che offrono un ulteriore ingresso indipendente e rappresentano un’estensione naturale degli ambienti interni, ideali per vivere all’aperto in totale riservatezza.

Completano la proprietà

Cantina finestrata

Posti auto condominiali

Quota di comproprietà di un appartamento indipendente (ex portiere) attualmente locato, con interessante rendita

Quota di comproprietà di due ampie mansarde condominiali (circa 80 mq ciascuna), ad uso servizi/lavatoi

Inserito in un contesto residenziale di alto livello, immerso nel verde e a ridosso di parchi naturali protetti, l’immobile si trova in una delle zone più esclusive di Roma, a pochi minuti dal centro e con collegamenti rapidi al GRA.

Soluzione ideale per chi desidera un’abitazione di rappresentanza, riservata e immersa nella natura, senza rinunciare alla comodità della città. Che aspetti? Chiama Rivolta al 06.6871062

LEGGI TUTTO

CONDIVIDI SUI SOCIAL

DATI PRINCIPALI

Riferimento
642774
Contratto
Vendita
Tipologia
Appartamento
Superficie
208 mq
Locali
5
Camere da letto
4
Cucina
Abitabile
Bagni
3
Piano
Piano terra
Totale piani
4
Box/Posto auto
Doppio

CARATTERISTICHE

Ascensore

COSTI

Prezzo
€ 980.000,00
Spese condominiali
€ 500,00 / mese

EFFICIENZA ENERGETICA

Stato
Abitabile
Riscaldamento
Centralizzato
Climatizzazione
Si
Classe energetica
G
IPE
175,00 kWh/m²a

A+

A

B

C

D

E

F

175,00 kWh/m²a | Classe energetica G

G

MAPPA

ANNUNCI SIMILI

VENDITA 14
€ 1.500.000
Appartamento in Vendita a Roma (Roma)
  • Più di 5 locali
  • 251 mq
  • 3 bagni
VENDITA 20
€ 890.000
Appartamento in Vendita a Roma (Roma)
  • Più di 5 locali
  • 258 mq
  • 4 bagni
VENDITA 2
€ 975.000
Appartamento in Vendita a Roma (Roma)
  • Più di 5 locali
  • 251 mq
  • 3 bagni
VENDITA 11
€ 699.000
Appartamento in Vendita a Roma (Roma)
  • Più di 5 locali
  • 169 mq
  • 3 bagni
VENDITA 20
€ 1.050.000
Appartamento in Vendita a Roma (Roma)
  • Più di 5 locali
  • 230 mq
  • 3 bagni
VENDITA 20
€ 699.000
Appartamento in Vendita a Roma (Roma)
  • Più di 5 locali
  • 169 mq
  • 3 bagni
VENDITA 20
€ 750.000
Appartamento in Vendita a Roma (Roma)
  • Più di 5 locali
  • 256 mq
VENDITA 20
€ 895.000
Appartamento in Vendita a Roma (Roma)
  • Più di 5 locali
  • 245 mq
  • 3 bagni