Appartamento in vendita a Roma, Vigna Clara - Vigna Stelluti VENDITA

Via Nemea - Roma (Roma)
€ 1.960.000
  • Più di 5 locali
  • 400 mq
  • 4 bagni

Appartamento in Vendita a Roma

L'appartamento in vendita si trova nella splendida zona di Vigna Clara - Vigna Stelluti, all'interno di uno dei più prestigiosi residence di Roma, nel cuore della città e immerso nel verde. La posizione è strategica: vicino a tutti i servizi e ben collegata con il centro, ideale per chi desidera vivere in tranquillità senza rinunciare alla comodità.
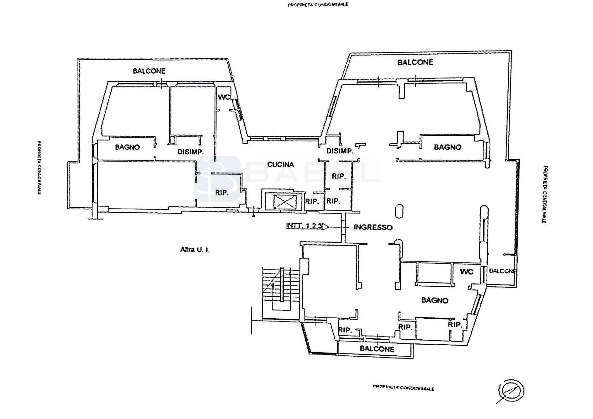
Situato al primo piano di un elegante palazzo residenziale di quattro piani, l'immobile è libero al rogito ed è pronto per essere abitato. La superficie commerciale è di circa 400 mq, di cui 384 mq interni, arredati con finiture di alta qualità che conferiscono un'atmosfera elegante e raffinata.
L'appartamento si presenta con una distribuzione molto funzionale: tre ingressi, un salone triplo di grande rappresentanza, doppia sala da pranzo, quattro camere matrimoniali ciascuna dotata di ampi armadi a muro, e quattro bagni, di cui due en-suite. Uno dei bagni padronali include anche una sauna. La cucina è spaziosa e ben attrezzata, con doppio piano di lavoro, doppi piani cottura e ogni comfort necessario. Completano la proprietà ampi terrazzi perimetrali che circondano l'immobile, un box/lavanderia e un posto auto coperto. L'immobile con riscaldamento centralizzato è dotato anche di impianto autonomo di raffreddamento/riscaldamento di aria condizionata, per garantire il massimo comfort tutto l'anno.
Gli spazi sono ben distribuiti e possono essere adattati alle diverse esigenze dei proprietari. La presenza di tre ingressi permette anche di suddividere l'appartamento in più unità abitative, offrendo molte possibilità di utilizzo.
Il residence, tra i più esclusivi di Roma, offre servizi di vigilanza e portierato H24, un'area giochi attrezzata per bambini, tre campi da tennis e una piscina olimpionica considerata tra le più belle della capitale. È il luogo ideale per chi desidera vivere in un ambiente esclusivo, immerso nel verde e nella tranquillità, a pochi passi dal centro della città.

LEGGI TUTTO

CONDIVIDI SUI SOCIAL

DATI PRINCIPALI

Riferimento
626606
Contratto
Vendita
Tipologia
Appartamento
Superficie
400 mq
Locali
Più di 5
Camere da letto
4
Cucina
Abitabile
Bagni
4
Piano
1 °
Totale piani
4
Box/Posto auto
Doppio

CARATTERISTICHE

Ascensore

COSTI

Prezzo
€ 1.960.000,00
Spese condominiali
€ 1.000,00 / mese

EFFICIENZA ENERGETICA

Stato
Ristrutturato
Riscaldamento
Autonomo
Climatizzazione
Si
Classe energetica
G

A+

A

B

C

D

E

F

Classe energetica G

G

MAPPA

ANNUNCI SIMILI

VENDITA 20
€ 1.050.000
Appartamento in Vendita a Roma (Roma)
  • Più di 5 locali
  • 230 mq
  • 3 bagni
VENDITA 20
€ 890.000
Appartamento in Vendita a Roma (Roma)
  • Più di 5 locali
  • 258 mq
  • 4 bagni
VENDITA 14
€ 1.500.000
Appartamento in Vendita a Roma (Roma)
  • Più di 5 locali
  • 251 mq
  • 3 bagni
VENDITA 20
€ 895.000
Appartamento in Vendita a Roma (Roma)
  • Più di 5 locali
  • 245 mq
  • 3 bagni
VENDITA 11
€ 699.000
Appartamento in Vendita a Roma (Roma)
  • Più di 5 locali
  • 169 mq
  • 3 bagni
VENDITA 20
€ 699.000
Appartamento in Vendita a Roma (Roma)
  • Più di 5 locali
  • 169 mq
  • 3 bagni
VENDITA 2
€ 975.000
Appartamento in Vendita a Roma (Roma)
  • Più di 5 locali
  • 251 mq
  • 3 bagni
VENDITA 20
€ 980.000
Appartamento in Vendita a Roma (Roma)
  • Più di 5 locali
  • 124 mq
  • 2 bagni
VENDITA 20
€ 950.000
Appartamento in Vendita a Roma (Roma)
  • Più di 5 locali
  • 219 mq
  • 3 bagni
VENDITA 20
€ 820.000
Appartamento in Vendita a Roma (Roma)
  • Più di 5 locali
  • 160 mq
  • 3 bagni