APPARTAMENTO DI PREGIO - CAMILLUCCIA VENDITA

Via della Camilluccia 183 - Roma (Roma)
€ 616.000
  • Più di 5 locali
  • 162 mq
  • 2 bagni

Appartamento in Vendita a Roma

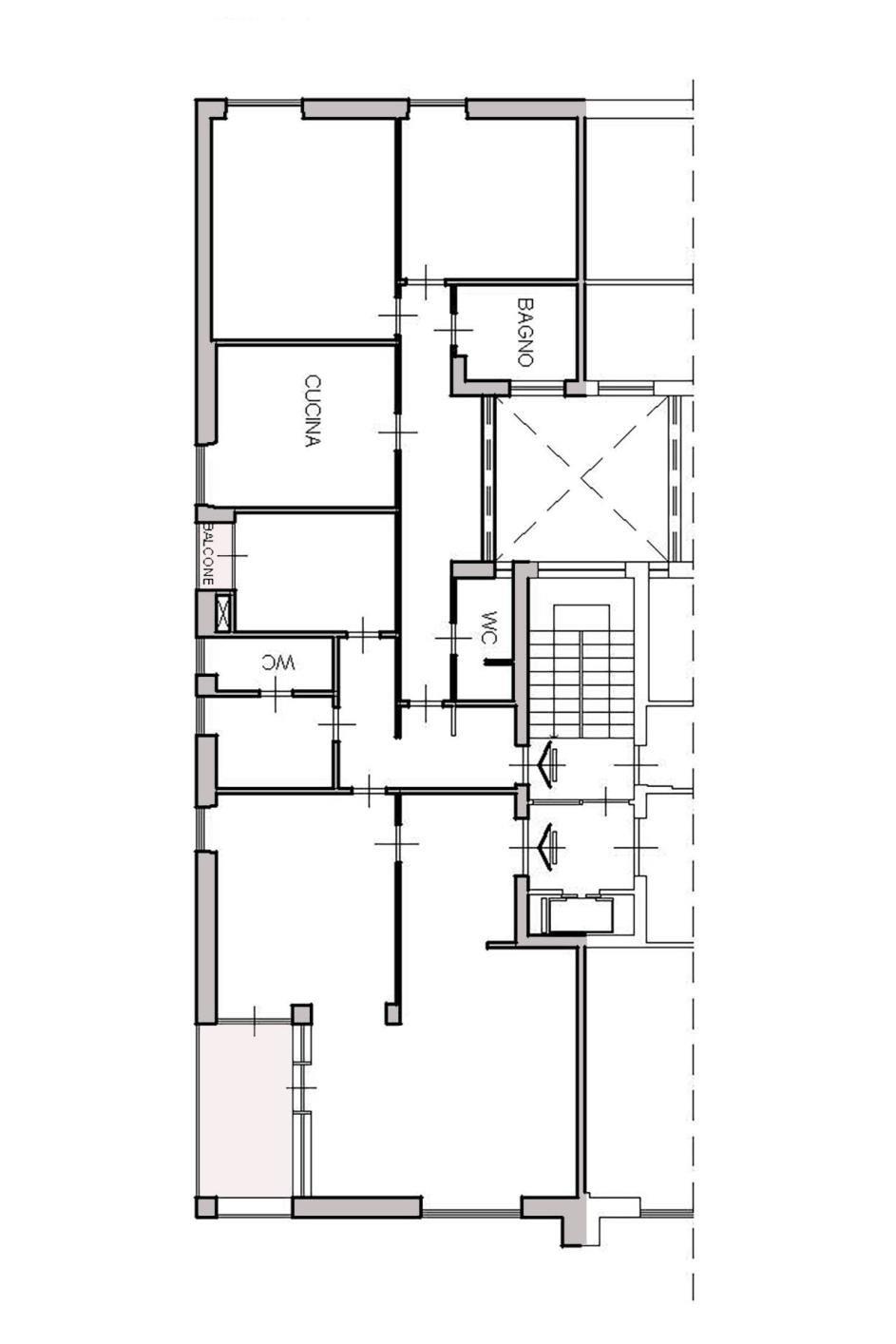
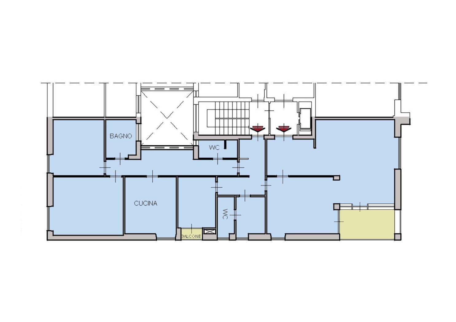
In zona Camilluccia, proponiamo un ampio appartamento di 159 mq con uno spazio esterno di 10 mq, situato in una palazzina recentemente ristrutturata. L'ingresso spazioso conduce a un luminoso salone, una zona pranzo con adiacente una spaziosa cucina con balcone e una zona notte di servizio. Il salone ha accesso diretto al terrazzo di mq 10 ca per pranzi all'aperto e momenti di relax. La zona notte, accessibile tramite un corridoio, comprende tre camere da letto matrimoniali e due bagni, di cui uno con doccia e uno con vasca. Camera e bagno di servizio, oltre cantina. E presente un secondo ingresso di servizio molto cunzionale. Per ulteriori informazioni o per pianificare una visita, contattare al numero 335470318 o via email all'indirizzo astaldire@astaldire.it. Le foto sono state realizzate con grande angolare per una migliore e più chiara rappresentazione degli spazi. Vi consigliamo anche di visionare il video dell'immobile per avere una migliore idea delle sue caratteristiche.

LEGGI TUTTO

CONDIVIDI SUI SOCIAL

DATI PRINCIPALI

Riferimento
637688
Contratto
Vendita
Tipologia
Appartamento
Superficie
162 mq
Locali
Più di 5
Camere da letto
4
Cucina
Abitabile
Bagni
2
Piano
1 °
Totale piani
5

CARATTERISTICHE

Ascensore

COSTI

Prezzo
€ 616.000,00

EFFICIENZA ENERGETICA

Stato
Da ristrutturare
Riscaldamento
Centralizzato
Classe energetica
F
IPE
83,61 kWh/m²a

A+

A

B

C

D

E

83,61 kWh/m²a | Classe energetica F

F

G

MAPPA

ANNUNCI SIMILI

VENDITA 16
€ 635.000
Appartamento in Vendita a Roma (Roma)
  • Più di 5 locali
  • 250 mq
  • 3 bagni
VENDITA 18
€ 563.000
Appartamento in Vendita a Roma (Roma)
  • Più di 5 locali
  • 150 mq
  • 3 bagni
VENDITA 16
€ 596.500
Appartamento in Vendita a Roma (Roma)
  • Più di 5 locali
  • 174 mq
  • 2 bagni
VENDITA 15
€ 572.000
Appartamento in Vendita a Roma (Roma)
  • Più di 5 locali
  • 150 mq
  • 3 bagni
VENDITA 20
€ 630.000
Appartamento in Vendita a Roma (Roma)
  • Più di 5 locali
  • 200 mq
  • 3 bagni
VENDITA 20
€ 720.000
Appartamento in Vendita a Roma (Roma)
  • Più di 5 locali
  • 195 mq
  • 3 bagni
VENDITA 9
€ 980.000
Appartamento in Vendita a Roma (Roma)
  • Più di 5 locali
  • 265 mq
  • 4 bagni
VENDITA 20
€ 850.000
Appartamento in Vendita a Roma (Roma)
  • Più di 5 locali
  • 291 mq
  • 3 bagni