Ampio appartamento da ristrutturare con balconi VENDITA

Via della Camilluccia 199 - Roma (Roma)
€ 572.000
  • Più di 5 locali
  • 150 mq
  • 3 bagni

Appartamento in Vendita a Roma

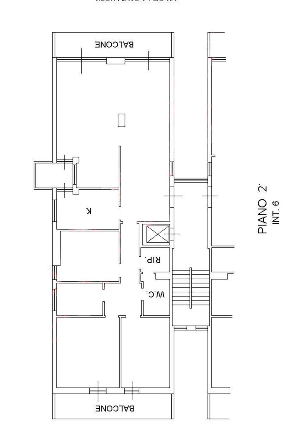
In contesto residenziale tranquillo e signorile, proponiamo in vendita un ampio appartamento di circa 140 mq coperti, situato al secondo piano, con 24 mq di spazi esterni distribuiti su due balconi principali e un balcone di servizio.
L’immobile si distingue per la generosità degli spazi interni e la razionale distribuzione degli ambienti.
La zona giorno è composta da un salone pranzo di ampia metratura, molto luminoso, con accesso diretto al balcone principale, ideale per momenti di convivialità. Completano la zona giorno una cucina separata, con uscita sul balcone di servizio, e una camera di servizio con bagno dedicato.
La zona notte comprende tre camere da letto e due bagni. Due delle camere hanno accesso diretto al secondo grande balcone, garantendo ottima luminosità e affacci aperti.
L’appartamento è completamente da ristrutturare, offrendo quindi un’eccellente opportunità di personalizzazione degli spazi e delle finiture secondo le proprie esigenze.
Le fotografie sono state realizzate con obiettivo grandangolare al fine di offrire una rappresentazione più completa degli ambienti e valorizzare la percezione degli spazi.
Per una visione ancora più chiara e realistica dell’immobile, consigliamo di visionare anche il filmato dell’appartamento, disponibile nell’annuncio.
Completa la proprietà una cantina. È inoltre possibile acquistare separatamente un box auto.
Soluzione ideale per famiglie o per chi desidera realizzare una residenza di pregio in una delle zone più apprezzate di Roma Nord.

LEGGI TUTTO

CONDIVIDI SUI SOCIAL

DATI PRINCIPALI

Riferimento
637678
Contratto
Vendita
Tipologia
Appartamento
Superficie
150 mq
Locali
Più di 5
Camere da letto
4
Cucina
Abitabile
Bagni
3
Piano
2 °
Totale piani
5

CARATTERISTICHE

Ascensore

COSTI

Prezzo
€ 572.000,00

EFFICIENZA ENERGETICA

Stato
Da ristrutturare
Anno costruzione
1962
Riscaldamento
Centralizzato
Classe energetica
G
IPE
175,00 kWh/m²a

A+

A

B

C

D

E

F

175,00 kWh/m²a | Classe energetica G

G

MAPPA

ANNUNCI SIMILI

VENDITA 18
€ 563.000
Appartamento in Vendita a Roma (Roma)
  • Più di 5 locali
  • 150 mq
  • 3 bagni
VENDITA 20
€ 630.000
Appartamento in Vendita a Roma (Roma)
  • Più di 5 locali
  • 200 mq
  • 3 bagni
VENDITA 16
€ 596.500
Appartamento in Vendita a Roma (Roma)
  • Più di 5 locali
  • 174 mq
  • 2 bagni
VENDITA 16
€ 635.000
Appartamento in Vendita a Roma (Roma)
  • Più di 5 locali
  • 250 mq
  • 3 bagni
VENDITA 18
€ 616.000
Appartamento in Vendita a Roma (Roma)
  • Più di 5 locali
  • 162 mq
  • 2 bagni
VENDITA 20
€ 720.000
Appartamento in Vendita a Roma (Roma)
  • Più di 5 locali
  • 195 mq
  • 3 bagni
VENDITA 9
€ 980.000
Appartamento in Vendita a Roma (Roma)
  • Più di 5 locali
  • 265 mq
  • 4 bagni
VENDITA 20
€ 730.000
Appartamento in Vendita a Roma (Roma)
  • Più di 5 locali
  • 182 mq
  • 3 bagni