Villino a schiera ad Acquaviva di Nerola – Ideale per giovan VENDITA

Via Maremmana - Nerola (Roma)
€ 127.000
  • Trilocale
  • 114 mq
  • 3 bagni

Villetta a schiera in Vendita a Nerola

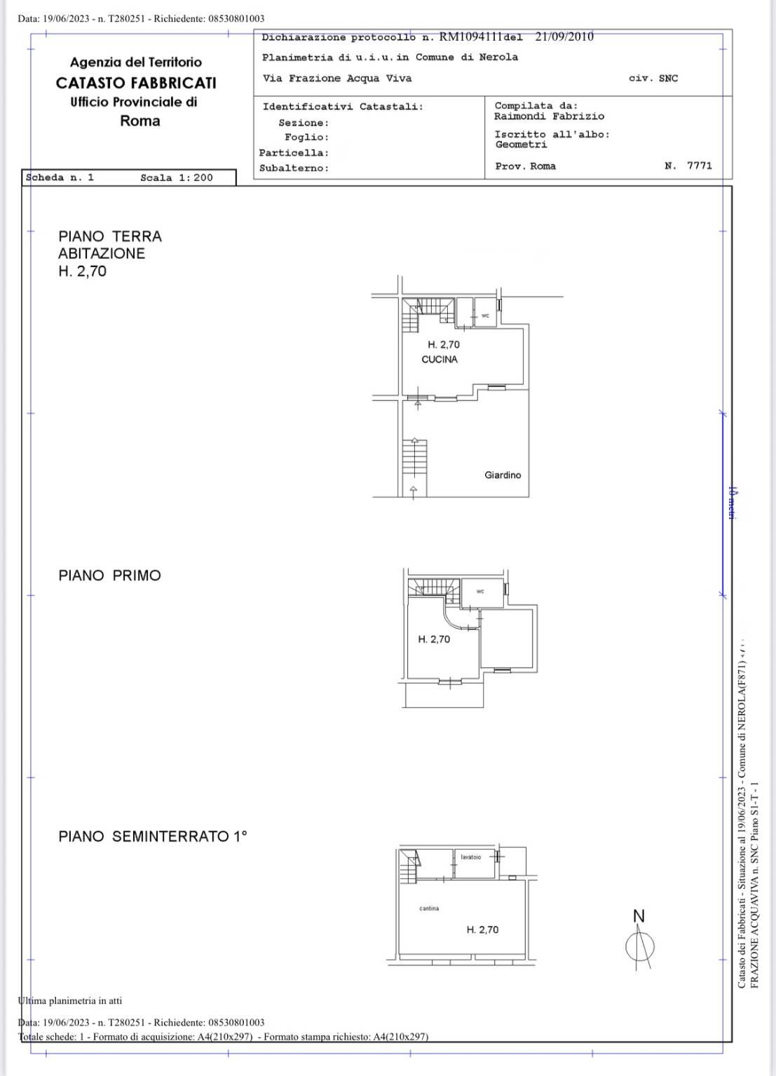
Ad Acquaviva di Nerola, in una frazione estremamente tranquilla e riservata, proponiamo in vendita villino a schiera disposto su più livelli, soluzione ideale per giovani coppie che desiderano indipendenza, spazi ben organizzati e ottimi collegamenti con Roma.
La posizione è strategica: a pochi minuti dalla stazione ferroviaria per Roma e con rapido accesso alla Via Salaria in direzione Roma o Rieti, perfetta per chi lavora in città ma vuole vivere lontano dal caos.
L’immobile è così composto:
Piano terra: accogliente zona giorno con cucina a vista, ambiente luminoso e funzionale, e bagno di servizio
Piano superiore: due camere da letto, di cui una con cabina armadio e balcone, oltre a bagno finestrato
Piano seminterrato: ampia sala hobby con camino funzionante, ideale come zona relax, studio o spazio conviviale, e terzo bagno
Completa la proprietà un piccolo giardino privato, perfetto per momenti di relax all’aperto o per chi desidera uno spazio verde ad uso esclusivo.
Una soluzione abitativa equilibrata, pensata per chi cerca:
- tranquillità e riservatezza
- servizi principali a pochi passi da casa
- collegamenti comodi con Roma
- spazi distribuiti su più livelli, funzionali e ben separati
???? Contattaci per maggiori informazioni o per organizzare una visita.

LEGGI TUTTO

CONDIVIDI SUI SOCIAL

DATI PRINCIPALI

Riferimento
629745
Contratto
Vendita
Tipologia
Villetta a schiera
Superficie
114 mq
Locali
3
Camere da letto
2
Cucina
A vista
Bagni
3
Piano
1 °
Totale piani
2
Box/Posto auto
Singolo

CARATTERISTICHE

Ascensore

COSTI

Prezzo
€ 127.000,00

EFFICIENZA ENERGETICA

Stato
Ristrutturato
Anno costruzione
2012
Riscaldamento
Centralizzato
Classe energetica
C
IPE
175,00 kWh/m²a

A+

A

B

175,00 kWh/m²a | Classe energetica C

C

D

E

F

G

MAPPA

ANNUNCI SIMILI

VENDITA 20
€ 120.000
Villetta a schiera in Vendita a Nerola (Roma)
  • Quadrilocale
  • 150 mq
  • 2 bagni
VENDITA 18
€ 220.000
Villetta a schiera in Vendita a Montelibretti (Roma)
  • Quadrilocale
  • 149 mq
  • 2 bagni
VENDITA 20
€ 229.000
Villetta a schiera in Vendita a Capena (Roma)
  • Più di 5 locali
  • 140 mq
  • 2 bagni
VENDITA 20
€ 229.000
Villetta a schiera in Vendita a Fiano Romano (Roma)
  • Più di 5 locali
  • 164 mq
VENDITA 20
€ 240.000
Villetta a schiera in Vendita a Mentana (Roma)
  • Trilocale
  • 106 mq
  • 2 bagni
VENDITA 20
€ 199.000
Villetta a schiera in Vendita a Marcellina (Roma)
  • Quadrilocale
  • 146 mq
  • 2 bagni
VENDITA 20
€ 378.000
Villetta a schiera in Vendita a Mentana (Roma)
  • Quadrilocale
  • 120 mq
  • 2 bagni
VENDITA 20
€ 220.000
Villetta a schiera in Vendita a Capena (Roma)
  • Più di 5 locali
  • 180 mq
  • 3 bagni
VENDITA 20
€ 125.000
Villetta a schiera in Vendita a Marcellina (Roma)
  • Quadrilocale
  • 125 mq
  • 2 bagni